Goessens & Goessens Makelaardij gebruikt cookies om de website naar behoren te laten werken, om functies voor social media te bieden en om onze website te analyseren. Op onze website kun je ons Cookiebeleid en Privacybeleid vinden.

Aan de Veldkoul 6, Sint Geertruid

Op een rustige en geliefde locatie in het charmante Sint Geertruid presenteren wij deze verrassend ruime vrijstaande woning met garage en royale oprit. De woning biedt een prettige combinatie van comfort, ruimte en mogelijkheden en is daarmee ideaal voor wie landelijk wil wonen.

De woning beschikt momenteel over drie slaapkamers, met de mogelijkheid om een vierde slaapkamer te realiseren. Het geheel is gelegen op een perceel van circa 522 m² en beschikt over een royale, groene achtertuin met achteringang waar u in alle rust kunt genieten van het buitenleven. Daarnaast is de woning uitgerust met 20 zonnepanelen en airconditioning, wat bijdraagt aan zowel wooncomfort als energiezuinigheid.

De woning biedt tegelijkertijd volop mogelijkheden om naar eigen smaak te moderniseren en verder te optimaliseren.

De ligging is bijzonder gunstig ten opzichte van de A2 en diverse uitvalswegen, waardoor het centrum van Maastricht binnen enkele minuten bereikbaar is. Tegelijkertijd geniet u thuis van de rust, ruimte en het dorpse karakter van Sint Geertruid.

Nieuw Onder bod

€ 479.000 k.k.

Woningtype
Vrijstaande woning

Woonoppervlakte
ca. 146m²

Perceeloppervlakte
ca. 536m²

Inhoud
ca. 619m³

Kamers
4

Slaapkamers
3

Bouwjaar
1988

Aanvaarding
In overleg

Omschrijving

Deze woning wordt aangeboden door Goessens & Goessens Makelaardij

-Beschrijving:
Op een rustige en geliefde locatie in het charmante Sint Geertruid presenteren wij deze verrassend ruime vrijstaande woning met garage en royale oprit. De woning biedt een prettige combinatie van comfort, ruimte en mogelijkheden en is daarmee ideaal voor wie landelijk wil wonen.

De woning beschikt momenteel over drie slaapkamers, met de mogelijkheid om een vierde slaapkamer te realiseren. Het geheel is gelegen op een perceel van circa 522 m² en beschikt over een royale, groene achtertuin met achteringang waar u in alle rust kunt genieten van het buitenleven. Daarnaast is de woning uitgerust met 20 zonnepanelen en airconditioning, wat bijdraagt aan zowel wooncomfort als energiezuinigheid.

De woning biedt tegelijkertijd volop mogelijkheden om naar eigen smaak te moderniseren en verder te optimaliseren.

De ligging is bijzonder gunstig ten opzichte van de A2 en diverse uitvalswegen, waardoor het centrum van Maastricht binnen enkele minuten bereikbaar is. Tegelijkertijd geniet u thuis van de rust, ruimte en het dorpse karakter van Sint Geertruid.

-Indeling:

-Begane grond:
Via de entree van circa 6,5 m² betreedt u de woning. De hal is voorzien van een stijlvolle tegelvloer en biedt toegang tot de meterkast, de woonkamer met open keuken en de toiletruimte. De toiletruimte is volledig betegeld en uitgerust met een staand closet en fonteintje.

De woonkamer met open keuken heeft een totale oppervlakte van circa 51 m² en vormt een fijne leefruimte. Dankzij de grote raampartijen aan zowel de voor- als achterzijde geniet u hier van een prachtige lichtinval gedurende de hele dag. De centraal geplaatste houtkachel geeft de ruimte extra karakter en sfeer. Tevens is de woonkamer voorzien van airconditioning. Via de openslaande deur heeft u direct toegang tot de achtertuin, waardoor binnen en buiten op natuurlijke wijze in elkaar overlopen.

De nette keuken is gelegen aan de achterzijde van de woning en opgesteld in een praktische L-vorm. De keuken is voorzien van een elektrische kookplaat, afzuigkap en koelkast en staat in directe verbinding met de bijkeuken.

De bijkeuken (ca. 8 m²) is een praktische en multifunctionele ruimte, ideaal als extra bergruimte of provisieruimte. Hier bevindt zich tevens een spoelbak. Vanuit de bijkeuken heeft u eveneens toegang tot de tuin, waardoor deze ruimte een praktische schakel vormt tussen binnen en buiten.

-Eerste verdieping:
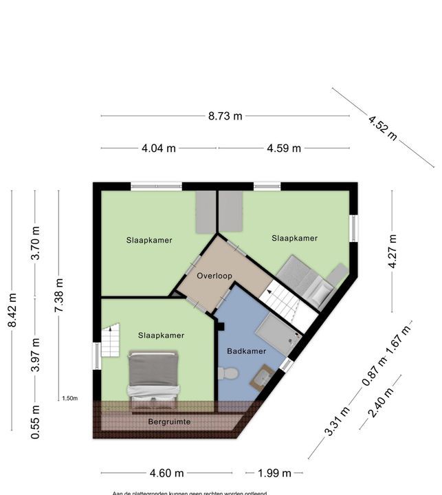
Via de trap in de entree bereikt u de eerste verdieping. De overloop biedt toegang tot drie slaapkamers en de badkamer.
• Slaapkamer 1: Deze ruime slaapkamer is ca. 15 m² groot en voorzien van een trap naar de ruime zolderverdieping. Deze trap kan worden verplaatst door een nieuwe eigenaar, zodat er een aparte toegang kan worden gecreëerd. Het is eventueel ook een prachtige werkkamer.
• Slaapkamer 2: Deze comfortabele kamer is ca. 14 m² groot.
• Slaapkamer 3: Deze kamer is ca. 13 m² groot.
• Badkamer: De nette, betegelde badkamer (ca. 8 m²) is voorzien van een douchecabine, een wastafelmeubel en een staand closet.

-Zolder:
Via de vaste trap vanuit de eerste slaapkamer bereikt u de vliering, die desgewenst bij de slaapkamer kan worden betrokken. Aansluitend bevindt zich een ruime bergzolder met een vloeroppervlakte van circa 24 m². Hier is tevens de cv-installatie (Remeha, bouwjaar onbekend) gesitueerd. Met enkele aanpassingen, zoals het plaatsen van een dakkapel en het verplaatsen van de vaste trap, bestaat de mogelijkheid om hier een volwaardige en royale vierde slaapkamer te realiseren.

-Garage:
Aan de zijkant van de woning bevindt zich een ruime garage van circa 21 m². De garage is toegankelijk via een handmatig bedienbare kantelpoort en een deur vanuit de tuin. De ruimte is volledig betegeld en voorzien van elektra. Hierdoor is de garage geschikt voor het parkeren van een auto, het stallen van fietsen of het opslaan van gereedschap en overige spullen.

-Tuin:
De royale en groene achtertuin is bereikbaar via de woonkamer, de bijkeuken, de garage en een praktische zijingang via een steegje. De tuin is fraai aangelegd met meerdere terrassen, een ruim gazon, een vijver en diverse beplanting, waardoor er een fijne balans ontstaat tussen rust en gebruiksgemak.

Direct grenzend aan de woonkamer bevindt zich een royaal terras met een uitschuifbaar zonnescherm, waar u heerlijk beschut kunt zitten. Een bijzonder pluspunt is de aanwezige moestuin met kas van circa 8 m², ideaal voor liefhebbers van tuinieren en het buitenleven.

-Nadere bijzonderheden:
• Type woning: Vrijstaande woning met veel mogelijkheden, voorzien van garage en royale, groene tuin, gelegen op een ruim perceel van ca. 522 m² in Sint Geertruid.
• Kozijnen: Houten kozijnen en dubbele beglazing. Twee ramen op de eerste verdieping zijn nog voorzien van enkele beglazing.
• Centrale verwarming: HR combi-ketel (Remeha, bouwjaar onbekend).
• Energielabel: B
• Zonnepanelen: voorzien van 20 zonnepanelen (eigendom).
• Alle vermelde afmetingen zijn indicatief en kunnen afwijken van de werkelijkheid.

-Omgeving:
Deze woning is gelegen in Sint Geertruid, een sfeervol en rustig dorp in het glooiende Heuvelland, op korte afstand van Maastricht en Margraten. Ondanks de landelijke ligging beschikt het dorp over de belangrijkste dagelijkse voorzieningen. Zo zijn er onder meer een basisschool, een café en diverse eetgelegenheden aanwezig. Voor sport en ontspanning kunt u terecht bij lokale verenigingen en wandel- en fietsroutes die direct vanuit het dorp vertrekken. Voor uitgebreidere voorzieningen, zoals supermarkten, middelbare scholen en medische zorg, bent u binnen enkele minuten in Margraten of Eijsden. Ook de stad Maastricht ligt op slechts een kwartier rijden en biedt een volledig aanbod aan winkels, horeca en culturele voorzieningen.

Voor meer verkoopinformatie, onze disclaimer en de verkoopvoorwaarden verwijzen wij u graag naar onze website: goessens-makelaardij.nl. Deze presentatie is met de grootste zorg samengesteld door Goessens & Goessens Makelaardij. Ondanks onze inspanningen aanvaarden wij geen enkele aansprakelijkheid voor eventuele onvolledigheden, onjuistheden of de gevolgen hiervan. Alle vermelde maten en oppervlakten zijn indicatief. Wij streven ernaar om u zo zorgvuldig mogelijk te informeren op basis van de beschikbare gegevens. Deze presentatie dient echter uitsluitend ter indicatie. Voor meer details of aanvullende informatie staan wij uiteraard graag voor u klaar.

Reageren op deze woning?

Bent u enthousiast geworden na het lezen van deze woningpresentatie en wilt u vrijblijvend meer informatie over deze woning ontvangen? Of wilt een bezichtiging aanvragen? Vul onderstaand contactformulier in en wij nemen z.s.m. contact met u op.

Uw bericht is naar ons verzonden. Wij nemen zo snel mogelijk contact met u op.

Sorry, we kunnen helaas niet met zekerheid vaststellen of je een mens of een geautomatiseerde bot/spammer bent. Hierdoor kunnen we het formulier dat je hebt ingevuld niet verzenden. Probeer het opnieuw of neem direct contact op met de makelaar via e-mail.

Er is iets mis gegaan met het versturen van het formulier.
Controleer of u alle velden (goed) heeft ingevoerd en probeer het nog een keer.

U zult automatisch een kopie van dit ingevuld contactformulier ontvangen op het door u ingevulde e-mailadres.

Wij vragen alleen uw gegevens die nodig zijn voor het beantwoorden van uw verzoek. Voor meer informatie verwijzen wij u naar onze privacyverklaring op onze website. Bij het versturen van dit formulier gaat u hiermee akkoord.

recaptcha
reCAPTCHA
PrivacyTerms

Heeft u liever dat wij u terugbellen?

Laat uw telefoonnummer achter en wij bellen u zo spoedig mogelijk terug.

Uw bericht is naar ons verzonden. Wij nemen zo snel mogelijk contact met u op.

Sorry, we kunnen helaas niet met zekerheid vaststellen of je een mens of een geautomatiseerde bot/spammer bent. Hierdoor kunnen we het formulier dat je hebt ingevuld niet verzenden. Probeer het opnieuw of neem direct contact op met de makelaar via e-mail.

Er is iets mis gegaan met het versturen van het formulier.
Controleer of u alle velden (goed) heeft ingevoerd en probeer het nog een keer.

recaptcha
reCAPTCHA
PrivacyTerms

Uw woning verkopen?

Wanneer u overweegt om uw huis te verkopen, vraag dan een vrijblijvend adviesgesprek en een waardebepaling aan. Wij maken graag een afspraak met u!

Gratis adviesgesprek

Documenten

Locatie

[ { "lat": 50.7972421, "lng": 5.7709276, "heading": 0, "pitch": 0 } ]

Kenmerken

Aanvaarding

Prijs
€ 479.000 k.k.
Status
Onder bod
Oplevering
In overleg
Adres
Aan de Veldkoul 6
Postcode
6265 BE
Plaats
Sint Geertruid

Bouw

Soort woonhuis
Eengezinswoning, Vrijstaande woning
Soort bouw
Bestaande bouw
Bouwjaar
1988

Oppervlakten en inhoud

Woonoppervlakte
ca. 146m²
Perceeloppervlakte
ca. 536m²
Overig oppervlakte
ca. 21m²
Inhoud
ca. 619m³

Indeling

Aantal kamers
4
Aantal slaapkamers
3
Aantal badkamers
1
Aantal verdiepingen
3
Voorzieningen
Airconditioning, Natuurlijke ventilatie, Zonnepanelen

Energie

Energielabel
B
Isolatie
Dubbel glas
Warm water
C.V.-ketel
Verwarming
C.V.-ketel, Houtkachel
Ketel
Remeha

Buitenruimte

Ligging
Aan rustige weg
Tuin
Tuin rondom

Garage

Soort garage
Aangebouwd steen
Capaciteit
1
Voorzieningen
Voorzien van elektra

Schriftelijkheidsvereiste:

Ter bescherming van de belangen van zowel koper als verkoper, wordt uitdrukkelijk gesteld dat een koopovereenkomst met betrekking tot deze onroerende zaak eerst dan tot stand komt nadat koper en verkoper beide de koopovereenkomst hebben getekend ("schriftelijkheidsvereiste"). Dit betekent dat een bevestiging van de afspraken per e-mail, of een toegestuurd concept van de koopovereenkomst, hier niet onder vallen

Waarborgsom/bankgarantie:

De waarborgsom/bankgarantie is 10% van de koopsom. De koper dient deze uiterlijk 1 week na het vervallen van de ontbindende voorwaarden bij de desbetreffende notaris te deponeren.

Bouwkundige keuring:

Koper is te allen tijde gerechtigd voor eigen rekening een bouwkundige keuring te (laten) verrichten dan wel andere adviseurs te raadplegen teneinde een goed inzicht te verkrijgen over de staat van de woning. De beoordeling van de woning zoals omschreven in bovenstaande presentatie en de brochure is gebaseerd op visuele waarneming, de leeftijd van de woning, en de informatie die verkregen is van de verkoper(s). Een bouwkundige rapportage valt nadrukkelijk buiten de informatie van deze websitepresentatie.

Aansprakelijkheid:

Deze websitepresentatie is door ons Goessens & Goessens Makelaardij met de nodige zorgvuldigheid samengesteld. Onzerzijds wordt echter geen enkele aansprakelijkheid aanvaard voor enige onvolledigheid, onjuist of anderszins, dan wel de gevolgen daarvan. Alle opgegeven maten en oppervlakten zijn indicatief. Deze websitepresentatie is slechts indicatief. Alle vermelden maten zijn circa maten. Er is nagestreefd naar een zo zorgvuldig mogelijke informatie van de ter beschikking staande gegevens. De verkoper heeft een mededelingsplicht inzake zaken die hem bekend zijn van het onroerend goed. De potentiele koper heeft een onderzoek plicht inzake de voor hem van belang zijnde gegevens van het onroerend goed.

Onderzoek plicht koper:

De informatie tijdens de rondleiding en in de websitepresentatie en overig informatiemateriaal is verkregen van de verkoper van de woning en is bedoeld om de koper te informeren. In het Burgerlijk Wetboek staat opgenomen dat op de koper van een woning een onderzoek plicht rust. Onder de onderzoeksplicht vallen bouwkundige gebreken/staat van de woning en publiekrechtelijke openbare informatie (zoals verkeers- /bestemmingsplannen). Een bouwkundige keuring geeft hier duidelijkheid over.

Copyright ©:

Gehele of gedeeltelijke overname, plaatsing op andere sites, advertenties, verveelvoudiging op welke andere wijze dan ook en/of commercieel gebruik van deze informatie (zoals foto’s, plattegronden, teksten, kenmerken etc.), is niet toegestaan, tenzij hiervoor uitdrukkelijk schriftelijke toestemming is verleend door Goessens & Goessens Makelaardij of tenzij aan de onderstaande voorwaarden wordt voldaan. Deze informatie mag worden bekeken , mits de informatie niet wordt gebruikt in een ander werk of publicatie in welk medium dan ook.