Goessens & Goessens Makelaardij gebruikt cookies om de website naar behoren te laten werken, om functies voor social media te bieden en om onze website te analyseren. Op onze website kun je ons Cookiebeleid en Privacybeleid vinden.

Stallestraat 13, Mheer

Keurig onderhouden halfvrijstaande woning in het landelijke Mheer

In het pittoreske en rustig gelegen dorp Mheer bieden wij deze keurig onderhouden halfvrijstaande woning aan. De woning beschikt over een ruime oprit, drie volwaardige slaapkamers, een royale tuin met zij-ingang én een multifunctionele ruimte op de begane grond. Deze extra kamer is ideaal als gelijkvloerse slaapkamer, handige werkplek of hobbyruimte.

Wonen in Mheer betekent genieten van rust, ruimte en een groene, landelijke omgeving, zonder in te leveren op bereikbaarheid. Maastricht, het MUMC+ en de Universiteit Maastricht zijn binnen circa 15 autominuten bereikbaar. Dankzij de combinatie van comfort, flexibiliteit en uitstekende ligging vormt deze woning een ideale thuisbasis voor wie centraal én rustig wil wonen.

Nieuw Verkocht onder voorbehoud

€ 339.000 k.k.

Woningtype
Halfvrijstaande woning

Woonoppervlakte
ca. 93m²

Perceeloppervlakte
ca. 250m²

Inhoud
ca. 406m³

Kamers
5

Slaapkamers
4

Bouwjaar
1955

Aanvaarding
In overleg

Omschrijving

Deze woning wordt aangeboden door Goessens & Goessens Makelaardij.

-Beschrijving:
Keurig onderhouden halfvrijstaande woning in het landelijke Mheer

In het pittoreske en rustig gelegen dorp Mheer bieden wij deze keurig onderhouden halfvrijstaande woning aan. De woning beschikt over een ruime oprit, drie volwaardige slaapkamers, een royale tuin met zij-ingang én een multifunctionele ruimte op de begane grond. Deze extra kamer is ideaal als gelijkvloerse slaapkamer, handige werkplek of hobbyruimte.

Wonen in Mheer betekent genieten van rust, ruimte en een groene, landelijke omgeving, zonder in te leveren op bereikbaarheid. Maastricht, het MUMC+ en de Universiteit Maastricht zijn binnen circa 15 autominuten bereikbaar. Dankzij de combinatie van comfort, flexibiliteit en uitstekende ligging vormt deze woning een ideale thuisbasis voor wie centraal én rustig wil wonen.

-Indeling:

-Kelder:
Via een trap in de keuken en woonkamer bereikt u de praktische kelder van ca. 6 m². Ideaal voor het opbergen van voorraad, gereedschap of seizoensspullen.

-Begane grond:
U betreedt de woning via een lichte en verzorgde entree van ca. 7 m². Hier bevinden zich de meterkast, de trap naar de eerste verdieping en de toegang tot de woonkamer en keuken.
De royale woonkamer met open keuken biedt samen circa 32 m² comfortabele leefruimte. Grote raampartijen aan de voorzijde en een schuifpui aan de achterzijde zorgen voor veel natuurlijk licht. De fraaie laminaatvloer loopt door vanaf de entree, wat bijdraagt aan een rustige, harmonieuze uitstraling.
De moderne keuken aan de achterzijde is uitgevoerd met een kookeiland en strakke, witte greeploze fronten. Deze volledig uitgeruste keuken beschikt over een inductiekookplaat, afzuigkap, combi-oven, koelkast en vaatwasser. Via de schuifpui is er directe toegang tot de tuin, waardoor binnen en buiten prachtig met elkaar verbonden zijn. Vanuit de keuken is ook de kelder bereikbaar.
Achterin de woning bevindt zich een tweede hal met toegang tot het toilet, de multifunctionele kamer van ca. 8 m² en de achtertuin. Het toilet is volledig betegeld en voorzien van een modern hangcloset. De extra kamer is flexibel in te richten als slaap-, werk- of hobbyruimte en beschikt tevens over de witgoedaansluiting.

-Eerste verdieping:
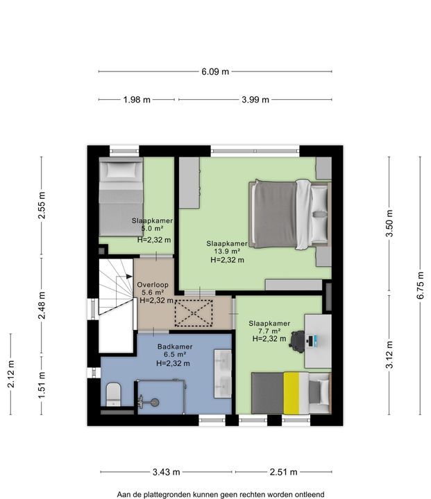
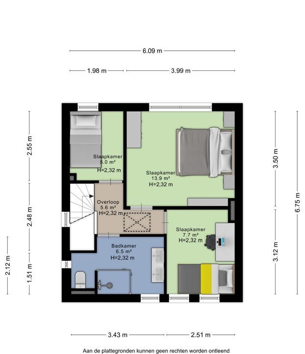
De eerste verdieping biedt drie slaapkamers en een badkamer. De gehele verdieping is afgewerkt met laminaat.
• Slaapkamer 1: Deze ruime slaapkamer is ca. 14 m² groot en voorzien van een muurkast.
• Slaapkamer 2: Deze slaapkamer is ca. 8 m² groot.
• Slaapkamer 3: Deze slaapkamer is ca. 5 m² groot.
• Badkamer: De gerenoveerde, betegelde badkamer van circa 6,5 m² is praktisch ingedeeld en modern uitgevoerd. De ruimte beschikt over een dubbele wastafel, een hangcloset en een douchecabine.

-Tweede verdieping:
Via een vlizotrap is de bergzolder van ca. 25 m² bereikbaar. Ideaal voor opslag van seizoensspullen of overige spullen. Met een aanpassing zoals een dakvenster of dakkapel kan hier eenvoudig een vierde slaapkamer worden gerealiseerd.

-Tuin:
De achtertuin is bereikbaar via de hal, schuifpui of zij-ingang en biedt een groene oase van rust. Met een combinatie van betegeld terras, gazon en beplanting is het een heerlijke plek om te ontspannen, buiten te eten of te tuinieren. De volledig omheinde tuin biedt optimale privacy. Een vrijstaande berging van ca. 9 m² biedt extra opbergruimte voor tuingereedschap of andere spullen.

-Nadere bijzonderheden:
• Type woning: halfvrijstaande, keurig onderhouden, met ruime oprit, drie slaapkamers en extra multifunctionele ruimte op de begane grond, gelegen op een fijne locatie in Mheer.
• Kozijnen: Kunststof kozijnen en dubbele beglazing.
• Rolluiken: De woning is grotendeels voorzien van rolluiken.
• Centrale verwarming: HR combi-ketel (Eigendom).
• Energielabel: E.
• Alle vermelde afmetingen zijn indicatief en kunnen afwijken van de werkelijkheid.

-Omgeving:
De woning is gelegen in een rustige straat in Mheer, een sfeervol kerkdorp in de gemeente Eijsden-Margraten. Geniet in de directe omgeving van wandelen en fietsen in het Heuvelland. De ligging is gunstig ten opzichte van Maastricht (ca. 7 km) met al haar voorzieningen, en via de nabijgelegen autosnelwegen zijn Eindhoven, Heerlen, Aken en Luik goed bereikbaar.

Graag verwijzen wij u naar onze website goessens-makelaardij.nl, waar meer verkoopinformatie, onze disclaimer en de verkoopvoorwaarden te vinden zijn. Deze presentatie is door Goessens & Goessens Makelaardij met de nodige zorg samengesteld. Onzerzijds wordt echter geen enkele aansprakelijkheid aanvaard voor enige onvolledigheid, onjuist of anderszins, dan wel de gevolgen daarvan. Alle opgegeven maten en oppervlakten zijn indicatief. Deze presentatie is slechts indicatief. Er is nagestreefd naar een zo zorgvuldig mogelijke informatie van de ter beschikking staande gegevens.

Reageren op deze woning?

Bent u enthousiast geworden na het lezen van deze woningpresentatie en wilt u vrijblijvend meer informatie over deze woning ontvangen? Of wilt een bezichtiging aanvragen? Vul onderstaand contactformulier in en wij nemen z.s.m. contact met u op.

Uw bericht is naar ons verzonden. Wij nemen zo snel mogelijk contact met u op.

Sorry, we kunnen helaas niet met zekerheid vaststellen of je een mens of een geautomatiseerde bot/spammer bent. Hierdoor kunnen we het formulier dat je hebt ingevuld niet verzenden. Probeer het opnieuw of neem direct contact op met de makelaar via e-mail.

Er is iets mis gegaan met het versturen van het formulier.
Controleer of u alle velden (goed) heeft ingevoerd en probeer het nog een keer.

U zult automatisch een kopie van dit ingevuld contactformulier ontvangen op het door u ingevulde e-mailadres.

Wij vragen alleen uw gegevens die nodig zijn voor het beantwoorden van uw verzoek. Voor meer informatie verwijzen wij u naar onze privacyverklaring op onze website. Bij het versturen van dit formulier gaat u hiermee akkoord.

recaptcha
reCAPTCHA
PrivacyTerms

Heeft u liever dat wij u terugbellen?

Laat uw telefoonnummer achter en wij bellen u zo spoedig mogelijk terug.

Uw bericht is naar ons verzonden. Wij nemen zo snel mogelijk contact met u op.

Sorry, we kunnen helaas niet met zekerheid vaststellen of je een mens of een geautomatiseerde bot/spammer bent. Hierdoor kunnen we het formulier dat je hebt ingevuld niet verzenden. Probeer het opnieuw of neem direct contact op met de makelaar via e-mail.

Er is iets mis gegaan met het versturen van het formulier.
Controleer of u alle velden (goed) heeft ingevoerd en probeer het nog een keer.

recaptcha
reCAPTCHA
PrivacyTerms

Uw woning verkopen?

Wanneer u overweegt om uw huis te verkopen, vraag dan een vrijblijvend adviesgesprek en een waardebepaling aan. Wij maken graag een afspraak met u!

Gratis adviesgesprek

Locatie

[ { "lat": 50.7765275, "lng": 5.7941424, "heading": 0, "pitch": 0 } ]

Kenmerken

Aanvaarding

Prijs
€ 339.000 k.k.
Status
Verkocht onder voorbehoud
Oplevering
In overleg
Adres
Stallestraat 13
Postcode
6261 NC
Plaats
Mheer

Bouw

Soort woonhuis
Eengezinswoning, Halfvrijstaande woning
Soort bouw
Bestaande bouw
Bouwjaar
1955

Oppervlakten en inhoud

Woonoppervlakte
ca. 93m²
Perceeloppervlakte
ca. 250m²
Overig oppervlakte
ca. 21m²
Inhoud
ca. 406m³

Indeling

Aantal kamers
5
Aantal slaapkamers
4
Aantal badkamers
1
Aantal verdiepingen
4
Voorzieningen
Natuurlijke ventilatie, Rolluiken

Energie

Energielabel
E
Warm water
C.V.-ketel
Verwarming
C.V.-ketel
Ketel
(Combi-ketel, Eigendom)

Buitenruimte

Ligging
Aan rustige weg
Tuin
Tuin rondom
Schuur
Vrijstaand steen
Faciliteiten schuur
Voorzien van elektra

Schriftelijkheidsvereiste:

Ter bescherming van de belangen van zowel koper als verkoper, wordt uitdrukkelijk gesteld dat een koopovereenkomst met betrekking tot deze onroerende zaak eerst dan tot stand komt nadat koper en verkoper beide de koopovereenkomst hebben getekend ("schriftelijkheidsvereiste"). Dit betekent dat een bevestiging van de afspraken per e-mail, of een toegestuurd concept van de koopovereenkomst, hier niet onder vallen

Waarborgsom/bankgarantie:

De waarborgsom/bankgarantie is 10% van de koopsom. De koper dient deze uiterlijk 1 week na het vervallen van de ontbindende voorwaarden bij de desbetreffende notaris te deponeren.

Bouwkundige keuring:

Koper is te allen tijde gerechtigd voor eigen rekening een bouwkundige keuring te (laten) verrichten dan wel andere adviseurs te raadplegen teneinde een goed inzicht te verkrijgen over de staat van de woning. De beoordeling van de woning zoals omschreven in bovenstaande presentatie en de brochure is gebaseerd op visuele waarneming, de leeftijd van de woning, en de informatie die verkregen is van de verkoper(s). Een bouwkundige rapportage valt nadrukkelijk buiten de informatie van deze websitepresentatie.

Aansprakelijkheid:

Deze websitepresentatie is door ons Goessens & Goessens Makelaardij met de nodige zorgvuldigheid samengesteld. Onzerzijds wordt echter geen enkele aansprakelijkheid aanvaard voor enige onvolledigheid, onjuist of anderszins, dan wel de gevolgen daarvan. Alle opgegeven maten en oppervlakten zijn indicatief. Deze websitepresentatie is slechts indicatief. Alle vermelden maten zijn circa maten. Er is nagestreefd naar een zo zorgvuldig mogelijke informatie van de ter beschikking staande gegevens. De verkoper heeft een mededelingsplicht inzake zaken die hem bekend zijn van het onroerend goed. De potentiele koper heeft een onderzoek plicht inzake de voor hem van belang zijnde gegevens van het onroerend goed.

Onderzoek plicht koper:

De informatie tijdens de rondleiding en in de websitepresentatie en overig informatiemateriaal is verkregen van de verkoper van de woning en is bedoeld om de koper te informeren. In het Burgerlijk Wetboek staat opgenomen dat op de koper van een woning een onderzoek plicht rust. Onder de onderzoeksplicht vallen bouwkundige gebreken/staat van de woning en publiekrechtelijke openbare informatie (zoals verkeers- /bestemmingsplannen). Een bouwkundige keuring geeft hier duidelijkheid over.

Copyright ©:

Gehele of gedeeltelijke overname, plaatsing op andere sites, advertenties, verveelvoudiging op welke andere wijze dan ook en/of commercieel gebruik van deze informatie (zoals foto’s, plattegronden, teksten, kenmerken etc.), is niet toegestaan, tenzij hiervoor uitdrukkelijk schriftelijke toestemming is verleend door Goessens & Goessens Makelaardij of tenzij aan de onderstaande voorwaarden wordt voldaan. Deze informatie mag worden bekeken , mits de informatie niet wordt gebruikt in een ander werk of publicatie in welk medium dan ook.