Goessens & Goessens Makelaardij gebruikt cookies om de website naar behoren te laten werken, om functies voor social media te bieden en om onze website te analyseren. Op onze website kun je ons Cookiebeleid en Privacybeleid vinden.

De Gelimment 8, Mheer

Sfeervolle, uitgebouwde geschakelde woning met garage, tuin en zonnepanelen in het rustige Mheer.

In het schilderachtige en rustig gelegen dorp Mheer, in een straat met enkel bestemmingsverkeer, bieden wij deze uitstekend onderhouden, uitgebouwde geschakelde woning aan met garage, oprit en verzorgde tuin. De woning beschikt over drie volwaardige slaapkamers, met de mogelijkheid tot een vierde, energielabel B en maar liefst 9 zonnepanelen. Het geheel straalt een comfortabele en uitnodigende sfeer uit, waarbij zowel binnen als buiten het gevoel van ruimte, licht en rust optimaal tot zijn recht komt.

Praktisch en ideaal voor gezinnen: de basisschool, sporthal en sportvelden liggen op slechts enkele minuten loopafstand, waardoor alles wat u nodig heeft binnen handbereik is.

Wonen in Mheer betekent genieten van een groene, landelijke omgeving en een rustige, aangename woonomgeving – zonder concessies te doen aan bereikbaarheid. Binnen circa 15 autominuten bereikt u Maastricht, het MUMC+ en de Universiteit Maastricht. Dankzij de combinatie van comfort, flexibiliteit, landelijke ligging en uitstekende bereikbaarheid vormt deze woning een perfecte thuisbasis voor gezinnen, werkenden of liefhebbers van een rustige leefomgeving.

Nieuw Verkocht onder voorbehoud

€ 399.000 k.k.

Woningtype
Geschakelde 2-onder-1-kapwoning

Woonoppervlakte
ca. 116m²

Perceeloppervlakte
ca. 232m²

Inhoud
ca. 472m³

Kamers
4

Slaapkamers
3

Bouwjaar
1993

Aanvaarding
In overleg

Omschrijving

DEZE WONING WORDT AANGEBODEN DOOR GOESSENS & GOESSENS MAKELAARDIJ.

-Beschrijving:
Sfeervolle, uitgebouwde geschakelde woning met garage, tuin en zonnepanelen in het rustige Mheer.

In het schilderachtige en rustig gelegen dorp Mheer, in een straat met enkel bestemmingsverkeer, bieden wij deze uitstekend onderhouden, uitgebouwde geschakelde woning aan met garage, oprit en verzorgde tuin. De woning beschikt over drie volwaardige slaapkamers, met de mogelijkheid tot een vierde, energielabel B en maar liefst 9 zonnepanelen. Het geheel straalt een comfortabele en uitnodigende sfeer uit, waarbij zowel binnen als buiten het gevoel van ruimte, licht en rust optimaal tot zijn recht komt.

Praktisch en ideaal voor gezinnen: de basisschool, sporthal en sportvelden liggen op slechts enkele minuten loopafstand, waardoor alles wat u nodig heeft binnen handbereik is.

Wonen in Mheer betekent genieten van een groene, landelijke omgeving en een rustige, aangename woonomgeving – zonder concessies te doen aan bereikbaarheid. Binnen circa 15 autominuten bereikt u Maastricht, het MUMC+ en de Universiteit Maastricht. Dankzij de combinatie van comfort, flexibiliteit, landelijke ligging en uitstekende bereikbaarheid vormt deze woning een perfecte thuisbasis voor gezinnen, werkenden of liefhebbers van een rustige leefomgeving.

-Indeling:

-Begane grond:
U betreedt de woning via een lichte en verzorgde entree van circa 4 m², voorzien van een fraaie parketvloer. Hier bevinden zich de meterkast, de toiletruimte, de trapopgang naar de eerste verdieping en de toegang tot de royale woonkamer met open keuken. De betegelde toiletruimte is uitgevoerd met een staand closet en een fonteintje.

De uitgebouwde woonkamer met open keuken biedt samen een comfortabele leefruimte van circa 51 m². Grote raampartijen aan zowel de voor- als achterzijde zorgen voor een overvloed aan natuurlijk licht. De doorlopende parketvloer vanuit de entree versterkt de rustige en harmonieuze uitstraling van de leefruimte. Praktisch is bovendien de aanwezige trappenkast, ideaal voor het opbergen van diverse spullen.

De moderne, L-vormige keuken is gesitueerd aan de achterzijde van de woning en voorzien van een tegelvloer en vloerverwarming. De keuken, uitgevoerd met witte, greeploze fronten, is volledig uitgerust met een 5-pits gasfornuis, afzuigkap, combi-oven, koelkast, vaatwasser (2024) en biedt veel werk- en bergruimte. Dankzij de grote raampartijen en de deur naar de tuin ervaart u een gevoel van openheid en verbinding met de buitenruimte. De aanbouw is bovendien voorzien van rolgordijnen op maat.

-Eerste verdieping:
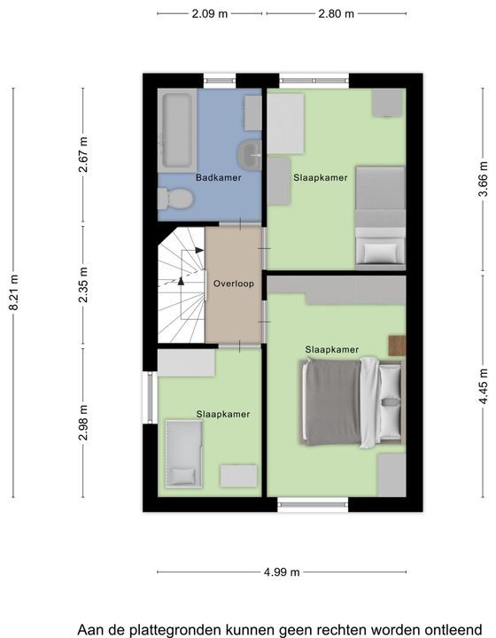
Via de trap in de entree bereikt u de eerste verdieping, waar drie slaapkamers en de badkamer zijn gesitueerd. De gehele verdieping is voorzien van een laminaatvloer, wat bijdraagt aan een rustige en verzorgde uitstraling.
• Slaapkamer 1: Deze ruime slaapkamer is ca. 12 m² groot.
• Slaapkamer 2: Deze comfortabele slaapkamer is ca. 10 m² groot.
• Slaapkamer 3: Deze slaapkamer is ca. 6 m² groot en ideaal als hobbykamer of babykamer.
• Badkamer: De goed onderhouden, betegelde badkamer van circa 6 m² is praktisch ingedeeld met een wastafel, een hangcloset en een ligbad met douche.

-Tweede verdieping:
Een vaste trap leidt naar de tweede verdieping, een multifunctionele ruimte met een vloeroppervlakte van circa 36 m². Hier bevinden zich de witgoedaansluiting en de cv-installatie (Remeha, 2020, Eigendom). Met enkele aanpassingen kan deze verdieping eenvoudig worden omgevormd tot een extra slaapkamer of werkruimte, waardoor de woning extra flexibiliteit biedt voor uiteenlopende woonwensen.

-Garage:
De woning beschikt over een ruime garage van circa 19 m², bereikbaar via de tuin of de openslaande deuren aan de oprit. De garage is voorzien van elektra en water, en is geschikt voor het parkeren van een auto, het stallen van fietsen of het opbergen van spullen. Tevens is er een praktisch keukenblok aanwezig met extra opbergruimte, ideaal voor werk- of hobbydoeleinden. De oprit biedt voldoende plek voor het parkeren van een of twee auto's.

-Tuin:
De sfeervolle achtertuin is bereikbaar via de deuren in de woonkamer of via de garage. De tuin is split-level aangelegd en bestaat uit een combinatie van terras, gazon en plantenborders. Aan de achterzijde van de tuin bevindt zich een praktische berging van circa 4,5 m², ideaal voor het opbergen van tuingereedschap en materialen. Aan de berging grenst een overkapping van circa 10 m², een heerlijke plek om te zitten, te ontspannen of buiten te tafelen, ongeacht het weer. De tuin biedt een prachtige balans tussen privacy, sfeer en functionaliteit.

-Nadere bijzonderheden:
• Type woning: Keurig onderhouden, uitgebouwde woning met garage en oprit, voorzien van drie slaapkamers (mogelijk vier), energielabel B en 9 zonnepanelen, gelegen op een fijne locatie in Mheer.
• Kozijnen: Houten kozijnen en dubbele beglazing met uitzondering van de aanbouw met HR++ beglazing.
• Rolluiken: De woning is grotendeels voorzien van rolluiken.
• Centrale verwarming: HR combi-ketel (Remeha, 2020, Eigendom).
• Energielabel: B.
• Zonnepanelen: 9 zonnepanelen in eigendom (2022). Deze bevatten elk micro-omvormers, waardoor de panelen onafhankelijk van elkaar werken.
• Alle voorbereidingen voor een (slimme) laadpaal zijn aanwezig.
• Alle vermelde afmetingen zijn indicatief en kunnen afwijken van de werkelijkheid.

-Omgeving:
Deze woning is gelegen in een rustige straat gelegen in het dorp Mheer. In de directe omgeving is het heerlijk wandelen en fietsen en genieten van de natuur. Het kerkdorp Mheer (gemeente Eijsden-Margraten) is centraal gelegen in het Heuvelland, de gunstige situering t.o.v. Maastricht (ca. 7 km), met al haar voorzieningen en de autosnelwegen naar Eindhoven, Heerlen, Aken en Luik, maken Mheer goed bereikbaar.

Graag verwijzen wij u naar onze website goessens-makelaardij.nl, waar meer verkoopinformatie, onze disclaimer en de verkoopvoorwaarden te vinden zijn. Deze presentatie is door Goessens & Goessens Makelaardij met de nodige zorg samengesteld. Onzerzijds wordt echter geen enkele aansprakelijkheid aanvaard voor enige onvolledigheid, onjuist of anderszins, dan wel de gevolgen daarvan. Alle opgegeven maten en oppervlakten zijn indicatief. Deze presentatie is slechts indicatief. Er is nagestreefd naar een zo zorgvuldig mogelijke informatie van de ter beschikking staande gegevens.

Reageren op deze woning?

Bent u enthousiast geworden na het lezen van deze woningpresentatie en wilt u vrijblijvend meer informatie over deze woning ontvangen? Of wilt een bezichtiging aanvragen? Vul onderstaand contactformulier in en wij nemen z.s.m. contact met u op.

Uw bericht is naar ons verzonden. Wij nemen zo snel mogelijk contact met u op.

Sorry, we kunnen helaas niet met zekerheid vaststellen of je een mens of een geautomatiseerde bot/spammer bent. Hierdoor kunnen we het formulier dat je hebt ingevuld niet verzenden. Probeer het opnieuw of neem direct contact op met de makelaar via e-mail.

Er is iets mis gegaan met het versturen van het formulier.
Controleer of u alle velden (goed) heeft ingevoerd en probeer het nog een keer.

U zult automatisch een kopie van dit ingevuld contactformulier ontvangen op het door u ingevulde e-mailadres.

Wij vragen alleen uw gegevens die nodig zijn voor het beantwoorden van uw verzoek. Voor meer informatie verwijzen wij u naar onze privacyverklaring op onze website. Bij het versturen van dit formulier gaat u hiermee akkoord.

recaptcha
reCAPTCHA
PrivacyTerms

Heeft u liever dat wij u terugbellen?

Laat uw telefoonnummer achter en wij bellen u zo spoedig mogelijk terug.

Uw bericht is naar ons verzonden. Wij nemen zo snel mogelijk contact met u op.

Sorry, we kunnen helaas niet met zekerheid vaststellen of je een mens of een geautomatiseerde bot/spammer bent. Hierdoor kunnen we het formulier dat je hebt ingevuld niet verzenden. Probeer het opnieuw of neem direct contact op met de makelaar via e-mail.

Er is iets mis gegaan met het versturen van het formulier.
Controleer of u alle velden (goed) heeft ingevoerd en probeer het nog een keer.

recaptcha
reCAPTCHA
PrivacyTerms

Uw woning verkopen?

Wanneer u overweegt om uw huis te verkopen, vraag dan een vrijblijvend adviesgesprek en een waardebepaling aan. Wij maken graag een afspraak met u!

Gratis adviesgesprek

Locatie

[ { "lat": 50.7843357, "lng": 5.7941936, "heading": 0, "pitch": 0 } ]

Kenmerken

Aanvaarding

Prijs
€ 399.000 k.k.
Status
Verkocht onder voorbehoud
Oplevering
In overleg
Adres
De Gelimment 8
Postcode
6261 PH
Plaats
Mheer

Bouw

Soort woonhuis
Eengezinswoning, Geschakelde 2-onder-1-kapwoning
Soort bouw
Bestaande bouw
Bouwjaar
1993

Oppervlakten en inhoud

Woonoppervlakte
ca. 116m²
Perceeloppervlakte
ca. 232m²
Overig oppervlakte
ca. 34m²
Inhoud
ca. 472m³

Indeling

Aantal kamers
4
Aantal slaapkamers
3
Aantal badkamers
1
Aantal verdiepingen
3
Voorzieningen
Natuurlijke ventilatie

Energie

Energielabel
B
Warm water
C.V.-ketel
Verwarming
C.V.-ketel, Vloerverwarming gedeeltelijk
Ketel
Remeha (2020, Eigendom)

Buitenruimte

Ligging
Aan rustige weg
Tuin
Tuin rondom

Garage

Soort garage
Aangebouwd steen
Capaciteit
1

Schriftelijkheidsvereiste:

Ter bescherming van de belangen van zowel koper als verkoper, wordt uitdrukkelijk gesteld dat een koopovereenkomst met betrekking tot deze onroerende zaak eerst dan tot stand komt nadat koper en verkoper beide de koopovereenkomst hebben getekend ("schriftelijkheidsvereiste"). Dit betekent dat een bevestiging van de afspraken per e-mail, of een toegestuurd concept van de koopovereenkomst, hier niet onder vallen

Waarborgsom/bankgarantie:

De waarborgsom/bankgarantie is 10% van de koopsom. De koper dient deze uiterlijk 1 week na het vervallen van de ontbindende voorwaarden bij de desbetreffende notaris te deponeren.

Bouwkundige keuring:

Koper is te allen tijde gerechtigd voor eigen rekening een bouwkundige keuring te (laten) verrichten dan wel andere adviseurs te raadplegen teneinde een goed inzicht te verkrijgen over de staat van de woning. De beoordeling van de woning zoals omschreven in bovenstaande presentatie en de brochure is gebaseerd op visuele waarneming, de leeftijd van de woning, en de informatie die verkregen is van de verkoper(s). Een bouwkundige rapportage valt nadrukkelijk buiten de informatie van deze websitepresentatie.

Aansprakelijkheid:

Deze websitepresentatie is door ons Goessens & Goessens Makelaardij met de nodige zorgvuldigheid samengesteld. Onzerzijds wordt echter geen enkele aansprakelijkheid aanvaard voor enige onvolledigheid, onjuist of anderszins, dan wel de gevolgen daarvan. Alle opgegeven maten en oppervlakten zijn indicatief. Deze websitepresentatie is slechts indicatief. Alle vermelden maten zijn circa maten. Er is nagestreefd naar een zo zorgvuldig mogelijke informatie van de ter beschikking staande gegevens. De verkoper heeft een mededelingsplicht inzake zaken die hem bekend zijn van het onroerend goed. De potentiele koper heeft een onderzoek plicht inzake de voor hem van belang zijnde gegevens van het onroerend goed.

Onderzoek plicht koper:

De informatie tijdens de rondleiding en in de websitepresentatie en overig informatiemateriaal is verkregen van de verkoper van de woning en is bedoeld om de koper te informeren. In het Burgerlijk Wetboek staat opgenomen dat op de koper van een woning een onderzoek plicht rust. Onder de onderzoeksplicht vallen bouwkundige gebreken/staat van de woning en publiekrechtelijke openbare informatie (zoals verkeers- /bestemmingsplannen). Een bouwkundige keuring geeft hier duidelijkheid over.

Copyright ©:

Gehele of gedeeltelijke overname, plaatsing op andere sites, advertenties, verveelvoudiging op welke andere wijze dan ook en/of commercieel gebruik van deze informatie (zoals foto’s, plattegronden, teksten, kenmerken etc.), is niet toegestaan, tenzij hiervoor uitdrukkelijk schriftelijke toestemming is verleend door Goessens & Goessens Makelaardij of tenzij aan de onderstaande voorwaarden wordt voldaan. Deze informatie mag worden bekeken , mits de informatie niet wordt gebruikt in een ander werk of publicatie in welk medium dan ook.