Goessens & Goessens Makelaardij gebruikt cookies om de website naar behoren te laten werken, om functies voor social media te bieden en om onze website te analyseren. Op onze website kun je ons Cookiebeleid en Privacybeleid vinden.

Vuursteenstraat 8, Gronsveld

Op een rustige en geliefde locatie in Rijckholt ligt deze volledig gerenoveerde twee-onder-een-kapwoning, voorzien van een ruime garage en royale oprit. De woning is met zorg en oog voor detail vernieuwd en biedt een eigentijdse woonstijl met optimaal comfort. Met vier slaapkamers, een multifunctionele ruimte die via de tuin bereikbaar is, en een sfeervolle, onderhoudsvriendelijke achtertuin, vormt deze woning een ideale plek voor wie ruimte en kwaliteit zoekt.

Dankzij de recente vernieuwingen, waaronder airconditioning en 12 zonnepanelen, geniet u hier van zowel energiezuinig wonen als hedendaags gemak.

De ligging is bovendien uitstekend: winkels en dagelijkse voorzieningen bevinden zich op loopafstand, terwijl Maastricht, het MUMC+ en de Universiteit Maastricht in circa 15 minuten met de auto bereikbaar zijn.

Kortom: een smaakvol gerenoveerde woning die direct te betrekken is, met volop mogelijkheden om er uw eigen thuis van te maken.

Nieuw Onder bod

€ 419.000 k.k.

Woningtype
2-onder-1-kapwoning

Woonoppervlakte
ca. 123m²

Perceeloppervlakte
ca. 272m²

Inhoud
ca. 502m³

Kamers
5

Slaapkamers
4

Bouwjaar
1970

Aanvaarding
In overleg

Omschrijving

Deze woning wordt aangeboden door Goessens & Goessens Makelaardij

-Beschrijving:
Op een rustige en geliefde locatie in Rijckholt ligt deze volledig gerenoveerde twee-onder-een-kapwoning, voorzien van een ruime garage en royale oprit. De woning is met zorg en oog voor detail vernieuwd en biedt een eigentijdse woonstijl met optimaal comfort. Met vier slaapkamers, een multifunctionele ruimte die via de tuin bereikbaar is, en een sfeervolle, onderhoudsvriendelijke achtertuin, vormt deze woning een ideale plek voor wie ruimte en kwaliteit zoekt.

Dankzij de recente vernieuwingen, waaronder airconditioning en 12 zonnepanelen, geniet u hier van zowel energiezuinig wonen als hedendaags gemak.

De ligging is bovendien uitstekend: winkels en dagelijkse voorzieningen bevinden zich op loopafstand, terwijl Maastricht, het MUMC+ en de Universiteit Maastricht in circa 15 minuten met de auto bereikbaar zijn.

Kortom: een smaakvol gerenoveerde woning die direct te betrekken is, met volop mogelijkheden om er uw eigen thuis van te maken.

-Indeling:

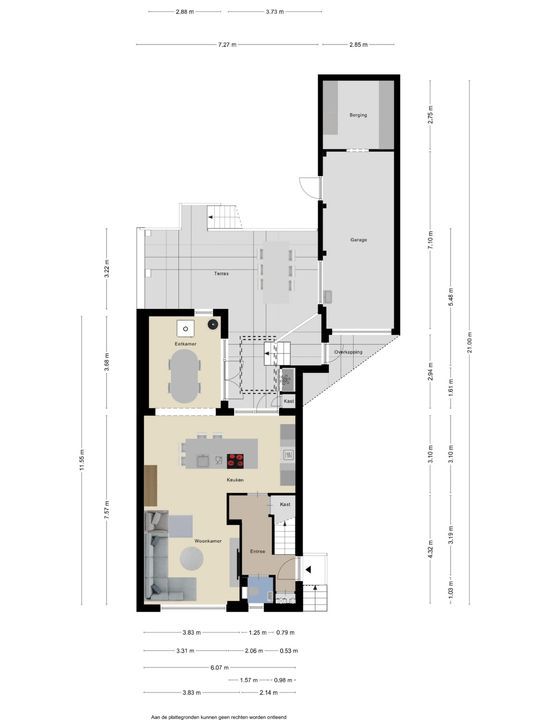
-Begane grond:
Bij binnenkomst in de ruime entree (ca. 8 m²) valt direct de stijlvolle laminaatvloer op, die in 2019 werd gelegd. Vanuit de hal heeft u toegang tot de moderne toiletruimte, de meterkast (vernieuwd in 2019), de woonkamer met open keuken en de eikenhouten trap naar de eerste verdieping. Ook is er een handige trappenkast aanwezig. De toiletruimte is in 2023 betegeld en voorzien van een hangcloset en fonteintje.

Via een fraaie, glazen schuifdeur betreedt u de royale woonkamer met open keuken, samen goed voor circa 35 m² leefruimte. Grote ramen en tuindeuren zorgen voor een overvloed aan natuurlijk licht en een directe verbinding met de tuin. De airconditioning garandeert het hele jaar door een aangenaam binnenklimaat. De laminaatvloer uit de entree loopt naadloos door, wat zorgt voor een mooi geheel en een ruimtelijk gevoel.

De keuken vormt het hart van deze leefruimte en werd in 2019 volledig vernieuwd. Ze is uitgerust met een kookeiland met betonlook werkblad en fronten, en voorzien van hoogwaardige Siemens inbouwapparatuur: een oven, magnetron, inductiekookplaat, afzuigkap, vaatwasser en koelkast. Er is bovendien volop werk- en opbergruimte aanwezig.

Aan de achterzijde, in een smaakvolle uitbouw, bevindt zich de eetkamer (ca. 11 m²), die eveneens geniet van veel lichtinval en toegang tot de tuin. De aanwezige pellet kachel zorgt hier voor extra warmte en sfeer en is een energiezuinige manier van verwarmen.

-Eerste verdieping:
Via de eikenhouten trap (vernieuwd in 2021) bereikt u de overloop met toegang tot drie slaapkamers en de badkamer. Ook bevindt zich hier de vaste trap naar de tweede verdieping. Alle slaapkamers zijn voorzien van rolluiken.
• Slaapkamer 1: Deze ruime slaapkamer is ca. 13 m² groot.
• Slaapkamer 2: Deze comfortabele slaapkamer is ca. 12 m² groot en voorzien van een inbouwkast.
• Slaapkamer 3: Deze slaapkamer is ca. 8,5 m² groot en voorzien van een inbouwkast.
• Badkamer: De moderne badkamer (ca. 4 m²) is in 2023 volledig vernieuwd en uitgerust met een inloopdouche met regendouche, een wastafelmeubel met dubbele wasbak en een hangcloset.

-Tweede verdieping:
Ook deze verdieping is bereikbaar via een trap bekleedt met eikenhout. Op de overloop (ca. 6,5 m²) bevinden zich de witgoedaansluitingen en de cv-installatie (Remeha, Eigendom, 2020). De verdieping beschikt over veel bergruimte in de schuine delen en biedt toegang tot een ruime vierde slaapkamer.
• Slaapkamer 4: Deze ruime slaapkamer is ca. 16,5 m² groot en voorzien van een dakkapel.

-Garage:
De woning beschikt over een ruime garage van ca. 20 m² met een aansluitende bergruimte van ca. 8 m² groot, toegankelijk via een elektrisch bedienbare kantelpoort vanaf de oprit of via een deur vanuit de tuin. De garage is voorzien van elektra en water en biedt voldoende ruimte voor het parkeren van een auto, het stallen van fietsen of extra opslag.

-Tuin:
De woning is voorzien van een royale, onderhoudsvriendelijke achtertuin. U bereikt de tuin via de deuren in de leefruimte en eetkamer, de deur in de garage en de deur aan de zijkant van de woning. De tuin is in split-level aangelegd met meerdere terrassen en volledig gerenoveerd. Direct aan de woning bevindt zich een groot terras met overkapping, een heerlijke plek om beschut buiten te zitten. Via een trap bereikt u het lager gelegen terras, vanwaar u bovendien de multifunctionele ruimte bereikt. De tuin geniet de hele dag van volop zon, waardoor het een heerlijke, lichte plek is om te ontspannen.

-Multifunctionele ruimte:
Aan het onderste terras bevindt zich een deur naar de multifunctionele ruimte van ca. 19 m², welke iets lager is gelegen en momenteel is ingericht als bar. Deze ruimte is echter geheel naar eigen wens in te delen, bijvoorbeeld als hobbyruimte, kantoor of fitnessruimte.

-Nadere bijzonderheden:
• Type woning: Ruime, gerenoveerde woning met oprit en garage, vier slaapkamers, airconditioning, 12 zonnepanelen en een fijne tuin, gelegen op een rustige locatie in Rijckholt.
• Verbouwingen/renovaties: Nieuwe meterkast en keuken geplaatst en alle laminaatvloeren gelegd in 2019. In 2020 is een nieuw plat dak geplaatst en een dak met koepel. In 2021 is de woonkamer en uitbouw geïsoleerd en zijn de eikenhouten trappen geplaatst. Bovendien zijn de voorgevel, de zijkant gedeeltelijk en de trap opnieuw gevoegd. In 2023 is de toilet beneden betegeld en is de badkamer geplaatst.
• Kozijnen: Kunststof kozijnen met uitzondering van een raam op de tweede verdieping (hout). Dubbele beglazing.
• Rolluiken: De woning is grotendeels voorzien van rolluiken.
• Centrale verwarming: cv-ketel (Remeha, Eigendom, 2020).
• Energielabel: C.
• Zonnepanelen: 12 zonnepanelen in eigendom (2020).
• Alle vermelde afmetingen zijn indicatief en kunnen afwijken van de werkelijkheid.

-Omgeving:
Rustig wonen in het charmante Rijckholt, nabij Gronsveld en Maastricht
Deze woning is prachtig gelegen aan de rand van Gronsveld, in het karakteristieke dorp Rijckholt – een pittoreske plek met een rijke historie en een bijzonder aangename woonomgeving. Rijckholt maakt deel uit van de gemeente Eijsden-Margraten en combineert de rust van het Zuid-Limburgse landschap met de nabijheid van stedelijke voorzieningen. Hier woont u landelijk en rustig, omringd door natuur, maar met het bruisende Maastricht op slechts enkele autominuten afstand. Het dorp staat bekend om zijn gemoedelijke sfeer, authentieke dorpskern, tradities zoals de eeuwenoude schutterij en natuurlijk het nabijgelegen Savelsbos – een uitgestrekt natuurgebied waar wandelaars en natuurliefhebbers hun hart kunnen ophalen. Voorzieningen zoals een bakker, basisschool en kinderopvang vindt u in het naastgelegen Gronsveld, waardoor de omgeving zowel voor gezinnen als rustzoekers ideaal is. Dankzij de uitstekende ligging ten opzichte van de A2 en andere uitvalswegen bent u binnen 10 minuten in het centrum van Maastricht, en ook steden als Luik en Aken zijn vlot bereikbaar. Kortom: wonen in Rijckholt betekent genieten van ruimte, rust en natuur, met alle dagelijkse gemakken en de stad binnen handbereik.

Graag verwijzen wij u naar onze website goessens-makelaardij.nl, waar meer verkoopinformatie, onze disclaimer en de verkoopvoorwaarden te vinden zijn. Deze presentatie is door Goessens & Goessens Makelaardij met de nodige zorg samengesteld. Onzerzijds wordt echter geen enkele aansprakelijkheid aanvaard voor enige onvolledigheid, onjuist of anderszins, dan wel de gevolgen daarvan. Alle opgegeven maten en oppervlakten zijn indicatief. Deze presentatie is slechts indicatief. Er is nagestreefd naar een zo zorgvuldig mogelijke informatie van de ter beschikking staande gegevens.

Reageren op deze woning?

Bent u enthousiast geworden na het lezen van deze woningpresentatie en wilt u vrijblijvend meer informatie over deze woning ontvangen? Of wilt een bezichtiging aanvragen? Vul onderstaand contactformulier in en wij nemen z.s.m. contact met u op.

Uw bericht is naar ons verzonden. Wij nemen zo snel mogelijk contact met u op.

Sorry, we kunnen helaas niet met zekerheid vaststellen of je een mens of een geautomatiseerde bot/spammer bent. Hierdoor kunnen we het formulier dat je hebt ingevuld niet verzenden. Probeer het opnieuw of neem direct contact op met de makelaar via e-mail.

Er is iets mis gegaan met het versturen van het formulier.
Controleer of u alle velden (goed) heeft ingevoerd en probeer het nog een keer.

U zult automatisch een kopie van dit ingevuld contactformulier ontvangen op het door u ingevulde e-mailadres.

Wij vragen alleen uw gegevens die nodig zijn voor het beantwoorden van uw verzoek. Voor meer informatie verwijzen wij u naar onze privacyverklaring op onze website. Bij het versturen van dit formulier gaat u hiermee akkoord.

recaptcha
reCAPTCHA
PrivacyTerms

Heeft u liever dat wij u terugbellen?

Laat uw telefoonnummer achter en wij bellen u zo spoedig mogelijk terug.

Uw bericht is naar ons verzonden. Wij nemen zo snel mogelijk contact met u op.

Sorry, we kunnen helaas niet met zekerheid vaststellen of je een mens of een geautomatiseerde bot/spammer bent. Hierdoor kunnen we het formulier dat je hebt ingevuld niet verzenden. Probeer het opnieuw of neem direct contact op met de makelaar via e-mail.

Er is iets mis gegaan met het versturen van het formulier.
Controleer of u alle velden (goed) heeft ingevoerd en probeer het nog een keer.

recaptcha
reCAPTCHA
PrivacyTerms

Uw woning verkopen?

Wanneer u overweegt om uw huis te verkopen, vraag dan een vrijblijvend adviesgesprek en een waardebepaling aan. Wij maken graag een afspraak met u!

Gratis adviesgesprek

Locatie

[ { "lat": 50.8009233, "lng": 5.7306139, "heading": 0, "pitch": 0 } ]

Kenmerken

Aanvaarding

Prijs
€ 419.000 k.k.
Status
Onder bod
Oplevering
In overleg
Adres
Vuursteenstraat 8
Postcode
6247 CT
Plaats
Gronsveld

Bouw

Soort woonhuis
Eengezinswoning, 2-onder-1-kapwoning
Soort bouw
Bestaande bouw
Bouwjaar
1970

Oppervlakten en inhoud

Woonoppervlakte
ca. 123m²
Perceeloppervlakte
ca. 272m²
Overig oppervlakte
ca. 19m²
Inhoud
ca. 502m³

Indeling

Aantal kamers
5
Aantal slaapkamers
4
Aantal badkamers
1
Aantal verdiepingen
3
Voorzieningen
Airconditioning, Natuurlijke ventilatie, Rolluiken

Energie

Energielabel
C
Isolatie
Dubbel glas
Warm water
C.V.-ketel, Elektrische boiler eigendom
Verwarming
C.V.-ketel, Pelletkachel
Ketel
Tzerra CV5 C39 (2020, Combi-ketel, Eigendom)

Buitenruimte

Ligging
Aan rustige weg
Tuin
Tuin rondom

Garage

Soort garage
Aangebouwd steen
Capaciteit
1
Voorzieningen
Met elektrische deur, Voorzien van elektra

Schriftelijkheidsvereiste:

Ter bescherming van de belangen van zowel koper als verkoper, wordt uitdrukkelijk gesteld dat een koopovereenkomst met betrekking tot deze onroerende zaak eerst dan tot stand komt nadat koper en verkoper beide de koopovereenkomst hebben getekend ("schriftelijkheidsvereiste"). Dit betekent dat een bevestiging van de afspraken per e-mail, of een toegestuurd concept van de koopovereenkomst, hier niet onder vallen

Waarborgsom/bankgarantie:

De waarborgsom/bankgarantie is 10% van de koopsom. De koper dient deze uiterlijk 1 week na het vervallen van de ontbindende voorwaarden bij de desbetreffende notaris te deponeren.

Bouwkundige keuring:

Koper is te allen tijde gerechtigd voor eigen rekening een bouwkundige keuring te (laten) verrichten dan wel andere adviseurs te raadplegen teneinde een goed inzicht te verkrijgen over de staat van de woning. De beoordeling van de woning zoals omschreven in bovenstaande presentatie en de brochure is gebaseerd op visuele waarneming, de leeftijd van de woning, en de informatie die verkregen is van de verkoper(s). Een bouwkundige rapportage valt nadrukkelijk buiten de informatie van deze websitepresentatie.

Aansprakelijkheid:

Deze websitepresentatie is door ons Goessens & Goessens Makelaardij met de nodige zorgvuldigheid samengesteld. Onzerzijds wordt echter geen enkele aansprakelijkheid aanvaard voor enige onvolledigheid, onjuist of anderszins, dan wel de gevolgen daarvan. Alle opgegeven maten en oppervlakten zijn indicatief. Deze websitepresentatie is slechts indicatief. Alle vermelden maten zijn circa maten. Er is nagestreefd naar een zo zorgvuldig mogelijke informatie van de ter beschikking staande gegevens. De verkoper heeft een mededelingsplicht inzake zaken die hem bekend zijn van het onroerend goed. De potentiele koper heeft een onderzoek plicht inzake de voor hem van belang zijnde gegevens van het onroerend goed.

Onderzoek plicht koper:

De informatie tijdens de rondleiding en in de websitepresentatie en overig informatiemateriaal is verkregen van de verkoper van de woning en is bedoeld om de koper te informeren. In het Burgerlijk Wetboek staat opgenomen dat op de koper van een woning een onderzoek plicht rust. Onder de onderzoeksplicht vallen bouwkundige gebreken/staat van de woning en publiekrechtelijke openbare informatie (zoals verkeers- /bestemmingsplannen). Een bouwkundige keuring geeft hier duidelijkheid over.

Copyright ©:

Gehele of gedeeltelijke overname, plaatsing op andere sites, advertenties, verveelvoudiging op welke andere wijze dan ook en/of commercieel gebruik van deze informatie (zoals foto’s, plattegronden, teksten, kenmerken etc.), is niet toegestaan, tenzij hiervoor uitdrukkelijk schriftelijke toestemming is verleend door Goessens & Goessens Makelaardij of tenzij aan de onderstaande voorwaarden wordt voldaan. Deze informatie mag worden bekeken , mits de informatie niet wordt gebruikt in een ander werk of publicatie in welk medium dan ook.