Goessens & Goessens Makelaardij gebruikt cookies om de website naar behoren te laten werken, om functies voor social media te bieden en om onze website te analyseren. Op onze website kun je ons Cookiebeleid en Privacybeleid vinden.

Vuursteenstraat 10, Gronsveld

In het rustige en charmante dorp Rijckholt ligt deze ruime twee-onder-een-kapwoning met garage. De woning biedt volop mogelijkheden om geheel naar eigen smaak te moderniseren en zo een comfortabel en eigentijds thuis te realiseren. Met vier slaapkamers, een praktische indeling en een royale achtertuin met veel privacy is dit een ideale woning voor wie ruimte en potentie zoekt. Extra pluspunten zijn de aanwezigheid van airconditioning en 10 zonnepanelen, die zorgen voor extra wooncomfort en bijdragen aan lagere energielasten.

De ligging is bijzonder gunstig: Rijckholt staat bekend om zijn landelijke rust en groene omgeving, terwijl voorzieningen in naburige dorpen en Maastricht eenvoudig bereikbaar zijn. Op korte afstand vindt u winkels, scholen en sportvoorzieningen, en binnen circa 15 minuten bereikt u Maastricht, het MUMC+ en de Universiteit Maastricht.

Dankzij deze combinatie van landelijke charme en stedelijke nabijheid is dit huis aantrekkelijk voor uiteenlopende doelgroepen, zoals gezinnen en stellen die op zoek zijn naar ruimte en een fijne woonomgeving.

Nieuw Verkocht onder voorbehoud

€ 299.000 k.k.

Woningtype
Geschakelde 2-onder-1-kapwoning

Woonoppervlakte
ca. 112m²

Perceeloppervlakte
ca. 260m²

Inhoud
ca. 526m³

Kamers
5

Slaapkamers
4

Bouwjaar
1970

Aanvaarding
In overleg

Omschrijving

DEZE WONING WORDT AANGEBODEN DOOR GOESSENS & GOESSENS MAKELAARDIJ.

-Beschrijving:
In het rustige en charmante dorp Rijckholt ligt deze ruime twee-onder-een-kapwoning met garage. De woning biedt volop mogelijkheden om geheel naar eigen smaak te moderniseren en zo een comfortabel en eigentijds thuis te realiseren. Met vier slaapkamers, een praktische indeling en een royale achtertuin met veel privacy is dit een ideale woning voor wie ruimte en potentie zoekt. Extra pluspunten zijn de aanwezigheid van airconditioning en 10 zonnepanelen, die zorgen voor extra wooncomfort en bijdragen aan lagere energielasten.

De ligging is bijzonder gunstig: Rijckholt staat bekend om zijn landelijke rust en groene omgeving, terwijl voorzieningen in naburige dorpen en Maastricht eenvoudig bereikbaar zijn. Op korte afstand vindt u winkels, scholen en sportvoorzieningen, en binnen circa 15 minuten bereikt u Maastricht, het MUMC+ en de Universiteit Maastricht.

Dankzij deze combinatie van landelijke charme en stedelijke nabijheid is dit huis aantrekkelijk voor uiteenlopende doelgroepen, zoals gezinnen en stellen die op zoek zijn naar ruimte en een fijne woonomgeving.

-Indeling:

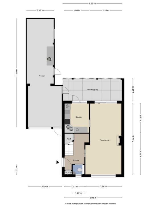
-Begane grond:
Bij binnenkomst is er een royale entree van ca. 8 m², voorzien van een lichte tegelvloer. Vanuit de hal heeft u toegang tot de meterkast, de toiletruimte en de woonkamer. Ook de trap naar de eerste verdieping bevindt zich hier, met eronder een praktische trappenkast voor extra bergruimte. De betegelde toiletruimte is uitgerust met een modern hangcloset en fonteintje.

De woonkamer (ca. 27 m²) valt op door de grote raampartijen en de schuifpui, die zorgen voor een prettige lichtinval en een directe verbinding met de achtertuin. Centraal in de ruimte bevindt zich een sfeervolle schouw, en ook hier is een airconditioning aanwezig voor extra wooncomfort. Vanuit de woonkamer is de keuken bereikbaar.

De keuken (ca. 8 m²) is praktisch ingericht met diverse inbouwapparatuur: een oven, keramische kookplaat, afzuigkap en vaatwasser. Ook vanuit de keuken is er een deur naar de achtertuin, waardoor binnen en buiten naadloos met elkaar verbonden zijn.

-Eerste verdieping:
De trap in de entree leidt naar de overloop op de eerste verdieping, van waaruit drie slaapkamers en de badkamer bereikbaar zijn. Op de overloop bevindt zich eveneens een airconditioning.
• Slaapkamer 1: Deze slaapkamer is ca. 13 m² groot. Hier bevindt zich tevens de vaste trap naar de tweede verdieping.
• Slaapkamer 2: Deze slaapkamer is ca. 12 m² groot en voorzien van veel kastruimte.
• Slaapkamer 3: Deze slaapkamer is ca. 8,5 m² groot en eveneens voorzien van kastruimte.
• Badkamer: De betegelde badkamer is ca. 5 m² groot en voorzien van een douchecabine, een wastafelmeubel en een hangcloset.

-Tweede verdieping:
Via de vaste trap in de eerste slaapkamer bereikt u de tweede verdieping. Dankzij de dakkapel is dit een woonlaag met extra ruimte en licht. Hier bevinden zich de vierde slaapkamer en een ruime berging.
• Slaapkamer 4: Deze slaapkamer is ca. 16 m² groot.
• Berging: De berging heeft een vloeroppervlakte van 16 m² en is voorzien van de cv-ketel (Remeha, …,…) en de omvormer van de zonnepanelen.

-Garage:
De woning beschikt over een ruime garage met aangrenzende bijkeuken/berging van in totaal ca. 37 m² groot. De garage is toegankelijk via een elektrisch bedienbare kantelpoort, een deur vanaf de oprit én een deur vanuit de achtertuin. De aanwezigheid van elektra en water maakt deze ruimte ideaal voor het parkeren van een auto, het stallen van fietsen of als praktische klus- of hobbyruimte.

-Tuin:
De royale en groene achtertuin is bereikbaar via de garage, de keuken of de woonkamer. De tuin is splitlevel en is voorzien van veel privacy. Grenzend aan de woonkamer en keuken bevindt zich een ruime overkapping. Hoewel de tuin enige verzorging vraagt, biedt deze juist ook de kans om volledig naar eigen wens en smaak in te richten en er een persoonlijke groene oase van te maken.

Nadere bijzonderheden:
• Type woning: Te moderniseren twee-onder-een-kapwoning met ruime oprit en garage, vier slaapkamers, 10 zonnepanelen en airconditioning op een rustige locatie in het geliefde Rijckholt.
• Kozijnen: Houten kozijnen en grotendeels dubbele beglazing.
• Centrale verwarming: HR combi-ketel (Remeha, …,…).
• Zonnepanelen: 10 zonnepanelen in eigendom.
• Energielabel: D. Met nog voldoende mogelijkheden tot modernisatie die de makelaar u graag toelicht.
• Alle vermelde afmetingen zijn indicatief en kunnen afwijken van de werkelijkheid.

-Omgeving:
De woning is rustig gelegen aan de rand van Gronsveld, in de plaats Rijckholt.
Een pittoresk dorp met een rijke geschiedenis en een ideale ligging, welke deel uitmaakt van de gemeente Eijsden-Margraten. Gelegen aan de rand van Maastricht, biedt Rijckholt het beste van twee werelden: de rust en charme van een landelijke omgeving én de nabijheid van de stad. Het dorp staat bekend om zijn gezellige dorpskern, de rijke tradities zoals de eeuwenoude schutterij en de prachtige natuur. Het nabijgelegen Savelsbos is een oase van rust en biedt talloze mogelijkheden voor wandelingen en buitenactiviteiten. Het naastgelegen Gronsveld beschikt over diverse voorzieningen, waaronder een bakker, basisschool en kinderopvang, waardoor het een ideale woonomgeving is voor zowel gezinnen, als rustzoekers. Dankzij de uitstekende verbinding met de A2 en andere uitvalswegen, bent u binnen 10 minuten in het centrum van Maastricht, terwijl steden als Luik en Aken eveneens goed bereikbaar zijn. Wonen in Gronsveld/Rijckholt betekent genieten van een rustige, groene omgeving met alle gemakken binnen handbereik.

Graag verwijzen wij u naar onze website goessens-makelaardij.nl, waar meer verkoopinformatie, onze disclaimer en de verkoopvoorwaarden te vinden zijn. Deze presentatie is door Goessens & Goessens Makelaardij met de nodige zorg samengesteld. Onzerzijds wordt echter geen enkele aansprakelijkheid aanvaard voor enige onvolledigheid, onjuist of anderszins, dan wel de gevolgen daarvan. Alle opgegeven maten en oppervlakten zijn indicatief. Deze presentatie is slechts indicatief. Er is nagestreefd naar een zo zorgvuldig mogelijke informatie van de ter beschikking staande gegevens.

Reageren op deze woning?

Bent u enthousiast geworden na het lezen van deze woningpresentatie en wilt u vrijblijvend meer informatie over deze woning ontvangen? Of wilt een bezichtiging aanvragen? Vul onderstaand contactformulier in en wij nemen z.s.m. contact met u op.

Uw bericht is naar ons verzonden. Wij nemen zo snel mogelijk contact met u op.

Sorry, we kunnen helaas niet met zekerheid vaststellen of je een mens of een geautomatiseerde bot/spammer bent. Hierdoor kunnen we het formulier dat je hebt ingevuld niet verzenden. Probeer het opnieuw of neem direct contact op met de makelaar via e-mail.

Er is iets mis gegaan met het versturen van het formulier.
Controleer of u alle velden (goed) heeft ingevoerd en probeer het nog een keer.

U zult automatisch een kopie van dit ingevuld contactformulier ontvangen op het door u ingevulde e-mailadres.

Wij vragen alleen uw gegevens die nodig zijn voor het beantwoorden van uw verzoek. Voor meer informatie verwijzen wij u naar onze privacyverklaring op onze website. Bij het versturen van dit formulier gaat u hiermee akkoord.

recaptcha
reCAPTCHA
PrivacyTerms

Heeft u liever dat wij u terugbellen?

Laat uw telefoonnummer achter en wij bellen u zo spoedig mogelijk terug.

Uw bericht is naar ons verzonden. Wij nemen zo snel mogelijk contact met u op.

Sorry, we kunnen helaas niet met zekerheid vaststellen of je een mens of een geautomatiseerde bot/spammer bent. Hierdoor kunnen we het formulier dat je hebt ingevuld niet verzenden. Probeer het opnieuw of neem direct contact op met de makelaar via e-mail.

Er is iets mis gegaan met het versturen van het formulier.
Controleer of u alle velden (goed) heeft ingevoerd en probeer het nog een keer.

recaptcha
reCAPTCHA
PrivacyTerms

Uw woning verkopen?

Wanneer u overweegt om uw huis te verkopen, vraag dan een vrijblijvend adviesgesprek en een waardebepaling aan. Wij maken graag een afspraak met u!

Gratis adviesgesprek

Locatie

[ { "lat": 50.8008, "lng": 5.730694, "heading": 0, "pitch": 0 } ]

Kenmerken

Aanvaarding

Prijs
€ 299.000 k.k.
Status
Verkocht onder voorbehoud
Oplevering
In overleg
Adres
Vuursteenstraat 10
Postcode
6247 CT
Plaats
Gronsveld

Bouw

Soort woonhuis
Eengezinswoning, Geschakelde 2-onder-1-kapwoning
Soort bouw
Bestaande bouw
Bouwjaar
1970

Oppervlakten en inhoud

Woonoppervlakte
ca. 112m²
Perceeloppervlakte
ca. 260m²
Overig oppervlakte
ca. 37m²
Inhoud
ca. 526m³

Indeling

Aantal kamers
5
Aantal slaapkamers
4
Aantal badkamers
1
Aantal verdiepingen
3
Voorzieningen
Natuurlijke ventilatie, Rolluiken

Energie

Energielabel
D
Isolatie
Grotendeels dubbelglas
Warm water
C.V.-ketel
Verwarming
C.V.-ketel

Buitenruimte

Ligging
Aan rustige weg
Tuin
Tuin rondom

Garage

Soort garage
Aangebouwd steen
Capaciteit
1
Voorzieningen
Met elektrische deur, Voorzien van elektra, Voorzien van water

Schriftelijkheidsvereiste:

Ter bescherming van de belangen van zowel koper als verkoper, wordt uitdrukkelijk gesteld dat een koopovereenkomst met betrekking tot deze onroerende zaak eerst dan tot stand komt nadat koper en verkoper beide de koopovereenkomst hebben getekend ("schriftelijkheidsvereiste"). Dit betekent dat een bevestiging van de afspraken per e-mail, of een toegestuurd concept van de koopovereenkomst, hier niet onder vallen

Waarborgsom/bankgarantie:

De waarborgsom/bankgarantie is 10% van de koopsom. De koper dient deze uiterlijk 1 week na het vervallen van de ontbindende voorwaarden bij de desbetreffende notaris te deponeren.

Bouwkundige keuring:

Koper is te allen tijde gerechtigd voor eigen rekening een bouwkundige keuring te (laten) verrichten dan wel andere adviseurs te raadplegen teneinde een goed inzicht te verkrijgen over de staat van de woning. De beoordeling van de woning zoals omschreven in bovenstaande presentatie en de brochure is gebaseerd op visuele waarneming, de leeftijd van de woning, en de informatie die verkregen is van de verkoper(s). Een bouwkundige rapportage valt nadrukkelijk buiten de informatie van deze websitepresentatie.

Aansprakelijkheid:

Deze websitepresentatie is door ons Goessens & Goessens Makelaardij met de nodige zorgvuldigheid samengesteld. Onzerzijds wordt echter geen enkele aansprakelijkheid aanvaard voor enige onvolledigheid, onjuist of anderszins, dan wel de gevolgen daarvan. Alle opgegeven maten en oppervlakten zijn indicatief. Deze websitepresentatie is slechts indicatief. Alle vermelden maten zijn circa maten. Er is nagestreefd naar een zo zorgvuldig mogelijke informatie van de ter beschikking staande gegevens. De verkoper heeft een mededelingsplicht inzake zaken die hem bekend zijn van het onroerend goed. De potentiele koper heeft een onderzoek plicht inzake de voor hem van belang zijnde gegevens van het onroerend goed.

Onderzoek plicht koper:

De informatie tijdens de rondleiding en in de websitepresentatie en overig informatiemateriaal is verkregen van de verkoper van de woning en is bedoeld om de koper te informeren. In het Burgerlijk Wetboek staat opgenomen dat op de koper van een woning een onderzoek plicht rust. Onder de onderzoeksplicht vallen bouwkundige gebreken/staat van de woning en publiekrechtelijke openbare informatie (zoals verkeers- /bestemmingsplannen). Een bouwkundige keuring geeft hier duidelijkheid over.

Copyright ©:

Gehele of gedeeltelijke overname, plaatsing op andere sites, advertenties, verveelvoudiging op welke andere wijze dan ook en/of commercieel gebruik van deze informatie (zoals foto’s, plattegronden, teksten, kenmerken etc.), is niet toegestaan, tenzij hiervoor uitdrukkelijk schriftelijke toestemming is verleend door Goessens & Goessens Makelaardij of tenzij aan de onderstaande voorwaarden wordt voldaan. Deze informatie mag worden bekeken , mits de informatie niet wordt gebruikt in een ander werk of publicatie in welk medium dan ook.