Goessens & Goessens Makelaardij gebruikt cookies om de website naar behoren te laten werken, om functies voor social media te bieden en om onze website te analyseren. Op onze website kun je ons Cookiebeleid en Privacybeleid vinden.

Voerenweg 36, Gronsveld

Aan de groene Voerenweg, in het charmante en landelijke dorp Rijckholt, bevindt zich deze stijlvolle, vrijstaande woning, met 4 slaapkamers, op een prachtig perceel van circa 545 m². Deze woning biedt een perfecte combinatie van ruimte, privacy en buitenleven. De royale oprit, de ruime garage en de mogelijkheid voor meerdere slaapkamers maken dit een ideale woning voor gezinnen of liefhebbers van comfort en rust. De grote, rondom gelegen tuin is een absolute troef: ideaal voor tuinliefhebbers, kinderen, of voor iedereen die geniet van het buitenleven en de rust van een groene omgeving.

Rijckholt biedt een rustige, dorpse woonomgeving, terwijl basisscholen, winkels en het winkelcentrum van Eijsden binnen korte afstand bereikbaar zijn. Tegelijkertijd ligt het bruisende centrum van Maastricht op circa tien minuten rijden, waardoor u het landelijke wonen combineert met praktische nabijheid van stedelijke voorzieningen.

Nieuw

€ 589.000 k.k.

Woningtype
Vrijstaande woning

Woonoppervlakte
ca. 190m²

Perceeloppervlakte
ca. 465m²

Inhoud
ca. 907m³

Kamers
5

Slaapkamers
4

Bouwjaar
1983

Aanvaarding
In overleg

Omschrijving

Deze woning wordt aangeboden door Goessens & Goessens Makelaardij

-Beschrijving:
Aan de groene Voerenweg, in het charmante en landelijke dorp Rijckholt, bevindt zich deze stijlvolle, vrijstaande woning, met 4 slaapkamers, op een prachtig perceel van circa 545 m². Deze woning biedt een perfecte combinatie van ruimte, privacy en buitenleven. De royale oprit, de ruime garage en de mogelijkheid voor meerdere slaapkamers maken dit een ideale woning voor gezinnen of liefhebbers van comfort en rust. De grote, rondom gelegen tuin is een absolute troef: ideaal voor tuinliefhebbers, kinderen, of voor iedereen die geniet van het buitenleven en de rust van een groene omgeving.

Rijckholt biedt een rustige, dorpse woonomgeving, terwijl basisscholen, winkels en het winkelcentrum van Eijsden binnen korte afstand bereikbaar zijn. Tegelijkertijd ligt het bruisende centrum van Maastricht op circa tien minuten rijden, waardoor u het landelijke wonen combineert met praktische nabijheid van stedelijke voorzieningen.

-Indeling:

-Kelder:
Via de trap in de entree bereikt u de kelder, bestaande uit drie praktische bergruimtes. Deze ruimtes zijn uitermate geschikt voor opslag van voorraden, seizoensgebonden materialen of hobbybenodigdheden, waardoor u in de rest van de woning volop leefruimte overhoudt.

-Begane grond:
De royale entree, voorzien van een donkere tegelvloer, biedt toegang tot de meterkast, het toilet, de woon-/eetkamer met semi-open keuken en de trap naar het souterrain. Het toilet is keurig betegeld en uitgerust met een hangcloset en fonteintje.

De ruime woon-/eetkamer met semi-open keuken, van samen ca. 32 m² groot, ademt sfeer en charme. De grote hoge raampartijen laten veel natuurlijk licht binnenvallen en bieden een prachtig zicht op de tuin, waardoor binnen en buiten op een mooie manier met elkaar verbonden zijn. Via de openslaande deuren aan de achterzijde stapt u zo het terras op, ideaal voor het genieten van zonnige dagen of gezellige avonden buiten.

Een gedeelte van de woonkamer (ca. 21 m²) is split level gelegen. Hier ligt vloerbedekking en zorgen de karakteristieke schouw met houtkachel en het hoge plafond voor een warme, landelijke uitstraling.

De semi-open keuken, gelegen aan de achterzijde van de woning, is goed onderhouden en uitgerust met hoogwaardige apparatuur van Miele, waaronder een elektrische kookplaat, afzuigkap, oven, vaatwasser en koelkast. Vanuit de keuken is de praktische bijkeuken bereikbaar, voorzien van een spoelbak en extra bergruimte, en biedt toegang tot de garage.

-Eerste verdieping:
Via de trap in de entree bereikt u de eerste verdieping, waar een overloop toegang geeft tot vier slaapkamers en de badkamer.
• Slaapkamer 1: Een ruime slaapkamer van ca. 11 m² groot.
• Slaapkamer 2: Een fijne comfortabele slaapkamer van ca. 8 m² groot.
• Slaapkamer 3: Een comfortabele slaapkamer van ca. 8 m² groot.
• Slaapkamer 4: Een fijne slaapkamer van ca. 8 m² groot.
• Badkamer: Deze goed onderhouden, ruime badkamer is betegeld en uitgerust met een douchecabine, een ligbad, twee wastafels, een hangcloset en een handdoekradiator.

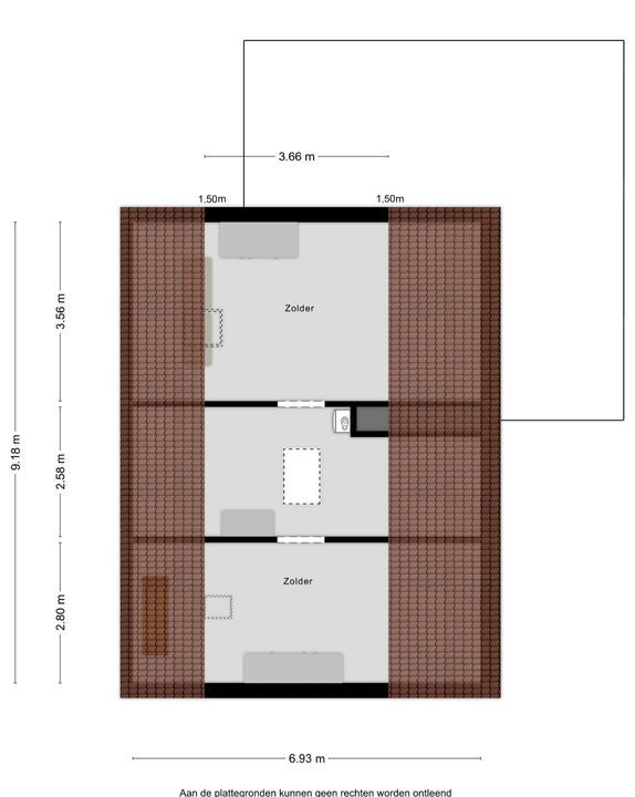
-Zolder:
Via een vlizotrap bereikt u de zolderverdieping, bestaande uit drie royale ruimtes. Hier bevindt zich de cv-installatie (Nefit, Eigendom, bouwjaar onbekend). Momenteel wordt deze verdieping gebruikt als bergruimte, maar met enige aanpassingen kunnen hier een of twee extra slaapkamers worden gecreëerd, waardoor de woning nog veelzijdiger wordt.

-Garage:
De ruime garage van ca. 21 m² is via de bijkeuken, de tuin en de handmatig bedienbare poort vanaf de oprit toegankelijk. De garage is voorzien van elektra en verwarming en biedt voldoende ruimte voor het stallen van een auto, fietsen of extra opslag. De royale oprit biedt daarnaast parkeergelegenheid voor meerdere voertuigen.

-Tuin:
De schitterende tuin rondom de woning is een echte blikvanger. Toegang is mogelijk vanuit de woon-/eetkamer, de garage en de zijingang. De combinatie van weelderige plantenborders, een groot gazon en een ruim terras direct grenzend aan de woonkamer maakt dit een veelzijdige en groene buitenruimte. Achter in de tuin bevindt zich een praktische berging voor tuingereedschap of materialen. Het ruime perceel van circa 545 m² biedt volop mogelijkheden om extra terrassen aan te leggen, een moestuin te starten of gewoon te genieten van het buitenleven in alle rust.

-Nadere bijzonderheden:
• Type woning: Vrijstaande woning met garage en uitgestrekte tuin, gelegen op een perceel van maar liefst ca. 545 m² in Rijckholt.
• Kozijnen: Hardhouten kozijnen met enkele beglazing.
• Centrale verwarming: HR combi-ketel (Nefit, Eigendom, bouwjaar onbekend).
• Energielabel: D. Met nog voldoende mogelijkheden tot verduurzaming, die de makelaar u graag toelicht.
• Alle vermelde afmetingen zijn indicatief en kunnen afwijken van de werkelijkheid.

-Omgeving:
Rustig wonen in het charmante Rijckholt, nabij Gronsveld en Maastricht
Deze woning is prachtig gelegen aan de rand van Gronsveld, in het karakteristieke dorp Rijckholt – een pittoreske plek met een rijke historie en een bijzonder aangename woonomgeving. Rijckholt maakt deel uit van de gemeente Eijsden-Margraten en combineert de rust van het Zuid-Limburgse landschap met de nabijheid van stedelijke voorzieningen. Hier woont u landelijk en rustig, omringd door natuur, maar met het bruisende Maastricht op slechts enkele autominuten afstand. Het dorp staat bekend om zijn gemoedelijke sfeer, authentieke dorpskern, tradities zoals de eeuwenoude schutterij en natuurlijk het nabijgelegen Savelsbos – een uitgestrekt natuurgebied waar wandelaars en natuurliefhebbers hun hart kunnen ophalen. Voorzieningen zoals een bakker, basisschool en kinderopvang vindt u in het naastgelegen Gronsveld, waardoor de omgeving zowel voor gezinnen als rustzoekers ideaal is. Dankzij de uitstekende ligging ten opzichte van de A2 en andere uitvalswegen bent u binnen 10 minuten in het centrum van Maastricht, en ook steden als Luik en Aken zijn vlot bereikbaar.
Kortom: wonen in Rijckholt betekent genieten van ruimte, rust en natuur, met alle dagelijkse gemakken en de stad binnen handbereik.

Graag verwijzen wij u naar onze website goessens-makelaardij.nl, waar meer verkoopinformatie, onze disclaimer en de verkoopvoorwaarden te vinden zijn. Deze presentatie is door Goessens & Goessens Makelaardij met de nodige zorg samengesteld. Onzerzijds wordt echter geen enkele aansprakelijkheid aanvaard voor enige onvolledigheid, onjuist of anderszins, dan wel de gevolgen daarvan. Alle opgegeven maten en oppervlakten zijn indicatief. Deze presentatie is slechts indicatief. Er is nagestreefd naar een zo zorgvuldig mogelijke informatie van de ter beschikking staande gegevens.

Reageren op deze woning?

Bent u enthousiast geworden na het lezen van deze woningpresentatie en wilt u vrijblijvend meer informatie over deze woning ontvangen? Of wilt een bezichtiging aanvragen? Vul onderstaand contactformulier in en wij nemen z.s.m. contact met u op.

Uw bericht is naar ons verzonden. Wij nemen zo snel mogelijk contact met u op.

Sorry, we kunnen helaas niet met zekerheid vaststellen of je een mens of een geautomatiseerde bot/spammer bent. Hierdoor kunnen we het formulier dat je hebt ingevuld niet verzenden. Probeer het opnieuw of neem direct contact op met de makelaar via e-mail.

Er is iets mis gegaan met het versturen van het formulier.
Controleer of u alle velden (goed) heeft ingevoerd en probeer het nog een keer.

U zult automatisch een kopie van dit ingevuld contactformulier ontvangen op het door u ingevulde e-mailadres.

Wij vragen alleen uw gegevens die nodig zijn voor het beantwoorden van uw verzoek. Voor meer informatie verwijzen wij u naar onze privacyverklaring op onze website. Bij het versturen van dit formulier gaat u hiermee akkoord.

recaptcha
reCAPTCHA
PrivacyTerms

Heeft u liever dat wij u terugbellen?

Laat uw telefoonnummer achter en wij bellen u zo spoedig mogelijk terug.

Uw bericht is naar ons verzonden. Wij nemen zo snel mogelijk contact met u op.

Sorry, we kunnen helaas niet met zekerheid vaststellen of je een mens of een geautomatiseerde bot/spammer bent. Hierdoor kunnen we het formulier dat je hebt ingevuld niet verzenden. Probeer het opnieuw of neem direct contact op met de makelaar via e-mail.

Er is iets mis gegaan met het versturen van het formulier.
Controleer of u alle velden (goed) heeft ingevoerd en probeer het nog een keer.

recaptcha
reCAPTCHA
PrivacyTerms

Uw woning verkopen?

Wanneer u overweegt om uw huis te verkopen, vraag dan een vrijblijvend adviesgesprek en een waardebepaling aan. Wij maken graag een afspraak met u!

Gratis adviesgesprek

Locatie

[ { "lat": 50.7968697, "lng": 5.7328407, "heading": 0, "pitch": 0 } ]

Kenmerken

Aanvaarding

Prijs
€ 589.000 k.k.
Status
Beschikbaar
Oplevering
In overleg
Adres
Voerenweg 36
Postcode
6247 EK
Plaats
Gronsveld

Bouw

Soort woonhuis
Eengezinswoning, Vrijstaande woning
Soort bouw
Bestaande bouw
Bouwjaar
1983

Oppervlakten en inhoud

Woonoppervlakte
ca. 190m²
Perceeloppervlakte
ca. 465m²
Overig oppervlakte
ca. 54m²
Inhoud
ca. 907m³

Indeling

Aantal kamers
5
Aantal slaapkamers
4
Aantal badkamers
1
Aantal verdiepingen
4
Voorzieningen
Natuurlijke ventilatie

Energie

Energielabel
D
Isolatie
Grotendeels dubbelglas
Warm water
C.V.-ketel
Verwarming
C.V.-ketel
Ketel
(Eigendom)

Buitenruimte

Ligging
Aan rustige weg
Tuin
Tuin rondom

Garage

Soort garage
Inpandig
Capaciteit
1

Schriftelijkheidsvereiste:

Ter bescherming van de belangen van zowel koper als verkoper, wordt uitdrukkelijk gesteld dat een koopovereenkomst met betrekking tot deze onroerende zaak eerst dan tot stand komt nadat koper en verkoper beide de koopovereenkomst hebben getekend ("schriftelijkheidsvereiste"). Dit betekent dat een bevestiging van de afspraken per e-mail, of een toegestuurd concept van de koopovereenkomst, hier niet onder vallen

Waarborgsom/bankgarantie:

De waarborgsom/bankgarantie is 10% van de koopsom. De koper dient deze uiterlijk 1 week na het vervallen van de ontbindende voorwaarden bij de desbetreffende notaris te deponeren.

Bouwkundige keuring:

Koper is te allen tijde gerechtigd voor eigen rekening een bouwkundige keuring te (laten) verrichten dan wel andere adviseurs te raadplegen teneinde een goed inzicht te verkrijgen over de staat van de woning. De beoordeling van de woning zoals omschreven in bovenstaande presentatie en de brochure is gebaseerd op visuele waarneming, de leeftijd van de woning, en de informatie die verkregen is van de verkoper(s). Een bouwkundige rapportage valt nadrukkelijk buiten de informatie van deze websitepresentatie.

Aansprakelijkheid:

Deze websitepresentatie is door ons Goessens & Goessens Makelaardij met de nodige zorgvuldigheid samengesteld. Onzerzijds wordt echter geen enkele aansprakelijkheid aanvaard voor enige onvolledigheid, onjuist of anderszins, dan wel de gevolgen daarvan. Alle opgegeven maten en oppervlakten zijn indicatief. Deze websitepresentatie is slechts indicatief. Alle vermelden maten zijn circa maten. Er is nagestreefd naar een zo zorgvuldig mogelijke informatie van de ter beschikking staande gegevens. De verkoper heeft een mededelingsplicht inzake zaken die hem bekend zijn van het onroerend goed. De potentiele koper heeft een onderzoek plicht inzake de voor hem van belang zijnde gegevens van het onroerend goed.

Onderzoek plicht koper:

De informatie tijdens de rondleiding en in de websitepresentatie en overig informatiemateriaal is verkregen van de verkoper van de woning en is bedoeld om de koper te informeren. In het Burgerlijk Wetboek staat opgenomen dat op de koper van een woning een onderzoek plicht rust. Onder de onderzoeksplicht vallen bouwkundige gebreken/staat van de woning en publiekrechtelijke openbare informatie (zoals verkeers- /bestemmingsplannen). Een bouwkundige keuring geeft hier duidelijkheid over.

Copyright ©:

Gehele of gedeeltelijke overname, plaatsing op andere sites, advertenties, verveelvoudiging op welke andere wijze dan ook en/of commercieel gebruik van deze informatie (zoals foto’s, plattegronden, teksten, kenmerken etc.), is niet toegestaan, tenzij hiervoor uitdrukkelijk schriftelijke toestemming is verleend door Goessens & Goessens Makelaardij of tenzij aan de onderstaande voorwaarden wordt voldaan. Deze informatie mag worden bekeken , mits de informatie niet wordt gebruikt in een ander werk of publicatie in welk medium dan ook.