Goessens & Goessens Makelaardij gebruikt cookies om de website naar behoren te laten werken, om functies voor social media te bieden en om onze website te analyseren. Op onze website kun je ons Cookiebeleid en Privacybeleid vinden.

van Caldenborghstraat 1, Gronsveld

Nieuw Verkocht onder voorbehoud

€ 349.000 k.k.

Woningtype
2-onder-1-kapwoning

Woonoppervlakte
ca. 81m²

Perceeloppervlakte
ca. 138m²

Inhoud
ca. 464m³

Kamers
4

Slaapkamers
3

Bouwjaar
1970

Aanvaarding
In overleg

Omschrijving

Deze woning wordt aangeboden door Goessens & Goessens Makelaardij

-Beschrijving:
Op een rustige en zeer gewilde locatie in Gronsveld bevindt zich deze uitstekend onderhouden, instapklare woning met garage en oprit. De woning biedt een perfecte combinatie van comfort, ruimte en modern woonplezier. Met drie royale slaapkamers en een omsloten, onderhoudsvriendelijke tuin met zijingang, is deze woning uitermate geschikt voor gezinnen of iedereen die zorgeloos en comfortabel wil wonen. Extra pluspunten zijn de aanwezige 10 zonnepanelen en de airconditioning, waardoor wonen hier niet alleen aangenaam is, maar ook energiezuinig.

De ligging van de woning is bijzonder aantrekkelijk. Direct in de omgeving vindt u prachtige natuurgebieden zoals het Savelsbos, ideaal voor ontspannende wandelingen of fietstochten. Tegelijkertijd zijn diverse winkels, een basisschool en andere dagelijkse voorzieningen eenvoudig te bereiken op loop- of fietsafstand. Voor werk, studie of een dagje uit ligt het bruisende centrum van Maastricht, het MUMC+ en de Universiteit Maastricht op slechts tien minuten rijden.

-Indeling:

-Begane grond:
Via de nette entree (ca. 6 m²) betreedt u de woning. De fraaie laminaatvloer loopt door in de keuken en woonkamer en zorgt voor een ruimtelijk geheel. Vanuit de hal heeft u toegang tot de meterkast, de volledig betegelde toiletruimte met hangcloset en fonteintje, de keuken en de trapopgang naar de eerste verdieping en het souterrain.

De lichte keuken (ca. 8,5 m²) beschikt over een groot raam en een deur naar de achtertuin. De moderne keuken is uitgerust met onder andere een inductiekookplaat, afzuigkap, combi-oven en koelkast.

Aansluitend bevindt zich de woonkamer (ca. 23 m²), een open en lichte leefruimte met grote raampartijen aan zowel de voor- als achterzijde. De sfeervolle schouw met houtkachel vormt het warme middelpunt van de ruimte. Daarnaast is de woonkamer voorzien van airconditioning, wat zorgt voor extra comfort tijdens warme dagen.

-Eerste verdieping:
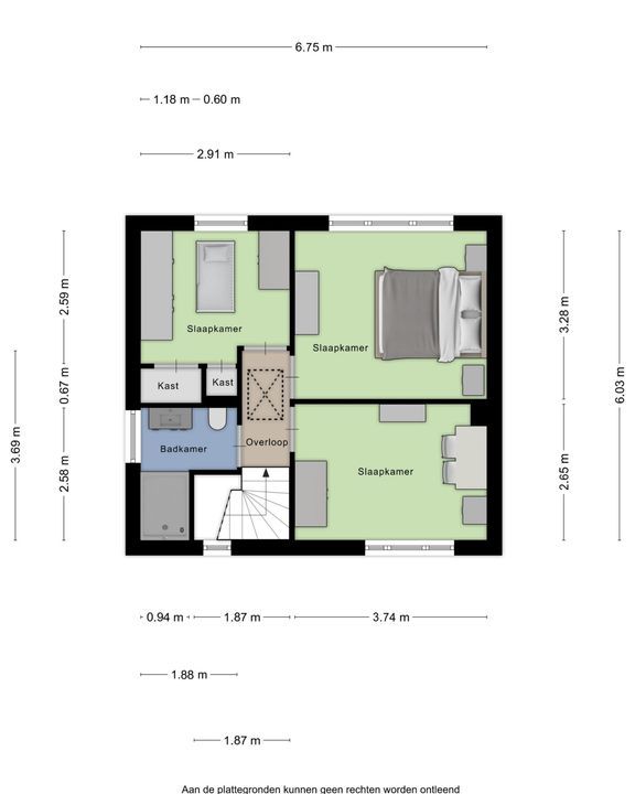
Middels de trap in de entree bereikt u de eerste verdieping. Op de eerste verdieping vindt u drie slaapkamers en een badkamer. Tevens bevindt zich hier de vlizotrap naar de zolder.
• Slaapkamer 1: Deze ruime slaapkamer is ca. 12 m² groot.
• Slaapkamer 2: Deze comfortabele is ca. 10 m² groot.
• Slaapkamer 3: Deze slaapkamer is ca. 7 m² groot en is voorzien van inbouwkasten. Deze kamer is ideaal te gebruiken als hobby- of babykamer.
• Badkamer: De nette, betegelde badkamer van ca. 4 m² groot is voorzien van een inloopdouche, een wastafelmeubel, een closet en een handdoekradiator.

-Zolder:
Via de vlizotrap bereikt u de zolderverdieping, met een vloeroppervlak van ca. 27 m², momenteel in gebruik als bergruimte. Door het plaatsen van een vaste trap en een dakkapel kan hier eenvoudig een vierde slaapkamer gecreëerd worden, waardoor de woning nog meer mogelijkheden biedt voor een groeiend gezin of extra werk- of hobbyruimte.

-Garage/souterrain:
Vanuit de trap in het souterrain bereikt u de hal (ca. 5 m²) in het souterrain. Vanuit hier heeft u toegang tot twee bergingen en de garage. Het souterrain biedt praktische ruimte en extra comfort, ideaal voor opslag of hobbygebruik.
• Berging 1: Deze berging is ca. 9,5 m² groot. Tevens bevindt zich hier de witgoedaansluiting en is veel bergruimte aanwezig.
• Berging 2: Deze berging is ca. 2,5 m² groot.
• Garage: De garage is ca. 21,5 m² groot en eveneens bereikbaar via de elektrisch bedienbare kantelpoort. De garage is voorzien van elektra en biedt plek voor het parkeren van een voertuig of het stallen van fietsen.

-Tuin:
De onderhoudsvriendelijke, omsloten tuin biedt veel privacy en is bereikbaar via de keuken en de zijingang. De tuin beschikt over een ruim terras, plantborders en een uitschuifbaar zonnescherm, waardoor het heerlijk vertoeven is, zowel voor ontspannen momenten als voor gezellige diners buiten. De tuin kan volledig naar eigen wens worden ingericht, waardoor u hier uw eigen persoonlijke oase kunt creëren.

Deze woning combineert een rustige ligging met modern comfort, slimme indeling en volop mogelijkheden. Een instapklare, sfeervolle en ruime woning die klaar is om direct van te genieten.

-Nadere bijzonderheden:
• Type woning: Uitstekend onderhouden woning met garage en oprit, drie slaapkamers en een onderhoudsvriendelijke tuin, gelegen op een fijne en rustige locatie in Gronsveld.
• Kozijnen: Houten kozijnen en dubbele beglazing.
• Rolluiken: Volledig voorzien van rolluiken.
• Zonnepanelen: Voorzien van 10 zonnepanelen in eigendom (2021).
• Centrale verwarming: HR Cv-Ketel (2015, Remeha, Huur)
• Airconditioning aanwezig in de woonkamer.
• Energielabel: C.
• Opmerking: Alle vermelde afmetingen zijn indicatief en kunnen afwijken van de werkelijkheid.

-Omgeving:
Gronsveld: een pittoresk dorp met een rijke geschiedenis en een ideale ligging
Deze woning bevindt zich in het charmante Gronsveld, een dorp dat deel uitmaakt van de gemeente Eijsden-Margraten. Gelegen aan de rand van Maastricht, biedt Gronsveld het beste van twee werelden: de rust en charme van een landelijke omgeving én de nabijheid van de stad. Het dorp staat bekend om zijn gezellige dorpskern, de rijke tradities zoals de eeuwenoude schutterij en de prachtige natuur. Het nabijgelegen Savelsbos is een oase van rust en biedt talloze mogelijkheden voor wandelingen en buitenactiviteiten. Gronsveld beschikt over diverse voorzieningen, waaronder een bakker, basisschool en kinderopvang, waardoor het een ideale woonomgeving is voor zowel gezinnen, als rustzoekers. Dankzij de uitstekende verbinding met de A2 en andere uitvalswegen, bent u binnen 10 minuten in het centrum van Maastricht, terwijl steden als Luik en Aken eveneens goed bereikbaar zijn. Wonen in Gronsveld betekent genieten van een rustige, groene omgeving met alle gemakken binnen handbereik.

Graag verwijzen wij u naar onze website goessens-makelaardij.nl, waar meer verkoopinformatie, onze disclaimer en de verkoopvoorwaarden te vinden zijn. Deze presentatie is door Goessens & Goessens Makelaardij met de nodige zorg samengesteld. Onzerzijds wordt echter geen enkele aansprakelijkheid aanvaard voor enige onvolledigheid, onjuist of anderszins, dan wel de gevolgen daarvan. Alle opgegeven maten en oppervlakten zijn indicatief. Deze presentatie is slechts indicatief. Er is nagestreefd naar een zo zorgvuldig mogelijke informatie van de ter beschikking staande gegevens.

Reageren op deze woning?

Bent u enthousiast geworden na het lezen van deze woningpresentatie en wilt u vrijblijvend meer informatie over deze woning ontvangen? Of wilt een bezichtiging aanvragen? Vul onderstaand contactformulier in en wij nemen z.s.m. contact met u op.

Uw bericht is naar ons verzonden. Wij nemen zo snel mogelijk contact met u op.

Sorry, we kunnen helaas niet met zekerheid vaststellen of je een mens of een geautomatiseerde bot/spammer bent. Hierdoor kunnen we het formulier dat je hebt ingevuld niet verzenden. Probeer het opnieuw of neem direct contact op met de makelaar via e-mail.

Er is iets mis gegaan met het versturen van het formulier.
Controleer of u alle velden (goed) heeft ingevoerd en probeer het nog een keer.

U zult automatisch een kopie van dit ingevuld contactformulier ontvangen op het door u ingevulde e-mailadres.

Wij vragen alleen uw gegevens die nodig zijn voor het beantwoorden van uw verzoek. Voor meer informatie verwijzen wij u naar onze privacyverklaring op onze website. Bij het versturen van dit formulier gaat u hiermee akkoord.

recaptcha
reCAPTCHA
PrivacyTerms

Heeft u liever dat wij u terugbellen?

Laat uw telefoonnummer achter en wij bellen u zo spoedig mogelijk terug.

Uw bericht is naar ons verzonden. Wij nemen zo snel mogelijk contact met u op.

Sorry, we kunnen helaas niet met zekerheid vaststellen of je een mens of een geautomatiseerde bot/spammer bent. Hierdoor kunnen we het formulier dat je hebt ingevuld niet verzenden. Probeer het opnieuw of neem direct contact op met de makelaar via e-mail.

Er is iets mis gegaan met het versturen van het formulier.
Controleer of u alle velden (goed) heeft ingevoerd en probeer het nog een keer.

recaptcha
reCAPTCHA
PrivacyTerms

Uw woning verkopen?

Wanneer u overweegt om uw huis te verkopen, vraag dan een vrijblijvend adviesgesprek en een waardebepaling aan. Wij maken graag een afspraak met u!

Gratis adviesgesprek

Locatie

[ { "lat": 50.8070052, "lng": 5.7325734, "heading": 0, "pitch": 0 } ]

Kenmerken

Aanvaarding

Prijs
€ 349.000 k.k.
Status
Verkocht onder voorbehoud
Oplevering
In overleg
Adres
van Caldenborghstraat 1
Postcode
6247 CE
Plaats
Gronsveld

Bouw

Soort woonhuis
Eengezinswoning, 2-onder-1-kapwoning
Soort bouw
Bestaande bouw
Bouwjaar
1970

Oppervlakten en inhoud

Woonoppervlakte
ca. 81m²
Perceeloppervlakte
ca. 138m²
Overig oppervlakte
ca. 50m²
Inhoud
ca. 464m³

Indeling

Aantal kamers
4
Aantal slaapkamers
3
Aantal badkamers
1
Aantal verdiepingen
4
Voorzieningen
Natuurlijke ventilatie, Rolluiken, Zonnepanelen

Energie

Energielabel
C
Isolatie
Grotendeels dubbelglas
Warm water
C.V.-ketel
Verwarming
C.V.-ketel
Ketel
Remeha Calenta (2015, Huur)

Buitenruimte

Ligging
Aan rustige weg
Tuin
Tuin rondom

Garage

Soort garage
Parkeerkelder

Schriftelijkheidsvereiste:

Ter bescherming van de belangen van zowel koper als verkoper, wordt uitdrukkelijk gesteld dat een koopovereenkomst met betrekking tot deze onroerende zaak eerst dan tot stand komt nadat koper en verkoper beide de koopovereenkomst hebben getekend ("schriftelijkheidsvereiste"). Dit betekent dat een bevestiging van de afspraken per e-mail, of een toegestuurd concept van de koopovereenkomst, hier niet onder vallen

Waarborgsom/bankgarantie:

De waarborgsom/bankgarantie is 10% van de koopsom. De koper dient deze uiterlijk 1 week na het vervallen van de ontbindende voorwaarden bij de desbetreffende notaris te deponeren.

Bouwkundige keuring:

Koper is te allen tijde gerechtigd voor eigen rekening een bouwkundige keuring te (laten) verrichten dan wel andere adviseurs te raadplegen teneinde een goed inzicht te verkrijgen over de staat van de woning. De beoordeling van de woning zoals omschreven in bovenstaande presentatie en de brochure is gebaseerd op visuele waarneming, de leeftijd van de woning, en de informatie die verkregen is van de verkoper(s). Een bouwkundige rapportage valt nadrukkelijk buiten de informatie van deze websitepresentatie.

Aansprakelijkheid:

Deze websitepresentatie is door ons Goessens & Goessens Makelaardij met de nodige zorgvuldigheid samengesteld. Onzerzijds wordt echter geen enkele aansprakelijkheid aanvaard voor enige onvolledigheid, onjuist of anderszins, dan wel de gevolgen daarvan. Alle opgegeven maten en oppervlakten zijn indicatief. Deze websitepresentatie is slechts indicatief. Alle vermelden maten zijn circa maten. Er is nagestreefd naar een zo zorgvuldig mogelijke informatie van de ter beschikking staande gegevens. De verkoper heeft een mededelingsplicht inzake zaken die hem bekend zijn van het onroerend goed. De potentiele koper heeft een onderzoek plicht inzake de voor hem van belang zijnde gegevens van het onroerend goed.

Onderzoek plicht koper:

De informatie tijdens de rondleiding en in de websitepresentatie en overig informatiemateriaal is verkregen van de verkoper van de woning en is bedoeld om de koper te informeren. In het Burgerlijk Wetboek staat opgenomen dat op de koper van een woning een onderzoek plicht rust. Onder de onderzoeksplicht vallen bouwkundige gebreken/staat van de woning en publiekrechtelijke openbare informatie (zoals verkeers- /bestemmingsplannen). Een bouwkundige keuring geeft hier duidelijkheid over.

Copyright ©:

Gehele of gedeeltelijke overname, plaatsing op andere sites, advertenties, verveelvoudiging op welke andere wijze dan ook en/of commercieel gebruik van deze informatie (zoals foto’s, plattegronden, teksten, kenmerken etc.), is niet toegestaan, tenzij hiervoor uitdrukkelijk schriftelijke toestemming is verleend door Goessens & Goessens Makelaardij of tenzij aan de onderstaande voorwaarden wordt voldaan. Deze informatie mag worden bekeken , mits de informatie niet wordt gebruikt in een ander werk of publicatie in welk medium dan ook.