Goessens & Goessens Makelaardij gebruikt cookies om de website naar behoren te laten werken, om functies voor social media te bieden en om onze website te analyseren. Op onze website kun je ons Cookiebeleid en Privacybeleid vinden.

Stationsstraat 21, Gronsveld

Op een aantrekkelijke en rustige locatie in het charmante Gronsveld vindt u deze volledig gerenoveerde en gemoderniseerde twee-onder-een-kapwoning, met energielabel A, compleet met royale garage/multifunctioneel gebouw met oprit aan voor en achterzijde. De woning is instapklaar en combineert een moderne afwerking met een praktische indeling, waardoor verrassend veel ruimte ontstaat voor gezinnen, thuiswerkers of iedereen die comfort en functionaliteit hoog in het vaandel heeft staan.

De woning beschikt over vier slaapkamers, twee badkamers (waarvan één op de begane grond), een sfeervolle woonkamer en een royale, volledig nieuwe keuken met aangrenzende eetkamer. Dankzij de doordachte indeling is er volop leefruimte, terwijl de grote raampartijen zorgen voor een overvloed aan natuurlijk licht.

Het multifunctionele gebouw biedt daarnaast diverse mogelijkheden en is bij uitstek geschikt als thuiswerkplek, praktijkruimte of hobbyruimte. Door de flexibele indeling kunt u het volledig naar eigen wens gebruiken, zonder dat dit ten koste gaat van de garagefunctie.

De ligging is ideaal: u woont in een rustige, groene omgeving met alle basisvoorzieningen dichtbij. Tegelijkertijd bereikt u Maastricht, inclusief de bruisende binnenstad, het MUMC+ en de Universiteit Maastricht binnen enkele minuten. Ook de uitvalswegen richting Eijsden, België en de A2 zijn uitstekend bereikbaar, wat de woning zeer gunstig maakt voor werk, studie en recreatie.

Nieuw Verkocht onder voorbehoud

€ 459.000 k.k.

Woningtype
Geschakelde 2-onder-1-kapwoning

Woonoppervlakte
ca. 137m²

Perceeloppervlakte
ca. 274m²

Inhoud
ca. 549m³

Kamers
5

Slaapkamers
4

Bouwjaar
1920

Aanvaarding
In overleg

Omschrijving

DEZE WONING WORDT AANGEBODEN DOOR GOESSENS & GOESSENS MAKELAARDIJ.

-Beschrijving:
Op een aantrekkelijke en rustige locatie in het charmante Gronsveld vindt u deze volledig gerenoveerde en gemoderniseerde twee-onder-een-kapwoning, met energielabel A, compleet met royale garage/multifunctioneel gebouw met oprit aan voor en achterzijde. De woning is instapklaar en combineert een moderne afwerking met een praktische indeling, waardoor verrassend veel ruimte ontstaat voor gezinnen, thuiswerkers of iedereen die comfort en functionaliteit hoog in het vaandel heeft staan.

De woning beschikt over vier slaapkamers, twee badkamers (waarvan één op de begane grond), een sfeervolle woonkamer en een royale, volledig nieuwe keuken met aangrenzende eetkamer. Dankzij de doordachte indeling is er volop leefruimte, terwijl de grote raampartijen zorgen voor een overvloed aan natuurlijk licht.

Het multifunctionele gebouw biedt daarnaast diverse mogelijkheden en is bij uitstek geschikt als thuiswerkplek, praktijkruimte of hobbyruimte. Door de flexibele indeling kunt u het volledig naar eigen wens gebruiken, zonder dat dit ten koste gaat van de garagefunctie.

De ligging is ideaal: u woont in een rustige, groene omgeving met alle basisvoorzieningen dichtbij. Tegelijkertijd bereikt u Maastricht, inclusief de bruisende binnenstad, het MUMC+ en de Universiteit Maastricht binnen enkele minuten. Ook de uitvalswegen richting Eijsden, België en de A2 zijn uitstekend bereikbaar, wat de woning zeer gunstig maakt voor werk, studie en recreatie.

-Indeling:

-Kelder:
Via een deur in de woonkamer bereikt u de trap naar de kelder. Deze praktische kelderruimte van circa 18 m² is ideaal voor het opbergen van voorraden, het plaatsen van een extra vriezer of het creëren van een multifunctionele berging.

-Begane grond:
Bij binnenkomst in de woning betreedt u een ruime entree van circa 8 m², uitgevoerd met een stijlvolle laminaatvloer. Vanuit deze entree heeft u toegang tot de woonkamer met open keuken, de eerste badkamer, het toilet, de kelder en de trap naar de eerste verdieping, voorzien van luxe tapijtbekleding.

De woonkamer met open keuken, gezamenlijk circa 49 m² groot, vormt het hart van de woning. Deze lichte en ruime leefruimte is voorzien van dezelfde hoogwaardige vloer als in de entree en profiteert van grote raampartijen aan zowel de voor- als achterzijde, waardoor een prachtige lichtinval ontstaat.

De moderne keuken bevindt zich aan de achterzijde van de woning en is uitgevoerd met greeploze fronten en een ruim kookeiland met bar. Dankzij de grote schuifpui is er een directe verbinding met de tuin, waardoor binnen- en buitenleven naadloos samenkomen. De stijlvolle keuken is ingericht met hoogwaardige apparatuur, waaronder een BORA-inductiekookplaat met geïntegreerde afzuiging, een ruime koelkast, oven met steam-assist en vaatwasser, perfect voor de kookliefhebber. Vanuit de keuken is tevens toegang tot een praktische kastruimte, waarin de cv-ketel is geplaatst.

Via een tussenhal in de keuken bereikt u het toilet en de gelijkvloerse badkamer. Het moderne toilet is voorzien van een hangcloset en fonteintje. De ruime badkamer van circa 7 m² beschikt over een ligbad met douche, een wastafelmeubel en een handdoekradiator, waardoor deze volledig uitgerust is voor dagelijks comfort. Bij de ruime badkamer beneden bevinden zich ook de aansluitingen voor de wasmachine en droger.

-Eerste verdieping:
De eerste verdieping is bereikbaar via de trap in de entree. Vanuit de overloop zijn drie slaapkamers en de badkamer toegankelijk. Tevens bevindt zich hier de vaste trap naar de tweede verdieping. Alle slaapkamers zijn tevens voorzien van een luxe laminaat vloer en elektrische verwarming.
•Slaapkamer 1: Deze ruime slaapkamer is ca. 14 m² groot.
•Slaapkamer 2: Deze comfortabele slaapkamer is ca. 12 m² groot.
•Slaapkamer 3: Deze slaapkamer is ca. 5 m² groot en ideaal te gebruiken als hobbykamer of kantoorruimte.
•Badkamer: De moderne badkamer is ca. 3 m² en uitgerust met een inloopdouche, een wastafelmeubel en een toilet.

-Tweede verdieping:
Via de vaste trap op de eerste verdieping is de tweede verdieping te bereiken. Hier bevindt zich de royale vierde slaapkamer.
•Slaapkamer 4: Deze lichte, royale ruimte is ca. 24 m² groot met volop mogelijkheden voor een slaapkamer of werkruimte.

-Tuin:
De achtertuin is een rustige en besloten plek, ideaal voor wie van privacy en groen houdt. De tuin is volledig omheind en voorzien van een terras en verzorgde plantenborders. Vanuit de tuin is de garage toegankelijk, en er is een zijingang die het gebruiksgemak vergroot. De tuin biedt volop mogelijkheden om naar eigen wens ingericht te worden.

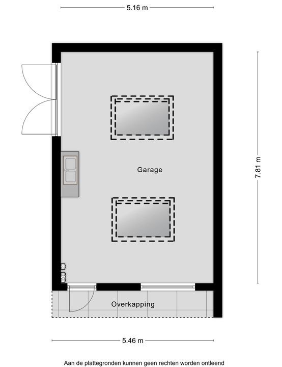
-Garage/bijgebouw:
De woning beschikt over een royale garage/bijgebouw van circa 40 m², gelegen aan de zijkant van de woning en toegankelijk vanuit zowel de tuin als de poort aan de Broekstraat. De garage/het bijgebouw is voorzien van elektra en verlichting en biedt ruimte voor één of meerdere voertuigen, fietsen of als extra bergruimte. De garage/het bijgebouw biedt bovendien volop mogelijkheden voor andere functies, zoals een praktijkruimte of een kantoor aan huis. Dankzij de indeling kan de ruimte eenvoudig worden gesplitst, waardoor u zowel de garage kunt blijven gebruiken als een aparte multifunctionele ruimte creëert.

-Nadere bijzonderheden:
• Volledig gerenoveerde gezinswoning met garage, vier slaapkamers, een royale leefruimte en een onderhoudsvriendelijke tuin, gelegen op een fijne locatie in Gronsveld.
• De huidige eigenaren hebben de woning volledig gerenoveerd. Zo is de dakconstructie volledig vernieuwd, het platte dak aan de achterzijde voorzien van een nieuwe dakbedekking en een moderne 3-laagse lichtkoepel geplaatst. Daarnaast zijn de elektra en groepenkast volledig vernieuwd, evenals de waterleidingen en afvoeren. Alle plafonds en muren zijn bovendien geïsoleerd, wat bijdraagt aan comfort en energie-efficiëntie.
• Kozijnen: Houten kozijnen en grotendeels HR++ beglazing. Enkel de schuifpui is voorzien van dubbele beglazing.
• Centrale verwarming: HR cv-ketel (Atag, 2017). Eerste verdieping en badkamers voorzien van elektrische verwarming.
• Energielabel: A.
• Alle vermelde afmetingen zijn indicatief en kunnen afwijken van de werkelijkheid.

-Omgeving:
Gronsveld: een pittoresk dorp met een rijke geschiedenis en een ideale ligging
Deze woning bevindt zich in het charmante Gronsveld, een dorp dat deel uitmaakt van de gemeente Eijsden-Margraten. Gelegen aan de rand van Maastricht, biedt Gronsveld het beste van twee werelden: de rust en charme van een landelijke omgeving én de nabijheid van de stad. Het dorp staat bekend om zijn gezellige dorpskern, de rijke tradities zoals de eeuwenoude schutterij en de prachtige natuur. Het nabijgelegen Savelsbos is een oase van rust en biedt talloze mogelijkheden voor wandelingen en buitenactiviteiten. Gronsveld beschikt over diverse voorzieningen, waaronder een bakker, basisschool en kinderopvang, waardoor het een ideale woonomgeving is voor zowel gezinnen, als rustzoekers. Dankzij de uitstekende verbinding met de A2 en andere uitvalswegen, bent u binnen 10 minuten in het centrum van Maastricht, terwijl steden als Luik en Aken eveneens goed bereikbaar zijn. Wonen in Gronsveld betekent genieten van een rustige, groene omgeving met alle gemakken binnen handbereik.

-Disclaimer:
Voor meer verkoopinformatie, onze disclaimer en de verkoopvoorwaarden verwijzen wij u graag naar onze website: goessens-makelaardij.nl. Deze presentatie is met de grootste zorg samengesteld door Goessens & Goessens Makelaardij. Ondanks onze inspanningen aanvaarden wij geen enkele aansprakelijkheid voor eventuele onvolledigheden, onjuistheden of de gevolgen hiervan. Alle vermelde maten en oppervlakten zijn indicatief. Wij streven ernaar om u zo zorgvuldig mogelijk te informeren op basis van de beschikbare gegevens. Deze presentatie dient echter uitsluitend ter indicatie. Voor meer details of aanvullende informatie staan wij uiteraard graag voor u klaar.

Reageren op deze woning?

Bent u enthousiast geworden na het lezen van deze woningpresentatie en wilt u vrijblijvend meer informatie over deze woning ontvangen? Of wilt een bezichtiging aanvragen? Vul onderstaand contactformulier in en wij nemen z.s.m. contact met u op.

Uw bericht is naar ons verzonden. Wij nemen zo snel mogelijk contact met u op.

Sorry, we kunnen helaas niet met zekerheid vaststellen of je een mens of een geautomatiseerde bot/spammer bent. Hierdoor kunnen we het formulier dat je hebt ingevuld niet verzenden. Probeer het opnieuw of neem direct contact op met de makelaar via e-mail.

Er is iets mis gegaan met het versturen van het formulier.
Controleer of u alle velden (goed) heeft ingevoerd en probeer het nog een keer.

U zult automatisch een kopie van dit ingevuld contactformulier ontvangen op het door u ingevulde e-mailadres.

Wij vragen alleen uw gegevens die nodig zijn voor het beantwoorden van uw verzoek. Voor meer informatie verwijzen wij u naar onze privacyverklaring op onze website. Bij het versturen van dit formulier gaat u hiermee akkoord.

recaptcha
reCAPTCHA
PrivacyTerms

Heeft u liever dat wij u terugbellen?

Laat uw telefoonnummer achter en wij bellen u zo spoedig mogelijk terug.

Uw bericht is naar ons verzonden. Wij nemen zo snel mogelijk contact met u op.

Sorry, we kunnen helaas niet met zekerheid vaststellen of je een mens of een geautomatiseerde bot/spammer bent. Hierdoor kunnen we het formulier dat je hebt ingevuld niet verzenden. Probeer het opnieuw of neem direct contact op met de makelaar via e-mail.

Er is iets mis gegaan met het versturen van het formulier.
Controleer of u alle velden (goed) heeft ingevoerd en probeer het nog een keer.

recaptcha
reCAPTCHA
PrivacyTerms

Uw woning verkopen?

Wanneer u overweegt om uw huis te verkopen, vraag dan een vrijblijvend adviesgesprek en een waardebepaling aan. Wij maken graag een afspraak met u!

Gratis adviesgesprek

Locatie

[ { "lat": 50.8101228, "lng": 5.7281977, "heading": 0, "pitch": 0 } ]

Kenmerken

Aanvaarding

Prijs
€ 459.000 k.k.
Status
Verkocht onder voorbehoud
Oplevering
In overleg
Adres
Stationsstraat 21
Postcode
6247 BJ
Plaats
Gronsveld

Bouw

Soort woonhuis
Eengezinswoning, Geschakelde 2-onder-1-kapwoning
Soort bouw
Bestaande bouw
Bouwjaar
1920

Oppervlakten en inhoud

Woonoppervlakte
ca. 137m²
Perceeloppervlakte
ca. 274m²
Overig oppervlakte
ca. 17m²
Inhoud
ca. 549m³

Indeling

Aantal kamers
5
Aantal slaapkamers
4
Aantal badkamers
2
Aantal verdiepingen
4
Voorzieningen
Dakraam, Schuifpui

Energie

Energielabel
A
Warm water
C.V.-ketel
Verwarming
C.V.-ketel
Ketel
(Huur)

Buitenruimte

Tuin
Achtertuin

Garage

Soort garage
Aangebouwd steen
Capaciteit
2
Voorzieningen
Voorzien van elektra, Voorzien van water

Schriftelijkheidsvereiste:

Ter bescherming van de belangen van zowel koper als verkoper, wordt uitdrukkelijk gesteld dat een koopovereenkomst met betrekking tot deze onroerende zaak eerst dan tot stand komt nadat koper en verkoper beide de koopovereenkomst hebben getekend ("schriftelijkheidsvereiste"). Dit betekent dat een bevestiging van de afspraken per e-mail, of een toegestuurd concept van de koopovereenkomst, hier niet onder vallen

Waarborgsom/bankgarantie:

De waarborgsom/bankgarantie is 10% van de koopsom. De koper dient deze uiterlijk 1 week na het vervallen van de ontbindende voorwaarden bij de desbetreffende notaris te deponeren.

Bouwkundige keuring:

Koper is te allen tijde gerechtigd voor eigen rekening een bouwkundige keuring te (laten) verrichten dan wel andere adviseurs te raadplegen teneinde een goed inzicht te verkrijgen over de staat van de woning. De beoordeling van de woning zoals omschreven in bovenstaande presentatie en de brochure is gebaseerd op visuele waarneming, de leeftijd van de woning, en de informatie die verkregen is van de verkoper(s). Een bouwkundige rapportage valt nadrukkelijk buiten de informatie van deze websitepresentatie.

Aansprakelijkheid:

Deze websitepresentatie is door ons Goessens & Goessens Makelaardij met de nodige zorgvuldigheid samengesteld. Onzerzijds wordt echter geen enkele aansprakelijkheid aanvaard voor enige onvolledigheid, onjuist of anderszins, dan wel de gevolgen daarvan. Alle opgegeven maten en oppervlakten zijn indicatief. Deze websitepresentatie is slechts indicatief. Alle vermelden maten zijn circa maten. Er is nagestreefd naar een zo zorgvuldig mogelijke informatie van de ter beschikking staande gegevens. De verkoper heeft een mededelingsplicht inzake zaken die hem bekend zijn van het onroerend goed. De potentiele koper heeft een onderzoek plicht inzake de voor hem van belang zijnde gegevens van het onroerend goed.

Onderzoek plicht koper:

De informatie tijdens de rondleiding en in de websitepresentatie en overig informatiemateriaal is verkregen van de verkoper van de woning en is bedoeld om de koper te informeren. In het Burgerlijk Wetboek staat opgenomen dat op de koper van een woning een onderzoek plicht rust. Onder de onderzoeksplicht vallen bouwkundige gebreken/staat van de woning en publiekrechtelijke openbare informatie (zoals verkeers- /bestemmingsplannen). Een bouwkundige keuring geeft hier duidelijkheid over.

Copyright ©:

Gehele of gedeeltelijke overname, plaatsing op andere sites, advertenties, verveelvoudiging op welke andere wijze dan ook en/of commercieel gebruik van deze informatie (zoals foto’s, plattegronden, teksten, kenmerken etc.), is niet toegestaan, tenzij hiervoor uitdrukkelijk schriftelijke toestemming is verleend door Goessens & Goessens Makelaardij of tenzij aan de onderstaande voorwaarden wordt voldaan. Deze informatie mag worden bekeken , mits de informatie niet wordt gebruikt in een ander werk of publicatie in welk medium dan ook.