Goessens & Goessens Makelaardij gebruikt cookies om de website naar behoren te laten werken, om functies voor social media te bieden en om onze website te analyseren. Op onze website kun je ons Cookiebeleid en Privacybeleid vinden.

Keenkestraat 2, Gronsveld

In het charmante en levendige dorp Gronsveld, op een rustige en prettige locatie, staat deze ruime vrijstaande woning met oprit en een prachtige tuin rondom. De volledig onderkelderde woning beschikt over een royale woonoppervlakte, vijf ruime slaapkamers (met de mogelijkheid tot een zesde) en een verzorgde tuin met zijingang. Een ideale woning voor wie op zoek is naar ruimte, comfort en een groene leefomgeving.

De woning biedt volop mogelijkheden om te wonen, te werken of hobby’s uit te oefenen aan huis. Dankzij de grote leefruimtes en praktische indeling is het huis geschikt voor zowel gezinnen als stellen die op zoek zijn naar extra wooncomfort.

De fraaie, volwassen tuin is een waar rustpunt. Volledig omsloten, met een combinatie van terras, gazon en volgroeide beplanting, vormt deze tuin een heerlijke plek om te ontspannen of gasten te ontvangen. De ligging rondom de woning zorgt voor veel privacy en een gevoel van vrijheid.

Ook de locatie is bijzonder aantrekkelijk: op korte afstand bevinden zich het Savelsbos en diverse wandel- en fietsroutes, ideaal voor natuurliefhebbers. Tegelijkertijd liggen Maastricht, het MUMC+ en de Universiteit Maastricht binnen circa tien autominuten. De uitvalswegen richting België en het Heuvelland zijn snel en gemakkelijk bereikbaar, waardoor deze woning de perfecte balans biedt tussen rustig wonen en centrale bereikbaarheid.

Een ruime, solide woning met karakter, uitstekende ligging en volop mogelijkheden voor wie royaal en comfortabel wil wonen in een geliefde omgeving.

Nieuw Onder bod

€ 629.000 k.k.

Woningtype
Vrijstaande woning

Woonoppervlakte
ca. 265m²

Perceeloppervlakte
ca. 535m²

Inhoud
ca. 1.004m³

Kamers
6

Slaapkamers
5

Bouwjaar
1979

Aanvaarding
In overleg

Omschrijving

DEZE WONING WORDT AANGEBODEN DOOR GOESSENS & GOESSENS MAKELAARDIJ.

-Beschrijving:
In het charmante en levendige dorp Gronsveld, op een rustige en prettige locatie, staat deze ruime vrijstaande woning met oprit en een prachtige tuin rondom. De volledig onderkelderde woning beschikt over een royale woonoppervlakte, vijf ruime slaapkamers (met de mogelijkheid tot een zesde) en een verzorgde tuin met zijingang. Een ideale woning voor wie op zoek is naar ruimte, comfort en een groene leefomgeving.

De woning biedt volop mogelijkheden om te wonen, te werken of hobby’s uit te oefenen aan huis. Dankzij de grote leefruimtes en praktische indeling is het huis geschikt voor zowel gezinnen als stellen die op zoek zijn naar extra wooncomfort.

De fraaie, volwassen tuin is een waar rustpunt. Volledig omsloten, met een combinatie van terras, gazon en volgroeide beplanting, vormt deze tuin een heerlijke plek om te ontspannen of gasten te ontvangen. De ligging rondom de woning zorgt voor veel privacy en een gevoel van vrijheid.

Ook de locatie is bijzonder aantrekkelijk: op korte afstand bevinden zich het Savelsbos en diverse wandel- en fietsroutes, ideaal voor natuurliefhebbers. Tegelijkertijd liggen Maastricht, het MUMC+ en de Universiteit Maastricht binnen circa tien autominuten. De uitvalswegen richting België en het Heuvelland zijn snel en gemakkelijk bereikbaar, waardoor deze woning de perfecte balans biedt tussen rustig wonen en centrale bereikbaarheid.

Een ruime, solide woning met karakter, uitstekende ligging en volop mogelijkheden voor wie royaal en comfortabel wil wonen in een geliefde omgeving.

-Indeling:

-Souterrain:
Via een trap in de entree bereikt u de hal in het ruime souterrain, van waaruit twee praktische ruimtes toegankelijk zijn:
• Ruimte 1: Deze ruimte is ca. 24 m² groot. Hier bevindt zich tevens een deur naar een berging, welke is voorzien van de cv-ketel (Eigendom, 2016, Vaillant).
• Ruimte 2: Deze ruimte is ca. 10 m² groot en praktisch te gebruiken als bergruimte.

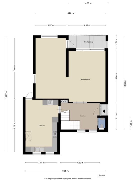
-Begane grond:
U wordt verwelkomd in een lichte en royale entree van ca. 14 m², afgewerkt met een lichtkleurige tegelvloer die direct een verzorgde indruk achterlaat. Vanuit de hal is er toegang tot de meterkast, het toilet, de woonkamer, de keuken en de trappen naar zowel de eerste verdieping als het souterrain.
De volledig betegelde toiletruimte is voorzien van een hangcloset en een fonteintje.

De ruime woonkamer van ca. 53 m² vormt het hart van de woning. De tegelvloer van de hal loopt naadloos door, wat zorgt voor een mooi geheel en een ruimtelijk gevoel. De gehele begane grond is voorzien van vloerverwarming, wat bijdraagt aan het wooncomfort. Grote raampartijen en een schuifpui naar de tuin zorgen voor veel natuurlijk licht en een fijne verbinding tussen binnen en buiten. Vanuit de woonkamer is er direct toegang tot de tuin.

De ruime keuken (ca. 23 m²) is gerealiseerd in de voormalige garage en is uitgevoerd in een praktische L-opstelling. De keuken beschikt over diverse inbouwapparatuur, waaronder een 5-pits gasfornuis, afzuigkap, oven, magnetron, vaatwasser en koelkast. Vanuit de keuken is eveneens toegang tot de tuin, waardoor ook hier het buitenleven dichtbij voelt.
Een vlizotrap in de keuken biedt toegang tot een praktische bergzolder, ideaal voor extra opslagruimte.

-Eerste verdieping:
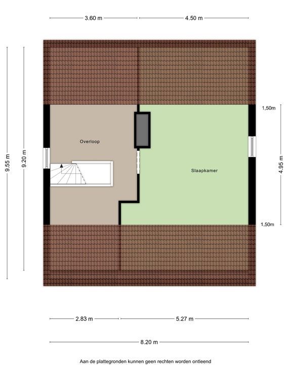
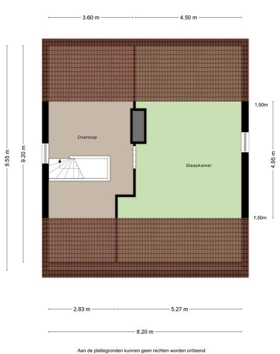
Via de trap in de entree bereikt u de eerste verdieping, met een ruime overloop van ca. 14 m² die toegang biedt tot vier slaapkamers, de badkamer en de vaste trap naar de tweede verdieping. De gehele verdieping is voorzien van vloerbedekking.
• Slaapkamer 1: Deze ruime slaapkamer is ca. 18 m² groot.
• Slaapkamer 2: Deze slaapkamer is ca. 17 m² groot.
• Slaapkamer 3: Deze comfortabele kamer is ca. 16 m² groot.
• Slaapkamer 4: Deze kamer is ca. 9 m² groot.
• Badkamer: Deze ruime, goed onderhouden en betegelde badkamer (ca. 11 m²) is uitgerust met een ligbad, een douchecabine, twee wastafels en een staand closet.

-Tweede verdieping:
Via de vaste trap op de eerste verdieping bereikt u de ruime overloop op de tweede verdieping. Vanuit hier heeft u toegang tot de vijfde slaapkamer.
• Slaapkamer 5: Deze royale slaapkamer heeft een vloeroppervlakte van ca. 43 m² groot met de mogelijkheid om na aanpassingen zelfs twee slaapkamers te creëren.

-Tuin:
De fraai aangelegde tuin rondom de woning vormt een ware oase van rust en privacy. Dankzij de zijingang en de directe toegang vanuit zowel de woonkamer als de keuken, is de tuin optimaal bij het wonen betrokken. De buitenruimte is sfeervol ingedeeld met een ruim terras, een verzorgd gazon en weelderige, volwassen beplanting.

Onder de overkapping en met de zonneschermen geniet u op elk moment van de dag van het buitenleven: van een ontspannen ochtend in de zon tot lange zomeravonden met familie en vrienden. Een praktische tuinberging van ca. 7 m² biedt extra opbergruimte voor tuingereedschap of andere benodigdheden.
Deze tuin is ideaal voor liefhebbers van natuur en tegelijkertijd perfect geschikt voor gezellige bijeenkomsten.

Nadere bijzonderheden
• Type woning: Vrijstaande woning met ruime oprit, vijf slaapkamers, royale woonoppervlakte en een groot souterrain, gelegen op een rustige en gewilde locatie in Gronsveld.
• Kozijnen: Houten kozijnen voorzien van dubbele beglazing.
• Bouwkundige keuring: De verkoper heeft een bouwkundige keuring laten uitvoeren; deze wordt na het inplannen van een bezichtiging ter inzage verstrekt.
• Centrale verwarming: HR-combiketel (Vaillant, eigendom, ca. 2016).
• Energielabel: In aanvraag.
• Opmerking: Alle vermelde afmetingen zijn indicatief en kunnen afwijken van de werkelijkheid.

-Omgeving:
Gronsveld: een pittoresk dorp met een rijke geschiedenis en een ideale ligging
Deze woning bevindt zich in het charmante Gronsveld, een dorp dat deel uitmaakt van de gemeente Eijsden-Margraten. Gelegen aan de rand van Maastricht, biedt Gronsveld het beste van twee werelden: de rust en charme van een landelijke omgeving én de nabijheid van de stad. Het dorp staat bekend om zijn gezellige dorpskern, de rijke tradities zoals de eeuwenoude schutterij en de prachtige natuur. Het nabijgelegen Savelsbos is een oase van rust en biedt talloze mogelijkheden voor wandelingen en buitenactiviteiten. Gronsveld beschikt over diverse voorzieningen, waaronder een bakker, basisschool en kinderopvang, waardoor het een ideale woonomgeving is voor zowel gezinnen, als rustzoekers. Dankzij de uitstekende verbinding met de A2 en andere uitvalswegen, bent u binnen 10 minuten in het centrum van Maastricht, terwijl steden als Luik en Aken eveneens goed bereikbaar zijn. Wonen in Gronsveld betekent genieten van een rustige, groene omgeving met alle gemakken binnen handbereik.

Graag verwijzen wij u naar onze website goessens-makelaardij.nl, waar meer verkoopinformatie, onze disclaimer en de verkoopvoorwaarden te vinden zijn. Deze presentatie is door Goessens & Goessens Makelaardij met de nodige zorg samengesteld. Onzerzijds wordt echter geen enkele aansprakelijkheid aanvaard voor enige onvolledigheid, onjuist of anderszins, dan wel de gevolgen daarvan. Alle opgegeven maten en oppervlakten zijn indicatief. Deze presentatie is slechts indicatief. Er is nagestreefd naar een zo zorgvuldig mogelijke informatie van de ter beschikking staande gegevens.

Reageren op deze woning?

Bent u enthousiast geworden na het lezen van deze woningpresentatie en wilt u vrijblijvend meer informatie over deze woning ontvangen? Of wilt een bezichtiging aanvragen? Vul onderstaand contactformulier in en wij nemen z.s.m. contact met u op.

Uw bericht is naar ons verzonden. Wij nemen zo snel mogelijk contact met u op.

Sorry, we kunnen helaas niet met zekerheid vaststellen of je een mens of een geautomatiseerde bot/spammer bent. Hierdoor kunnen we het formulier dat je hebt ingevuld niet verzenden. Probeer het opnieuw of neem direct contact op met de makelaar via e-mail.

Er is iets mis gegaan met het versturen van het formulier.
Controleer of u alle velden (goed) heeft ingevoerd en probeer het nog een keer.

U zult automatisch een kopie van dit ingevuld contactformulier ontvangen op het door u ingevulde e-mailadres.

Wij vragen alleen uw gegevens die nodig zijn voor het beantwoorden van uw verzoek. Voor meer informatie verwijzen wij u naar onze privacyverklaring op onze website. Bij het versturen van dit formulier gaat u hiermee akkoord.

recaptcha
reCAPTCHA
PrivacyTerms

Heeft u liever dat wij u terugbellen?

Laat uw telefoonnummer achter en wij bellen u zo spoedig mogelijk terug.

Uw bericht is naar ons verzonden. Wij nemen zo snel mogelijk contact met u op.

Sorry, we kunnen helaas niet met zekerheid vaststellen of je een mens of een geautomatiseerde bot/spammer bent. Hierdoor kunnen we het formulier dat je hebt ingevuld niet verzenden. Probeer het opnieuw of neem direct contact op met de makelaar via e-mail.

Er is iets mis gegaan met het versturen van het formulier.
Controleer of u alle velden (goed) heeft ingevoerd en probeer het nog een keer.

recaptcha
reCAPTCHA
PrivacyTerms

Uw woning verkopen?

Wanneer u overweegt om uw huis te verkopen, vraag dan een vrijblijvend adviesgesprek en een waardebepaling aan. Wij maken graag een afspraak met u!

Gratis adviesgesprek

Locatie

[ { "lat": 50.8097661, "lng": 5.734295, "heading": 0, "pitch": 0 } ]

Kenmerken

Aanvaarding

Prijs
€ 629.000 k.k.
Status
Onder bod
Oplevering
In overleg
Adres
Keenkestraat 2
Postcode
6247 EJ
Plaats
Gronsveld

Bouw

Soort woonhuis
Eengezinswoning, Vrijstaande woning
Soort bouw
Bestaande bouw
Bouwjaar
1979

Oppervlakten en inhoud

Woonoppervlakte
ca. 265m²
Perceeloppervlakte
ca. 535m²
Overig oppervlakte
ca. 6m²
Inhoud
ca. 1.004m³

Indeling

Aantal kamers
6
Aantal slaapkamers
5
Aantal badkamers
1
Aantal verdiepingen
4
Voorzieningen
Natuurlijke ventilatie

Energie

Isolatie
Grotendeels dubbelglas
Warm water
C.V.-ketel
Verwarming
C.V.-ketel, Vloerverwarming gedeeltelijk
Ketel
Vaillant (2016, Combi-ketel, Eigendom)

Buitenruimte

Ligging
Aan rustige weg
Tuin
Tuin rondom

Schriftelijkheidsvereiste:

Ter bescherming van de belangen van zowel koper als verkoper, wordt uitdrukkelijk gesteld dat een koopovereenkomst met betrekking tot deze onroerende zaak eerst dan tot stand komt nadat koper en verkoper beide de koopovereenkomst hebben getekend ("schriftelijkheidsvereiste"). Dit betekent dat een bevestiging van de afspraken per e-mail, of een toegestuurd concept van de koopovereenkomst, hier niet onder vallen

Waarborgsom/bankgarantie:

De waarborgsom/bankgarantie is 10% van de koopsom. De koper dient deze uiterlijk 1 week na het vervallen van de ontbindende voorwaarden bij de desbetreffende notaris te deponeren.

Bouwkundige keuring:

Koper is te allen tijde gerechtigd voor eigen rekening een bouwkundige keuring te (laten) verrichten dan wel andere adviseurs te raadplegen teneinde een goed inzicht te verkrijgen over de staat van de woning. De beoordeling van de woning zoals omschreven in bovenstaande presentatie en de brochure is gebaseerd op visuele waarneming, de leeftijd van de woning, en de informatie die verkregen is van de verkoper(s). Een bouwkundige rapportage valt nadrukkelijk buiten de informatie van deze websitepresentatie.

Aansprakelijkheid:

Deze websitepresentatie is door ons Goessens & Goessens Makelaardij met de nodige zorgvuldigheid samengesteld. Onzerzijds wordt echter geen enkele aansprakelijkheid aanvaard voor enige onvolledigheid, onjuist of anderszins, dan wel de gevolgen daarvan. Alle opgegeven maten en oppervlakten zijn indicatief. Deze websitepresentatie is slechts indicatief. Alle vermelden maten zijn circa maten. Er is nagestreefd naar een zo zorgvuldig mogelijke informatie van de ter beschikking staande gegevens. De verkoper heeft een mededelingsplicht inzake zaken die hem bekend zijn van het onroerend goed. De potentiele koper heeft een onderzoek plicht inzake de voor hem van belang zijnde gegevens van het onroerend goed.

Onderzoek plicht koper:

De informatie tijdens de rondleiding en in de websitepresentatie en overig informatiemateriaal is verkregen van de verkoper van de woning en is bedoeld om de koper te informeren. In het Burgerlijk Wetboek staat opgenomen dat op de koper van een woning een onderzoek plicht rust. Onder de onderzoeksplicht vallen bouwkundige gebreken/staat van de woning en publiekrechtelijke openbare informatie (zoals verkeers- /bestemmingsplannen). Een bouwkundige keuring geeft hier duidelijkheid over.

Copyright ©:

Gehele of gedeeltelijke overname, plaatsing op andere sites, advertenties, verveelvoudiging op welke andere wijze dan ook en/of commercieel gebruik van deze informatie (zoals foto’s, plattegronden, teksten, kenmerken etc.), is niet toegestaan, tenzij hiervoor uitdrukkelijk schriftelijke toestemming is verleend door Goessens & Goessens Makelaardij of tenzij aan de onderstaande voorwaarden wordt voldaan. Deze informatie mag worden bekeken , mits de informatie niet wordt gebruikt in een ander werk of publicatie in welk medium dan ook.