Goessens & Goessens Makelaardij gebruikt cookies om de website naar behoren te laten werken, om functies voor social media te bieden en om onze website te analyseren. Op onze website kun je ons Cookiebeleid en Privacybeleid vinden.

Graaf van Bronkhorststr 2, Gronsveld

Nieuw Verkocht

Woningtype
2-onder-1-kapwoning

Woonoppervlakte
ca. 132m²

Perceeloppervlakte
ca. 250m²

Inhoud
ca. 569m³

Kamers
5

Slaapkamers
4

Bouwjaar
1953

Aanvaarding
In overleg

Omschrijving

Deze woning wordt aangeboden door Goessens & Goessens Makelaardij

-Beschrijving:
Op een rustige en aangename locatie in het geliefde Gronsveld ligt deze ruim opgezette, volledig gerenoveerde en stijlvol uitgebouwde twee-onder-een-kapwoning met royale garage en oprit. De woning beschikt over vier volwaardige slaapkamers, een onderhoudsvriendelijke achtertuin en is volledig voorbereid op comfortabel én energiezuinig wonen. Met energielabel A+, 12 zonnepanelen, een hybride warmtepomp en airconditioning is duurzaamheid hier een vanzelfsprekend onderdeel van het wooncomfort.

De woonomgeving kenmerkt zich door rust en een prettige, kindvriendelijke sfeer. Dagelijkse voorzieningen bevinden zich op korte afstand en zijn goed bereikbaar per fiets of auto. Het centrum van Maastricht, het MUMC+ en de Universiteit Maastricht zijn in circa 15 autominuten bereikbaar. Zo combineert deze woning een rustige, kindvriendelijke ligging met uitstekende verbindingen naar de stad en al haar voorzieningen: de ideale balans tussen comfort, bereikbaarheid en woongenot.

-Indeling:

-Kelder:
De woning beschikt over een praktische kelderruimte van ca. 7 m², ideaal voor het opbergen van voorraden of overige spullen.

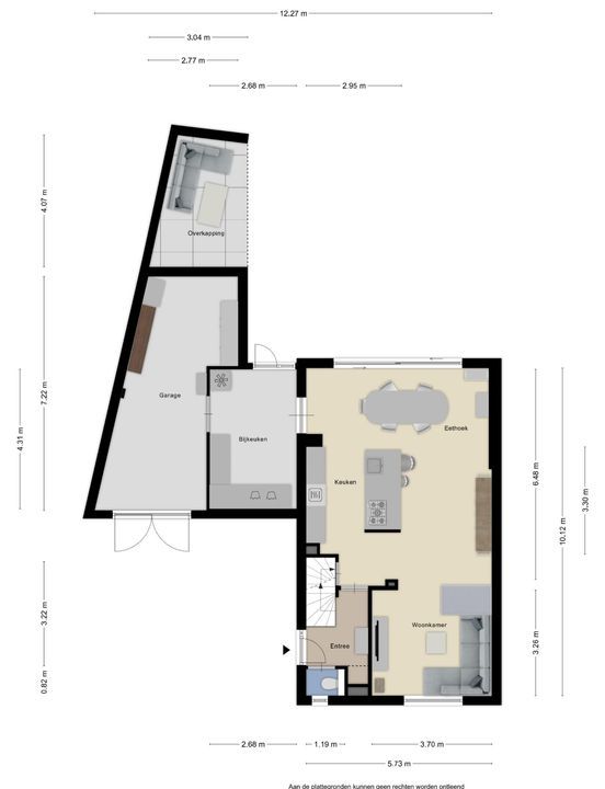
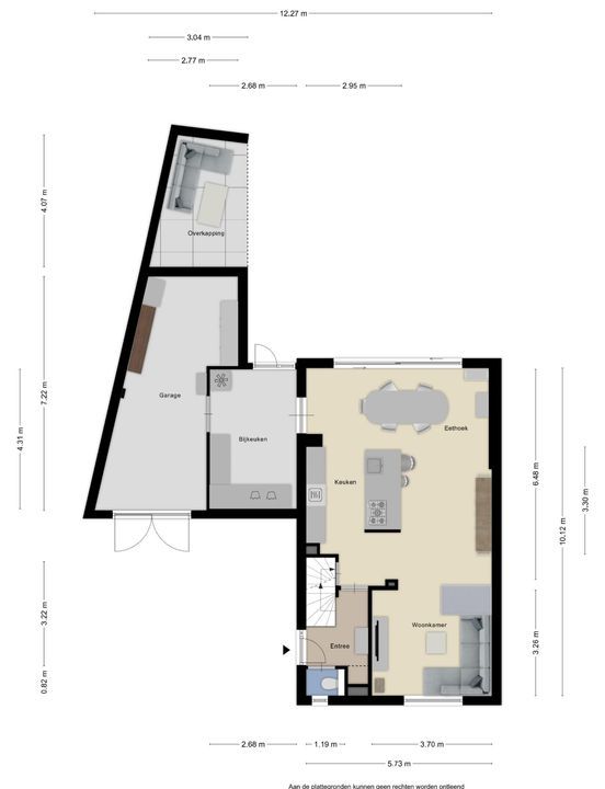
-Begane grond:
Via de ruime entree van ca. 6 m², voorzien van een stijlvolle visgraat pvc-vloer, betreedt u de woning. Vanuit de entree heeft u toegang tot de garderobe, de toiletruimte, de woonkamer met open keuken en de trap naar de eerste verdieping. De moderne toiletruimte is betegeld en voorzien van een hangcloset. De begane grond (m.u.v. garage en hal) is uitgerust met comfortabele vloerverwarming, wat het wooncomfort aanzienlijk verhoogt.

Via een fraaie zwartstalen deur bereikt u de royale, uitgebouwde woonkamer met open keuken. Samen vormen deze ruimtes circa 50 m² aan prettig leefoppervlakte. Dankzij de grote raampartijen en schuifpui geniet u hier van een uitstekende lichtinval en een open, ruimtelijk gevoel. De visgraat pvc-vloer loopt naadloos door in deze volledige leefruimte, wat bijdraagt aan de moderne en sfeervolle uitstraling.

De hoogwaardige, open keuken vormt het hart van de begane grond. Deze is afgewerkt met hoogglans witte fronten en beschikt over een stijlvol kookeiland met zitgedeelte. De keuken is uitgerust met een 5-pits gasfornuis, afzuigkap, oven, magnetron en koelkast. Dankzij de royale werk- en opbergruimte is deze keuken niet alleen visueel aantrekkelijk, maar ook bijzonder praktisch. Een deur in de keuken biedt toegang tot de kelder.

Aan de achterzijde van de leefruimte bevindt zich de deur naar de ruime bijkeuken van ca. 11,5 m². Deze is momenteel in gebruik als wasruimte en voorzien van witgoedaansluitingen en veel extra opbergruimte. Vanuit de bijkeuken heeft u eveneens directe toegang tot de tuin.

-Eerste verdieping:
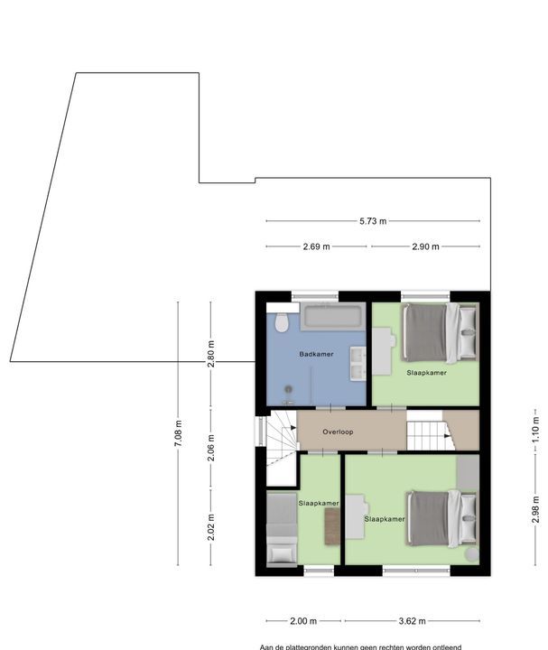
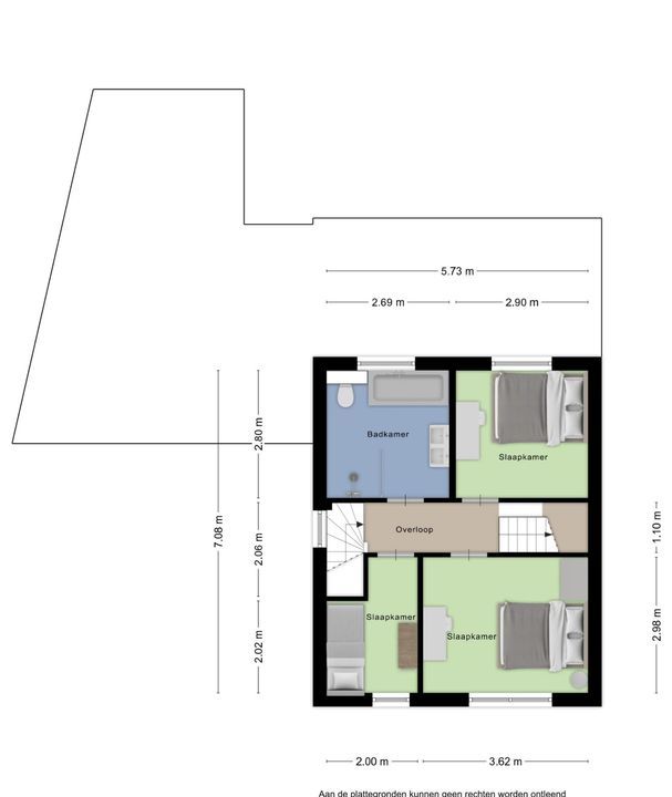
Via de trap in de entree bereikt u de overloop van de eerste verdieping. Deze trap is mooi bekleedt met laminaat. Hier heeft u toegang tot drie slaapkamers, de badkamer en de vaste trap naar de tweede verdieping. De kamers zijn licht en praktisch ingedeeld, waardoor ze eenvoudig naar eigen wens zijn in te richten.
• Slaapkamer 1: Deze ruime slaapkamer is ca. 11 m² groot.
• Slaapkamer 2: Deze comfortabele slaapkamer is ca. 8 m² groot.
• Slaapkamer 3: Deze slaapkamer is ca. 5 m² groot en is ideaal te gebruiken als hobbykamer of kinderkamer.
• Badkamer: De betegelde badkamer (ca. 7,5 m²) is uitgerust met een inloopdouche, een ligbad, een wastafelmeubel en een hangcloset.

-Tweede verdieping:
Via de vaste trap op de eerste verdieping bereikt u de ruimte vierde slaapkamer op de tweede verdieping.
• Slaapkamer 4: Deze ruime slaapkamer is ca. 20 m² groot en voorzien van een ruime dakkapel en airconditioning. Hier bevindt zich tevens de cv-installatie (Intergas, 2024, Eigendom) en de hybride warmtepomp (Intergas, 2025, eigendom) Deze verdieping biedt veel ruimte en is perfect als 'master bedroom', werkkamer of gastenverblijf.

-Garage:
De woning beschikt over een royale garage van ca. 22 m², toegankelijk via een handmatige poort vanaf de oprit. De garage is voorzien van elektra en biedt voldoende ruimte voor het parkeren van een auto, het stallen van fietsen of extra opslag.

-Tuin:
De ruime, onderhoudsvriendelijke achtertuin is bereikbaar via de schuifpui in de woonkamer én via de deur in de bijkeuken. De tuin is ingericht met een combinatie van een terras en groene plantborders, en is volledig omheind, waardoor privacy en rust gegarandeerd zijn. Aan de achterzijde bevindt zich een fijne overkapping van ca. 10 m² (geplaatst in 2025), een heerlijke plek om te genieten, te ontspannen of gezellig te tafelen.

-Nadere bijzonderheden:
• Type woning: Ruime en uitgebouwde woning met oprit en garage, voorzien van vier slaapkamers, 12 zonnepanelen en een onderhoudsvriendelijke tuin, gelegen op een rustige locatie in Gronsveld.
• Kozijnen: Kunststof kozijnen met HR++ beglazing.
• Rolluiken: De woning is grotendeels voorzien van rolluiken.
• Centrale verwarming: cv-ketel (Intergas, 2025, Eigendom).
• De woning is voorzien van een hybride warmtepomp (Intergas, 2025, Eigendom).
• De gehele begane grond is voorzien van vloerverwarming.
• Energielabel: A+.
• Zonnepanelen: 12 zonnepanelen in eigendom (2018).
• Alle vermelde afmetingen zijn indicatief en kunnen afwijken van de werkelijkheid.

-Omgeving:
Gronsveld: een pittoresk dorp met een rijke geschiedenis en een ideale ligging
Deze woning bevindt zich in het charmante Gronsveld, een dorp dat deel uitmaakt van de gemeente Eijsden-Margraten. Gelegen aan de rand van Maastricht, biedt Gronsveld het beste van twee werelden: de rust en charme van een landelijke omgeving én de nabijheid van de stad. Het dorp staat bekend om zijn gezellige dorpskern, de rijke tradities zoals de eeuwenoude schutterij en de prachtige natuur. Het nabijgelegen Savelsbos is een oase van rust en biedt talloze mogelijkheden voor wandelingen en buitenactiviteiten. Gronsveld beschikt over diverse voorzieningen, waaronder een bakker, basisschool en kinderopvang, waardoor het een ideale woonomgeving is voor zowel gezinnen, als rustzoekers. Dankzij de uitstekende verbinding met de A2 en andere uitvalswegen, bent u binnen 10 minuten in het centrum van Maastricht, terwijl steden als Luik en Aken eveneens goed bereikbaar zijn. Wonen in Gronsveld betekent genieten van een rustige, groene omgeving met alle gemakken binnen handbereik.

-Disclaimer:
Voor meer verkoopinformatie, onze disclaimer en de verkoopvoorwaarden verwijzen wij u graag naar onze website: goessens-makelaardij.nl. Deze presentatie is met de grootste zorg samengesteld door Goessens & Goessens Makelaardij. Ondanks onze inspanningen aanvaarden wij geen enkele aansprakelijkheid voor eventuele onvolledigheden, onjuistheden of de gevolgen hiervan. Alle vermelde maten en oppervlakten zijn indicatief. Wij streven ernaar om u zo zorgvuldig mogelijk te informeren op basis van de beschikbare gegevens. Deze presentatie dient echter uitsluitend ter indicatie. Voor meer details of aanvullende informatie staan wij uiteraard graag voor u klaar.

Reageren op deze woning?

Bent u enthousiast geworden na het lezen van deze woningpresentatie en wilt u vrijblijvend meer informatie over deze woning ontvangen? Of wilt een bezichtiging aanvragen? Vul onderstaand contactformulier in en wij nemen z.s.m. contact met u op.

Uw bericht is naar ons verzonden. Wij nemen zo snel mogelijk contact met u op.

Sorry, we kunnen helaas niet met zekerheid vaststellen of je een mens of een geautomatiseerde bot/spammer bent. Hierdoor kunnen we het formulier dat je hebt ingevuld niet verzenden. Probeer het opnieuw of neem direct contact op met de makelaar via e-mail.

Er is iets mis gegaan met het versturen van het formulier.
Controleer of u alle velden (goed) heeft ingevoerd en probeer het nog een keer.

U zult automatisch een kopie van dit ingevuld contactformulier ontvangen op het door u ingevulde e-mailadres.

Wij vragen alleen uw gegevens die nodig zijn voor het beantwoorden van uw verzoek. Voor meer informatie verwijzen wij u naar onze privacyverklaring op onze website. Bij het versturen van dit formulier gaat u hiermee akkoord.

recaptcha
reCAPTCHA
PrivacyTerms

Heeft u liever dat wij u terugbellen?

Laat uw telefoonnummer achter en wij bellen u zo spoedig mogelijk terug.

Uw bericht is naar ons verzonden. Wij nemen zo snel mogelijk contact met u op.

Sorry, we kunnen helaas niet met zekerheid vaststellen of je een mens of een geautomatiseerde bot/spammer bent. Hierdoor kunnen we het formulier dat je hebt ingevuld niet verzenden. Probeer het opnieuw of neem direct contact op met de makelaar via e-mail.

Er is iets mis gegaan met het versturen van het formulier.
Controleer of u alle velden (goed) heeft ingevoerd en probeer het nog een keer.

recaptcha
reCAPTCHA
PrivacyTerms

Uw woning verkopen?

Wanneer u overweegt om uw huis te verkopen, vraag dan een vrijblijvend adviesgesprek en een waardebepaling aan. Wij maken graag een afspraak met u!

Gratis adviesgesprek

Locatie

[ { "lat": 50.809081, "lng": 5.728911, "heading": 0, "pitch": 0 } ]

Kenmerken

Aanvaarding

Status
Verkocht
Oplevering
In overleg
Adres
Graaf van Bronkhorststr 2
Postcode
6247 BZ
Plaats
Gronsveld

Bouw

Soort woonhuis
Eengezinswoning, 2-onder-1-kapwoning
Soort bouw
Bestaande bouw
Bouwjaar
1953

Oppervlakten en inhoud

Woonoppervlakte
ca. 132m²
Perceeloppervlakte
ca. 250m²
Overig oppervlakte
ca. 29m²
Inhoud
ca. 569m³

Indeling

Aantal kamers
5
Aantal slaapkamers
4
Aantal badkamers
1
Aantal verdiepingen
4
Voorzieningen
Rolluiken, Airconditioning, Zonnepanelen, Natuurlijke ventilatie

Energie

Energielabel
A+
Isolatie
Dubbel glas
Warm water
C.V.-ketel
Verwarming
C.V.-ketel, Vloerverwarming gedeeltelijk, Warmtepomp
Ketel
Intergas (2025, Combi-ketel, Eigendom)

Buitenruimte

Ligging
Aan rustige weg
Tuin
Tuin rondom

Garage

Soort garage
Inpandig
Capaciteit
1

Schriftelijkheidsvereiste:

Ter bescherming van de belangen van zowel koper als verkoper, wordt uitdrukkelijk gesteld dat een koopovereenkomst met betrekking tot deze onroerende zaak eerst dan tot stand komt nadat koper en verkoper beide de koopovereenkomst hebben getekend ("schriftelijkheidsvereiste"). Dit betekent dat een bevestiging van de afspraken per e-mail, of een toegestuurd concept van de koopovereenkomst, hier niet onder vallen

Waarborgsom/bankgarantie:

De waarborgsom/bankgarantie is 10% van de koopsom. De koper dient deze uiterlijk 1 week na het vervallen van de ontbindende voorwaarden bij de desbetreffende notaris te deponeren.

Bouwkundige keuring:

Koper is te allen tijde gerechtigd voor eigen rekening een bouwkundige keuring te (laten) verrichten dan wel andere adviseurs te raadplegen teneinde een goed inzicht te verkrijgen over de staat van de woning. De beoordeling van de woning zoals omschreven in bovenstaande presentatie en de brochure is gebaseerd op visuele waarneming, de leeftijd van de woning, en de informatie die verkregen is van de verkoper(s). Een bouwkundige rapportage valt nadrukkelijk buiten de informatie van deze websitepresentatie.

Aansprakelijkheid:

Deze websitepresentatie is door ons Goessens & Goessens Makelaardij met de nodige zorgvuldigheid samengesteld. Onzerzijds wordt echter geen enkele aansprakelijkheid aanvaard voor enige onvolledigheid, onjuist of anderszins, dan wel de gevolgen daarvan. Alle opgegeven maten en oppervlakten zijn indicatief. Deze websitepresentatie is slechts indicatief. Alle vermelden maten zijn circa maten. Er is nagestreefd naar een zo zorgvuldig mogelijke informatie van de ter beschikking staande gegevens. De verkoper heeft een mededelingsplicht inzake zaken die hem bekend zijn van het onroerend goed. De potentiele koper heeft een onderzoek plicht inzake de voor hem van belang zijnde gegevens van het onroerend goed.

Onderzoek plicht koper:

De informatie tijdens de rondleiding en in de websitepresentatie en overig informatiemateriaal is verkregen van de verkoper van de woning en is bedoeld om de koper te informeren. In het Burgerlijk Wetboek staat opgenomen dat op de koper van een woning een onderzoek plicht rust. Onder de onderzoeksplicht vallen bouwkundige gebreken/staat van de woning en publiekrechtelijke openbare informatie (zoals verkeers- /bestemmingsplannen). Een bouwkundige keuring geeft hier duidelijkheid over.

Copyright ©:

Gehele of gedeeltelijke overname, plaatsing op andere sites, advertenties, verveelvoudiging op welke andere wijze dan ook en/of commercieel gebruik van deze informatie (zoals foto’s, plattegronden, teksten, kenmerken etc.), is niet toegestaan, tenzij hiervoor uitdrukkelijk schriftelijke toestemming is verleend door Goessens & Goessens Makelaardij of tenzij aan de onderstaande voorwaarden wordt voldaan. Deze informatie mag worden bekeken , mits de informatie niet wordt gebruikt in een ander werk of publicatie in welk medium dan ook.