Goessens & Goessens Makelaardij gebruikt cookies om de website naar behoren te laten werken, om functies voor social media te bieden en om onze website te analyseren. Op onze website kun je ons Cookiebeleid en Privacybeleid vinden.

Graaf van Bronkhorststr 11, Gronsveld

Op een rustige en geliefde locatie in Gronsveld staat deze half vrijstaande hoekwoning met garage te koop. De woning is royaal van opzet en biedt verrassend veel mogelijkheden, na verbouwing, met vier zeer ruime, volwaardige, slaapkamers, meerdere leefruimten en een sfeervolle tuin met praktische zijingang.

De woning is netjes onderhouden, maar biedt op enkele punten ruimte voor modernisering. Zo krijgen nieuwe bewoners de kans om het geheel volledig naar eigen smaak en stijl aan te passen.

De ligging is bijzonder aantrekkelijk: winkels, speeltuin, basisschool, sportvoorzieningen en openbaar vervoer liggen op korte loopafstand. Maastricht, het MUMC+ en de Universiteit Maastricht zijn in ongeveer vijftien minuten met de fiets en tien autominuten bereikbaar. Daarnaast ligt het prachtige natuurgebied “Savelsbos” praktisch om de hoek, ideaal voor ontspannende wandelingen of fietstochten in het groen. Zo combineert deze ruime (gezins)woning het beste van twee werelden: wonen in een rustige dorpsomgeving met alle stedelijke voorzieningen binnen handbereik.

Nieuw Verkocht onder voorbehoud

€ 419.000 k.k.

Woningtype
Hoekwoning

Woonoppervlakte
ca. 150m²

Perceeloppervlakte
ca. 334m²

Inhoud
ca. 587m³

Kamers
6

Slaapkamers
4

Bouwjaar
1955

Aanvaarding
In overleg

Omschrijving

Deze woning wordt aangeboden door Goessens & Goessens Makelaardij

-Beschrijving:
Op een rustige en geliefde locatie in Gronsveld staat deze half vrijstaande hoekwoning met garage te koop. De woning is royaal van opzet en biedt verrassend veel mogelijkheden, na verbouwing, met vier zeer ruimte, volwaardige, slaapkamers, meerdere leefruimten en een sfeervolle tuin met praktische zijingang.

De woning is netjes onderhouden, maar biedt op enkele punten ruimte voor modernisering. Zo krijgen nieuwe bewoners de kans om het geheel volledig naar eigen smaak en stijl aan te passen.

De ligging is bijzonder aantrekkelijk: winkels, speeltuin, basisschool, sportvoorzieningen en openbaar vervoer liggen op korte loopafstand. Maastricht, het MUMC+ en de Universiteit Maastricht zijn in ongeveer vijftien minuten met de fiets en tien autominuten bereikbaar. Daarnaast ligt het prachtige natuurgebied “Savelsbos” praktisch om de hoek, ideaal voor ontspannende wandelingen of fietstochten in het groen. Zo combineert deze ruime (gezins)woning het beste van twee werelden: wonen in een rustige dorpsomgeving met alle stedelijke voorzieningen binnen handbereik.

-Indeling:

-Kelder:
Via een deur in de entree is de kelder bereikbaar. Deze betegelde kelderruimte van ca. 10 m² is praktisch in gebruik, bijvoorbeeld voor het opslaan van voorraden. Hier bevindt zich tevens de cv-installatie (Vaillant, 2013, Eigendom).

-Begane grond:
Bij binnenkomst in de royale entree (ca. 9,5 m²) met tegelvloer ervaart u direct de aangename sfeer van de woning. Vanuit deze hal zijn de meterkast, toiletruimte, kelder, trap naar de eerste verdieping, de woonkamer en de eetkamer bereikbaar. De betegelde toiletruimte is voorzien van een staand closet.

De sfeervolle eetkamer (ca. 21,5 m²) bevindt zich aan de voorzijde van de woning en geniet van een prettige lichtinval dankzij de grote raampartijen. De ruimte is voorzien van dezelfde fraaie tegelvloer als de entree en is verbonden met de woonkamer.

De ruime woonkamer (ca. 21 m²) ademt karakter dankzij het mooie glas-in-loodraam, de authentieke schuifdeuren en de openslaande deuren naar de tuin. De kamer biedt een fijn uitzicht op het groen en voelt bijzonder ruimtelijk aan, mede doordat de aangrenzende leefruimte volledig kan worden opengetrokken.

De tweede leefruimte, ca. 16 m² groot, is eveneens voorzien van een tegelvloer en beschikt over een deur naar de tuin. Vanuit hier leidt klapdeuren (dus dit is eventueel al een open toegang) naar de keuken.

De te renoveren keuken (ca. 4,5 m²) is voorzien van een losse combi-oven, een los gasfornuis, spoelbak en volop kastruimte. Via een schuifdeur is de praktische berging van ca. 6 m² bereikbaar, ideaal voor het opbergen van proviand of huishoudelijke benodigdheden. De berging beschikt eveneens over een deur naar de tuin.

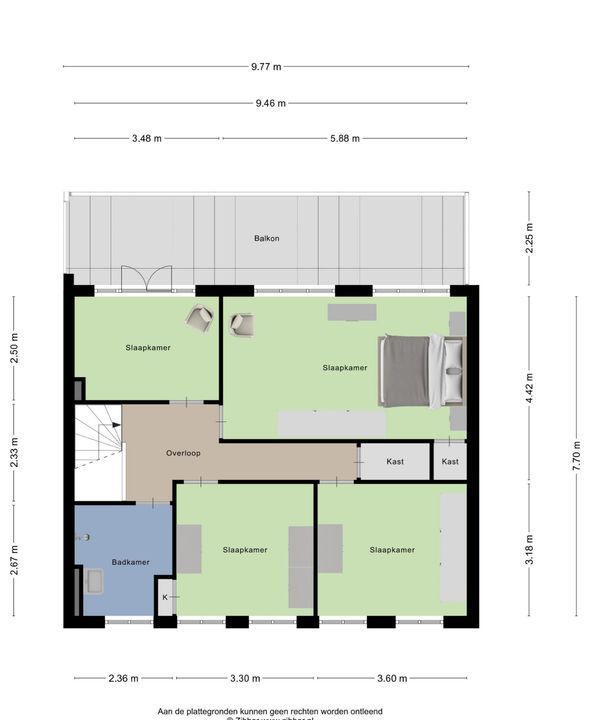
-Eerste verdieping:
Via de trap in de entree is de overloop op de eerste verdieping te bereiken. Vanuit deze overloop heeft u toegang tot de vier slaapkamers, de badkamer en een kastruimte. De gehele eerste verdieping is voorzien van een vloerbedekking.
• Slaapkamer 1: Deze royale slaapkamer is ca. 20 m² groot en voorzien van een inbouwkast.
• Slaapkamer 2: Deze comfortabele slaapkamer is ca. 11 m² groot.
• Slaapkamer 3: Deze slaapkamer is ca. 10,5 m² groot en eveneens voorzien van een inbouwkast.
• Slaapkamer 4: Deze slaapkamer is ca. 8,5 m² groot met openslaande deuren naar het ruime balkon (ca. 20 m²) met uitzicht op de tuin.
• Badkamer: De badkamer is ca. 6 m² groot en voorzien van een wastafel. Deze badkamer biedt genoeg ruimte om een mooie nieuwe badkamer te realiseren.

-Tuin:
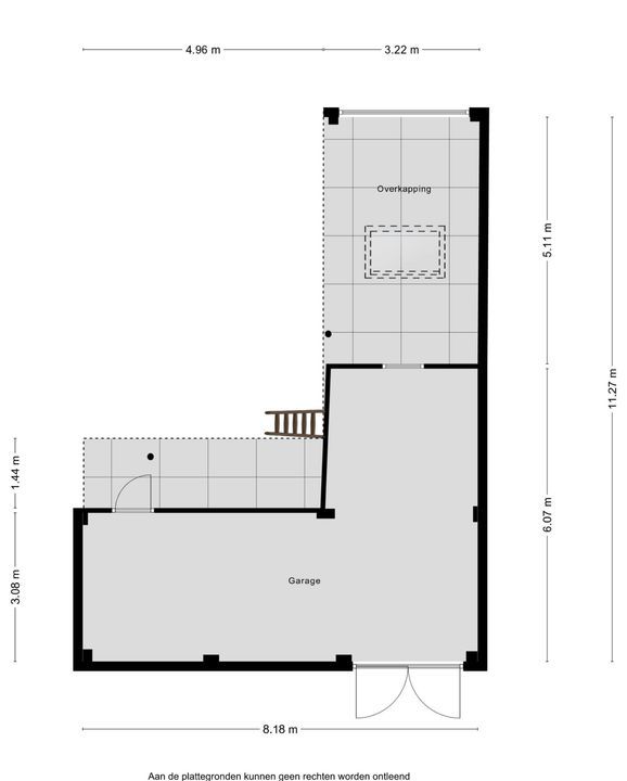
De woning beschikt over een ruime en sfeervolle achtertuin, bereikbaar vanuit de woonkamer, keuken, berging, garage én via de handige zijingang. De tuin biedt een combinatie van een royaal terras (ca. 13 m²) met overkapping direct grenzend aan de woonkamer, groene plantenborders en een verzorgd gazon. Hier geniet u van rust, privacy en voldoende ruimte om te ontspannen of gezellig buiten te tafelen. De zij-tuin (niet meegenomen in kadastrale grootte) is in bruikleen bij de gemeente Eijsden-Margraten. De geschatte grootte hiervan is ca. 130 m².

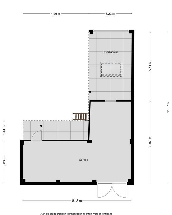
-Garage:
De ruime garage (ca. 34 m²) is bereikbaar vanuit de tuin of via de oprit aan de zijkant van de woning, gelegen aan de Meester Claessensstraat. De garage biedt voldoende ruimte voor het parkeren van één of meerdere voertuigen, het stallen van fietsen of extra opslag. Boven de garage bevindt zich bovendien een praktische berging/schuur.

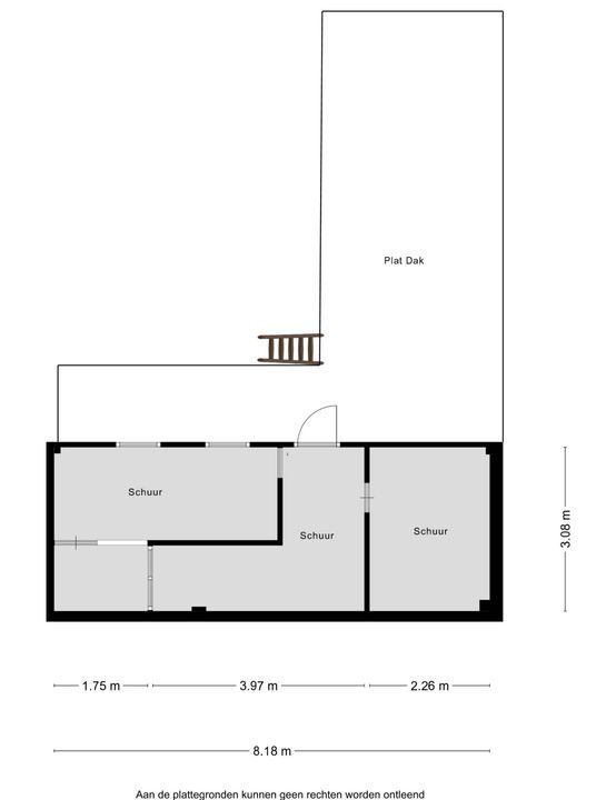
-Berging/schuur:
Boven de garage ligt een extra berging/schuur van ca. 25 m². Deze ruimtes lenen zich uitstekend voor het opslaan van materialen, tuingereedschap of seizoensgebonden spullen.

-Nadere bijzonderheden:
• Type woning: Half vrijstaande en op een hoek gelegen woning met veel mogelijkheden, voorzien van garage, vier slaapkamers en een ruime tuin, gelegen op een fijne locatie in Gronsveld.
• Kozijnen: Voorzijde benedenverdieping voorzien van houten kozijnen met dubbele beglazing, voor de rest houten kozijnen en enkele beglazing.
• Rolluiken: De achterkant van de woning is geheel voorzien van rolluiken.
• Centrale verwarming: HR combi-ketel (Vaillant, 2013, Eigendom).
• Energielabel: E. Met nog voldoende mogelijkheden tot verduurzaming, die de makelaar u graag toelicht.
• Een gedeelte van de grond aan de zijkant is in bruikleen bij de gemeente Eijsden-Margraten.
• Alle vermelde afmetingen zijn indicatief en kunnen afwijken van de werkelijkheid.

-Omgeving:
Gronsveld: een pittoresk dorp met een rijke geschiedenis en een ideale ligging
Deze woning bevindt zich in het charmante Gronsveld, een dorp dat deel uitmaakt van de gemeente Eijsden-Margraten. Gelegen aan de rand van Maastricht, biedt Gronsveld het beste van twee werelden: de rust en charme van een landelijke omgeving én de nabijheid van de stad. Het dorp staat bekend om zijn gezellige dorpskern, de rijke tradities zoals de eeuwenoude schutterij en de prachtige natuur. Het nabijgelegen Savelsbos is een oase van rust en biedt talloze mogelijkheden voor wandelingen en buitenactiviteiten. Gronsveld beschikt over diverse voorzieningen, waaronder een bakker, basisschool en kinderopvang, waardoor het een ideale woonomgeving is voor zowel gezinnen, als rustzoekers. Dankzij de uitstekende verbinding met de A2 en andere uitvalswegen, bent u binnen 10 minuten in het centrum van Maastricht, terwijl steden als Luik en Aken eveneens goed bereikbaar zijn. Wonen in Gronsveld betekent genieten van een rustige, groene omgeving met alle gemakken binnen handbereik.

Graag verwijzen wij u naar onze website goessens-makelaardij.nl, waar meer verkoopinformatie, onze disclaimer en de verkoopvoorwaarden te vinden zijn. Deze presentatie is door Goessens & Goessens Makelaardij met de nodige zorg samengesteld. Onzerzijds wordt echter geen enkele aansprakelijkheid aanvaard voor enige onvolledigheid, onjuist of anderszins, dan wel de gevolgen daarvan. Alle opgegeven maten en oppervlakten zijn indicatief. Deze presentatie is slechts indicatief. Er is nagestreefd naar een zo zorgvuldig mogelijke informatie van de ter beschikking staande gegevens

Reageren op deze woning?

Bent u enthousiast geworden na het lezen van deze woningpresentatie en wilt u vrijblijvend meer informatie over deze woning ontvangen? Of wilt een bezichtiging aanvragen? Vul onderstaand contactformulier in en wij nemen z.s.m. contact met u op.

Uw bericht is naar ons verzonden. Wij nemen zo snel mogelijk contact met u op.

Sorry, we kunnen helaas niet met zekerheid vaststellen of je een mens of een geautomatiseerde bot/spammer bent. Hierdoor kunnen we het formulier dat je hebt ingevuld niet verzenden. Probeer het opnieuw of neem direct contact op met de makelaar via e-mail.

Er is iets mis gegaan met het versturen van het formulier.
Controleer of u alle velden (goed) heeft ingevoerd en probeer het nog een keer.

U zult automatisch een kopie van dit ingevuld contactformulier ontvangen op het door u ingevulde e-mailadres.

Wij vragen alleen uw gegevens die nodig zijn voor het beantwoorden van uw verzoek. Voor meer informatie verwijzen wij u naar onze privacyverklaring op onze website. Bij het versturen van dit formulier gaat u hiermee akkoord.

recaptcha
reCAPTCHA
PrivacyTerms

Heeft u liever dat wij u terugbellen?

Laat uw telefoonnummer achter en wij bellen u zo spoedig mogelijk terug.

Uw bericht is naar ons verzonden. Wij nemen zo snel mogelijk contact met u op.

Sorry, we kunnen helaas niet met zekerheid vaststellen of je een mens of een geautomatiseerde bot/spammer bent. Hierdoor kunnen we het formulier dat je hebt ingevuld niet verzenden. Probeer het opnieuw of neem direct contact op met de makelaar via e-mail.

Er is iets mis gegaan met het versturen van het formulier.
Controleer of u alle velden (goed) heeft ingevoerd en probeer het nog een keer.

recaptcha
reCAPTCHA
PrivacyTerms

Uw woning verkopen?

Wanneer u overweegt om uw huis te verkopen, vraag dan een vrijblijvend adviesgesprek en een waardebepaling aan. Wij maken graag een afspraak met u!

Gratis adviesgesprek

Locatie

[ { "lat": 50.8087788, "lng": 5.7285958, "heading": 0, "pitch": 0 } ]

Kenmerken

Aanvaarding

Prijs
€ 419.000 k.k.
Status
Verkocht onder voorbehoud
Oplevering
In overleg
Adres
Graaf van Bronkhorststr 11
Postcode
6247 BX
Plaats
Gronsveld

Bouw

Soort woonhuis
Eengezinswoning, Hoekwoning
Soort bouw
Bestaande bouw
Bouwjaar
1955

Oppervlakten en inhoud

Woonoppervlakte
ca. 150m²
Perceeloppervlakte
ca. 334m²
Overig oppervlakte
ca. 16m²
Inhoud
ca. 587m³

Indeling

Aantal kamers
6
Aantal slaapkamers
4
Aantal badkamers
1
Aantal verdiepingen
3
Voorzieningen
Natuurlijke ventilatie, Rolluiken

Energie

Energielabel
E
Isolatie
Grotendeels dubbelglas
Warm water
C.V.-ketel
Verwarming
C.V.-ketel
Ketel
(Eigendom)

Buitenruimte

Ligging
Aan rustige weg
Tuin
Tuin rondom

Garage

Soort garage
Vrijstaand steen
Capaciteit
1

Schriftelijkheidsvereiste:

Ter bescherming van de belangen van zowel koper als verkoper, wordt uitdrukkelijk gesteld dat een koopovereenkomst met betrekking tot deze onroerende zaak eerst dan tot stand komt nadat koper en verkoper beide de koopovereenkomst hebben getekend ("schriftelijkheidsvereiste"). Dit betekent dat een bevestiging van de afspraken per e-mail, of een toegestuurd concept van de koopovereenkomst, hier niet onder vallen

Waarborgsom/bankgarantie:

De waarborgsom/bankgarantie is 10% van de koopsom. De koper dient deze uiterlijk 1 week na het vervallen van de ontbindende voorwaarden bij de desbetreffende notaris te deponeren.

Bouwkundige keuring:

Koper is te allen tijde gerechtigd voor eigen rekening een bouwkundige keuring te (laten) verrichten dan wel andere adviseurs te raadplegen teneinde een goed inzicht te verkrijgen over de staat van de woning. De beoordeling van de woning zoals omschreven in bovenstaande presentatie en de brochure is gebaseerd op visuele waarneming, de leeftijd van de woning, en de informatie die verkregen is van de verkoper(s). Een bouwkundige rapportage valt nadrukkelijk buiten de informatie van deze websitepresentatie.

Aansprakelijkheid:

Deze websitepresentatie is door ons Goessens & Goessens Makelaardij met de nodige zorgvuldigheid samengesteld. Onzerzijds wordt echter geen enkele aansprakelijkheid aanvaard voor enige onvolledigheid, onjuist of anderszins, dan wel de gevolgen daarvan. Alle opgegeven maten en oppervlakten zijn indicatief. Deze websitepresentatie is slechts indicatief. Alle vermelden maten zijn circa maten. Er is nagestreefd naar een zo zorgvuldig mogelijke informatie van de ter beschikking staande gegevens. De verkoper heeft een mededelingsplicht inzake zaken die hem bekend zijn van het onroerend goed. De potentiele koper heeft een onderzoek plicht inzake de voor hem van belang zijnde gegevens van het onroerend goed.

Onderzoek plicht koper:

De informatie tijdens de rondleiding en in de websitepresentatie en overig informatiemateriaal is verkregen van de verkoper van de woning en is bedoeld om de koper te informeren. In het Burgerlijk Wetboek staat opgenomen dat op de koper van een woning een onderzoek plicht rust. Onder de onderzoeksplicht vallen bouwkundige gebreken/staat van de woning en publiekrechtelijke openbare informatie (zoals verkeers- /bestemmingsplannen). Een bouwkundige keuring geeft hier duidelijkheid over.

Copyright ©:

Gehele of gedeeltelijke overname, plaatsing op andere sites, advertenties, verveelvoudiging op welke andere wijze dan ook en/of commercieel gebruik van deze informatie (zoals foto’s, plattegronden, teksten, kenmerken etc.), is niet toegestaan, tenzij hiervoor uitdrukkelijk schriftelijke toestemming is verleend door Goessens & Goessens Makelaardij of tenzij aan de onderstaande voorwaarden wordt voldaan. Deze informatie mag worden bekeken , mits de informatie niet wordt gebruikt in een ander werk of publicatie in welk medium dan ook.