Goessens & Goessens Makelaardij gebruikt cookies om de website naar behoren te laten werken, om functies voor social media te bieden en om onze website te analyseren. Op onze website kun je ons Cookiebeleid en Privacybeleid vinden.

't Greuntsje 6, Gronsveld

Welkom in deze karakteristieke, vrijstaande woning aan ’t Greuntsje, gelegen in het pittoreske en groene Rijckholt. Deze ruime woning biedt een genereus woonoppervlak (exclusief de zolder) en beschikt over drie slaapkamers, met de mogelijkheid tot een vierde dankzij de reeds geplaatste vaste trap. De royale woonkamer is vergroot door een muurdoorbraak richting de voormalige keuken, wat zorgt voor een open en lichte leefruimte. Met een ruime oprit en een garage is er bovendien volop praktische ruimte voor parkeren en opslag.

De woning is volledig voorbereid op verdere modernisering: de ondervloer is vernieuwd, de muurdoorbraak gerealiseerd, het behang verwijderd, de vaste trap geplaatst en de open haard op de begane grond verwijderd. Dit biedt u de ideale basis om de woning geheel naar eigen smaak af te werken en in te richten.

Rijckholt staat bekend om zijn landelijke charme, de hechte gemeenschap en de nabijheid van voorzieningen in zowel Eijsden als Maastricht. Hier geniet u van rust en natuur, terwijl u dankzij de gunstige ligging nabij de A2 en diverse uitvalswegen binnen enkele minuten in Maastricht bent.

Nieuw

€ 489.000 k.k.

Woningtype
Vrijstaande woning

Woonoppervlakte
ca. 129m²

Perceeloppervlakte
ca. 396m²

Inhoud
ca. 594m³

Kamers
4

Slaapkamers
3

Bouwjaar
1964

Aanvaarding
In overleg

Omschrijving

Deze woning wordt aangeboden door Goessens & Goessens Makelaardij

-Beschrijving:
Welkom in deze karakteristieke, vrijstaande woning aan ’t Greuntsje, gelegen in het pittoreske en groene Rijckholt. Deze ruime woning biedt een genereus woonoppervlak (exclusief de zolder) en beschikt over drie slaapkamers, met de mogelijkheid tot een vierde dankzij de reeds geplaatste vaste trap. De royale woonkamer is vergroot door een muurdoorbraak richting de voormalige keuken, wat zorgt voor een open en lichte leefruimte. Met een ruime oprit en een garage is er bovendien volop praktische ruimte voor parkeren en opslag.

De woning is volledig voorbereid op verdere modernisering: de ondervloer is vernieuwd, de muurdoorbraak gerealiseerd, het behang verwijderd, de vaste trap geplaatst en de open haard op de begane grond verwijderd. Dit biedt u de ideale basis om de woning geheel naar eigen smaak af te werken en in te richten.

Rijckholt staat bekend om zijn landelijke charme, de hechte gemeenschap en de nabijheid van voorzieningen in zowel Eijsden als Maastricht. Hier geniet u van rust en natuur, terwijl u dankzij de gunstige ligging nabij de A2 en diverse uitvalswegen binnen enkele minuten in Maastricht bent.

-Indeling:

-Kelder:
Via de trap in de entree bereikt u de kelder van ca. 10 m². Deze praktische ruimte is uitermate geschikt voor opslag of als voorraadruimte.

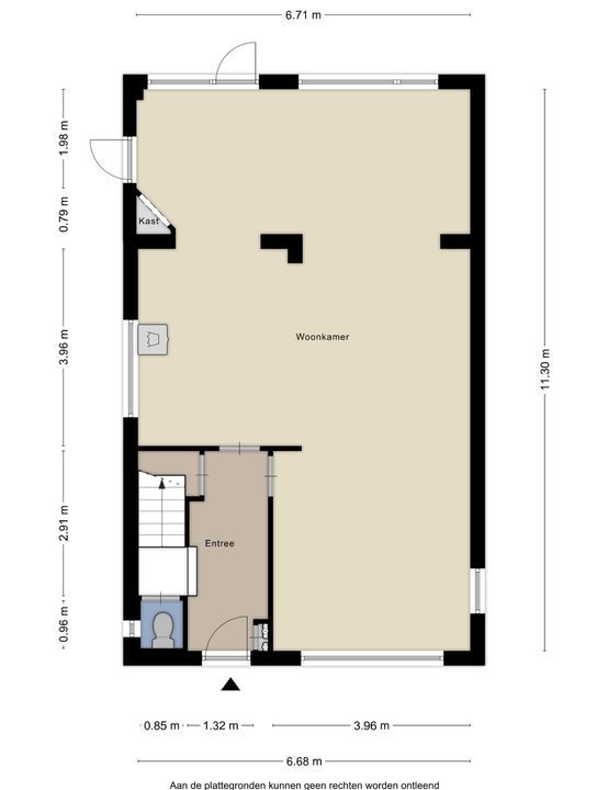
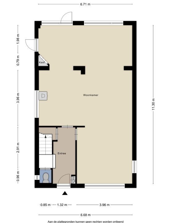
-Begane grond:
Bij binnenkomst in de ruime hal (ca. 6 m²) valt direct de lichte tegelvloer op, die de ruimte een frisse en uitnodigende uitstraling geeft. Vanuit de hal heeft u toegang tot de toiletruimte, de woonkamer met muurdoorbraak naar de voormalige keuken, de kelder en de trap naar de eerste verdieping. De betegelde toiletruimte is voorzien van een staand toilet en een fonteintje.

De royale woonkamer en open keuken van samen ca. 63 m² zijn bijzonder licht door de grote raampartijen aan zowel de voor- als achterzijde. Het vrije uitzicht op de omliggende weilanden versterkt het gevoel van ruimte en rust. Extra comfort biedt de aanwezige airconditioning, die zowel kan koelen als verwarmen. Vanuit de achterzijde van deze leefruimte heeft u directe toegang tot de oprit, wat praktisch gemak biedt. Er is geen keuken aanwezig. Er is een impressie bijgevoegd wat het eindresultaat kan worden na verbouwing. De vorige eigenaar heeft reeds voorbereidingen getroffen om de keuken bij de woonkamer te betrekken. Alle behang is reeds van de muren verwijderd, dus volledig voorbereidt voor uw verdere wensen.

Door de zeer ruime omvang en indelingsmogelijkheden van deze leefruimte kan deze volledig worden aangepast aan uw persoonlijke wensen.

-Eerste verdieping:
Via de trap in de entree bereikt u de eerste verdieping, waar een overloop (ca. 5 m²) toegang geeft tot drie slaapkamers en de badkamer.
• Slaapkamer 1: Deze ruime slaapkamer is ca. 15 m² groot en voorzien van airconditioning.
• Slaapkamer 2: Deze comfortabele kamer is ca. 14 m² groot.
• Slaapkamer 3: Deze kamer is ca. 10 m² groot en voorzien van een muurkast.
• Badkamer: Deze badkamer is ca. 5 m² groot. Deze is door de vorige eigenaar reeds verwijderd en verruimd. Er is daglicht aanwezig doormiddel van een gevelraam. Er is een impressie bijgevoegd.

-Zolder:
Via een reeds vaste trap bereikt u de zolder, bestaande uit een mooie ruimte van ca. 21 m². Met enkele aanpassingen zoals een dakkapel kan hier eenvoudig een extra slaapkamer worden gerealiseerd, waardoor het aantal slaapvertrekken vergroot kan worden. Met de vaste trap die al is geplaatst, is de toegang direct geregeld.

-Garage:
De ruime garage van ca. 15 m² is voorzien van een elektrisch bedienbare poort aan de ene zijde en een handmatige poort aan de andere zijde. Tevens is de garage toegankelijk via de tuin. Met elektra- en wateraansluiting. Deze garage biedt voldoende plek voor fietsen of het opslaan van andere spullen. De royale oprit biedt daarnaast parkeergelegenheid voor meerdere auto’s.

-Tuin:
De prettige onderhoudsvrije, omsloten tuin is bereikbaar middels deuren in de leefruimte, de garage en de zijingang. De tuin bestaat uit een gazon en een terras, maar is in te richten naar ieders wens.

Kortom, deze woning biedt een unieke kans om een vrijstaand huis volledig naar eigen wens te moderniseren en in te richten, zowel binnen als buiten. Hier kunt u uw droomwoning creëren, volledig afgestemd op uw eigen smaak en levensstijl.

-Nadere bijzonderheden:
• Type woning: Vrijstaande woning met garage. Deze is reeds volledig voorbereidt tot verdere aanpassingen zoals nieuwe ondervloer, vaste trap, behang verwijderd, open haard begane grond verwijderd e.d.
• Kozijnen: Kunststof kozijnen met dubbele beglazing.
• Rolluiken: Grotendeels voorzien van rolluiken.
• Centrale verwarming: cv-ketel is reeds verwijderd, zodat deze vervangen kan worden door een nieuwer exemplaar.
• Energielabel: E. Met nog voldoende mogelijkheden tot verduurzaming, die de makelaar graag toelicht.
• Alle vermelde afmetingen zijn indicatief en kunnen afwijken van de werkelijkheid.

-Omgeving:
De woning is rustig gelegen aan de rand van Gronsveld, in de plaats Rijckholt. Een pittoresk dorp met een rijke geschiedenis en een ideale ligging, welke deel uitmaakt van de gemeente Eijsden-Margraten. Gelegen aan de rand van Maastricht, biedt Rijckholt het beste van twee werelden: de rust en charme van een landelijke omgeving én de nabijheid van de stad. Het dorp staat bekend om zijn gezellige dorpskern, de rijke tradities zoals de eeuwenoude schutterij en de prachtige natuur. Het nabijgelegen Savelsbos is een oase van rust en biedt talloze mogelijkheden voor wandelingen en buitenactiviteiten. Het naastgelegen Gronsveld beschikt over diverse voorzieningen, waaronder een bakker, basisschool en kinderopvang, waardoor het een ideale woonomgeving is voor zowel gezinnen, als rustzoekers. Dankzij de uitstekende verbinding met de A2 en andere uitvalswegen, bent u binnen 10 minuten in het centrum van Maastricht, terwijl steden als Luik en Aken eveneens goed bereikbaar zijn. Wonen in Gronsveld/Rijckholt betekent genieten van een rustige, groene omgeving met alle gemakken binnen handbereik.

Graag verwijzen wij u naar onze website goessens-makelaardij.nl, waar meer verkoopinformatie, onze disclaimer en de verkoopvoorwaarden te vinden zijn. Deze presentatie is door Goessens & Goessens Makelaardij met de nodige zorg samengesteld. Onzerzijds wordt echter geen enkele aansprakelijkheid aanvaard voor enige onvolledigheid, onjuist of anderszins, dan wel de gevolgen daarvan. Alle opgegeven maten en oppervlakten zijn indicatief. Deze presentatie is slechts indicatief. Er is nagestreefd naar een zo zorgvuldig mogelijke informatie van de ter beschikking staande gegevens.

Reageren op deze woning?

Bent u enthousiast geworden na het lezen van deze woningpresentatie en wilt u vrijblijvend meer informatie over deze woning ontvangen? Of wilt een bezichtiging aanvragen? Vul onderstaand contactformulier in en wij nemen z.s.m. contact met u op.

Uw bericht is naar ons verzonden. Wij nemen zo snel mogelijk contact met u op.

Sorry, we kunnen helaas niet met zekerheid vaststellen of je een mens of een geautomatiseerde bot/spammer bent. Hierdoor kunnen we het formulier dat je hebt ingevuld niet verzenden. Probeer het opnieuw of neem direct contact op met de makelaar via e-mail.

Er is iets mis gegaan met het versturen van het formulier.
Controleer of u alle velden (goed) heeft ingevoerd en probeer het nog een keer.

U zult automatisch een kopie van dit ingevuld contactformulier ontvangen op het door u ingevulde e-mailadres.

Wij vragen alleen uw gegevens die nodig zijn voor het beantwoorden van uw verzoek. Voor meer informatie verwijzen wij u naar onze privacyverklaring op onze website. Bij het versturen van dit formulier gaat u hiermee akkoord.

recaptcha
reCAPTCHA
PrivacyTerms

Heeft u liever dat wij u terugbellen?

Laat uw telefoonnummer achter en wij bellen u zo spoedig mogelijk terug.

Uw bericht is naar ons verzonden. Wij nemen zo snel mogelijk contact met u op.

Sorry, we kunnen helaas niet met zekerheid vaststellen of je een mens of een geautomatiseerde bot/spammer bent. Hierdoor kunnen we het formulier dat je hebt ingevuld niet verzenden. Probeer het opnieuw of neem direct contact op met de makelaar via e-mail.

Er is iets mis gegaan met het versturen van het formulier.
Controleer of u alle velden (goed) heeft ingevoerd en probeer het nog een keer.

recaptcha
reCAPTCHA
PrivacyTerms

Uw woning verkopen?

Wanneer u overweegt om uw huis te verkopen, vraag dan een vrijblijvend adviesgesprek en een waardebepaling aan. Wij maken graag een afspraak met u!

Gratis adviesgesprek

Documenten

Locatie

[ { "lat": 50.7973544, "lng": 5.7290345, "heading": 0, "pitch": 0 } ]

Kenmerken

Aanvaarding

Prijs
€ 489.000 k.k.
Status
Beschikbaar
Oplevering
In overleg
Adres
't Greuntsje 6
Postcode
6247 EC
Plaats
Gronsveld

Bouw

Soort woonhuis
Eengezinswoning, Vrijstaande woning
Soort bouw
Bestaande bouw
Bouwjaar
1964

Oppervlakten en inhoud

Woonoppervlakte
ca. 129m²
Perceeloppervlakte
ca. 396m²
Overig oppervlakte
ca. 31m²
Inhoud
ca. 594m³

Indeling

Aantal kamers
4
Aantal slaapkamers
3
Aantal badkamers
1
Aantal verdiepingen
4
Voorzieningen
Natuurlijke ventilatie, Rolluiken

Energie

Energielabel
E
Isolatie
Dubbel glas
Warm water
C.V.-ketel
Verwarming
C.V.-ketel
Ketel
Remeha (2009, Eigendom)

Buitenruimte

Ligging
In woonwijk
Tuin
Tuin rondom

Schriftelijkheidsvereiste:

Ter bescherming van de belangen van zowel koper als verkoper, wordt uitdrukkelijk gesteld dat een koopovereenkomst met betrekking tot deze onroerende zaak eerst dan tot stand komt nadat koper en verkoper beide de koopovereenkomst hebben getekend ("schriftelijkheidsvereiste"). Dit betekent dat een bevestiging van de afspraken per e-mail, of een toegestuurd concept van de koopovereenkomst, hier niet onder vallen

Waarborgsom/bankgarantie:

De waarborgsom/bankgarantie is 10% van de koopsom. De koper dient deze uiterlijk 1 week na het vervallen van de ontbindende voorwaarden bij de desbetreffende notaris te deponeren.

Bouwkundige keuring:

Koper is te allen tijde gerechtigd voor eigen rekening een bouwkundige keuring te (laten) verrichten dan wel andere adviseurs te raadplegen teneinde een goed inzicht te verkrijgen over de staat van de woning. De beoordeling van de woning zoals omschreven in bovenstaande presentatie en de brochure is gebaseerd op visuele waarneming, de leeftijd van de woning, en de informatie die verkregen is van de verkoper(s). Een bouwkundige rapportage valt nadrukkelijk buiten de informatie van deze websitepresentatie.

Aansprakelijkheid:

Deze websitepresentatie is door ons Goessens & Goessens Makelaardij met de nodige zorgvuldigheid samengesteld. Onzerzijds wordt echter geen enkele aansprakelijkheid aanvaard voor enige onvolledigheid, onjuist of anderszins, dan wel de gevolgen daarvan. Alle opgegeven maten en oppervlakten zijn indicatief. Deze websitepresentatie is slechts indicatief. Alle vermelden maten zijn circa maten. Er is nagestreefd naar een zo zorgvuldig mogelijke informatie van de ter beschikking staande gegevens. De verkoper heeft een mededelingsplicht inzake zaken die hem bekend zijn van het onroerend goed. De potentiele koper heeft een onderzoek plicht inzake de voor hem van belang zijnde gegevens van het onroerend goed.

Onderzoek plicht koper:

De informatie tijdens de rondleiding en in de websitepresentatie en overig informatiemateriaal is verkregen van de verkoper van de woning en is bedoeld om de koper te informeren. In het Burgerlijk Wetboek staat opgenomen dat op de koper van een woning een onderzoek plicht rust. Onder de onderzoeksplicht vallen bouwkundige gebreken/staat van de woning en publiekrechtelijke openbare informatie (zoals verkeers- /bestemmingsplannen). Een bouwkundige keuring geeft hier duidelijkheid over.

Copyright ©:

Gehele of gedeeltelijke overname, plaatsing op andere sites, advertenties, verveelvoudiging op welke andere wijze dan ook en/of commercieel gebruik van deze informatie (zoals foto’s, plattegronden, teksten, kenmerken etc.), is niet toegestaan, tenzij hiervoor uitdrukkelijk schriftelijke toestemming is verleend door Goessens & Goessens Makelaardij of tenzij aan de onderstaande voorwaarden wordt voldaan. Deze informatie mag worden bekeken , mits de informatie niet wordt gebruikt in een ander werk of publicatie in welk medium dan ook.