Goessens & Goessens Makelaardij gebruikt cookies om de website naar behoren te laten werken, om functies voor social media te bieden en om onze website te analyseren. Op onze website kun je ons Cookiebeleid en Privacybeleid vinden.

Voerstraat 2, Eijsden

Nieuw

€ 869.000 k.k.

Woningtype
Halfvrijstaande woning

Woonoppervlakte
ca. 373m²

Perceeloppervlakte
ca. 3.158m²

Inhoud
ca. 1.839m³

Kamers
7

Slaapkamers
6

Bouwjaar
1695

Aanvaarding
In overleg

Omschrijving

DEZE WONING WORDT AANGEBODEN DOOR GOESSENS & GOESSENS MAKELAARDIJ.

Beschrijving:
Exclusief wonen in Eijsden. Welkom in deze prachtige, op een rustige locatie gelegen, monumentale boerderijwoning, beter bekend als de ‘’Kerenshof’’. Deze unieke woning (gebouwd rond 1695) is een fantastisch familiehuis van ongekende klasse, gelegen op een perceel van maar liefst 3.158 m². Er zijn o.a. 6 zeer ruime slaapkamers aanwezig, twee ruime garages, grote kelderruimten, diverse multifunctionele ruimtes, en een prachtige, parkachtige tuin met diverse terrassen! De woning is tevens voorzien van 29 zonnepanelen. Bewonder de prachtige architectuur, de vele detailleringen en de fantastische sfeer, die "de Kerenshof" tot een droomhuis maken. De ligging is uitstekend: in de directe nabijheid is het heerlijk wandelen en het winkelcentrum van Eijsden is op slechts enkele minuten te bereiken. Ook slechts 10 minuten verwijderd van het MUMC+, UM en het historische centrum van Maastricht.

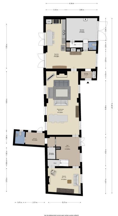
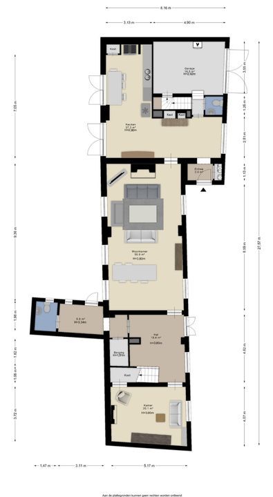
Indeling:

-Kelder:
Onder een deel van de hoeve is de kelder gesitueerd, welke te bereiken is via de garage. De kelder bestaat uit maar liefst zeven ruimtes met een plafondhoogte van ca. 2,70 meter. Er zijn meerdere ruimtes voor opslag, maar de realisatie van een sfeervolle wijnkelder is natuurlijk ook een passende optie. In de kelder treft u tevens de HR CV ketel (bouwjaar onbekend) aan.

-Begane grond:
U bereikt de woning via de imposante, stijlvolle en authentieke voorgevel, die toegang geeft tot de stijlvolle ontvangsthal van ca. 18 m². De natuurstenen vloer, de paneeldeuren, de detailleringen en het 3.80 meter hoge ornamentenplafond, etaleren al hun charme en historie. In dit gedeelte van de woning bereikt u een voorkamer (ca. 20 m²), de gang naar het toilet, de woonkamer en de sierlijke trapopgang naar de eerste verdieping. De woonkamer, gescheiden door imposante houten deuren is maar liefst ca. 51 m² groot. De houten vloer toont karakter en de originele, zandstenen schouwen zijn behouden, net als de grote ramen, welke de woonkamer verbinden met de achtertuin. De woonkamer biedt toegang tot de keuken, welke tevens via een tweede entree, aan de voorzijde van de woning, is te bereiken. De ruime woonkamer met gezellige leefkeuken zijn samen ca. 88 m² groot ! In de eetkeuken (ca. 37 m²) vallen de sfeervolle, authentieke elementen meteen op, en het zicht op de tuin vanuit de keuken maakt het een fijn plekje om te vertoeven. De keuken is voorzien van een Boretti gasfornuis, koelkast, vaatwasser en een afzuigkap en tevens voorzien van airconditioning. Praktisch zijn de aanwezige hoge kasten in de keuken, te gebruiken als opbergruimte. Door de openslaande deuren biedt de keuken optimaal tuincontact. Via de keuken heeft u tevens toegang tot de hal, waar de trap naar de eerste verdieping, het toilet (voorzien van een staand closet en een fonteintje) en de toegang tot de garage zich bevinden.

-Eerste verdieping:
Volg de bordestrap in de hal naar de eerste verdieping, waar u als eerste op de overloop (ca. 4 m²) komt. Deze ruimte staat in verbinding met een portaal van ca. 10 m², beiden met een bijna 3.60 meter hoog ornamentenplafond, hoge ramen en een houten vloer.
Er zijn via dit portaal 3 slaapkamers van ca. 23, 12 en 19 m² en een badkamer te bereiken. Op een slaapkamer is airconditioning aanwezig. De badkamer (ca. 12 m²) is voorzien van een ligbad, twee wastafels en een toilet.
De achtergelegen, vierde slaapkamer is te bereiken via de trap naast de garage. Deze ruimte is maar liefst ca. 41 m². De slaapkamer wordt overspoeld met natuurlijk licht en ook hier is de originele schouw behouden gebleven. De tuin is tevens te bereiken via de brandtrap.

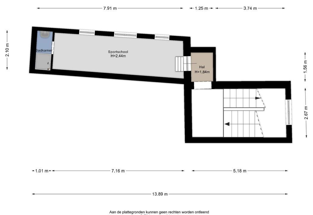
-Tweede verdieping:
De bordestrap vervolgt zijn weg naar de tweede verdieping. Hier komt u op de vijfde slaapkamer terecht (ca. 36 m²), die in verbinding staat met de zesde slaapkamer (ca. 16 m²). Aan de achterzijde is een berging van ca. 38 m² gesitueerd. Hier ziet u de prachtige dakconstructie in vol ornaat tot aan de ca. 4 meter hoge nok. Deze ruimte is een blanco canvas, die u geheel naar eigen smaak kunt transformeren in een inpandig appartement of extra slaapkamer(s) met een badkamer. Uiteraard dient u rekening te houden met het historische karakter.

-Garage:
De garage (ca. 18,5 m²) is te bereiken via de dubbele houten poort aan de voorzijde van de woning, en via een inpandige deur in de keuken. De ruime garage heeft plek voor het parkeren van 1 auto, en er is voldoende plaats voor bijvoorbeeld het opbergen van fietsen e.d.

-Bijgebouw/ garage:
Rechts van de woning staat een vrijstaande garage van ca. 29,5 m². Dit ruim bijgebouw kan voor meerdere doeleinden gebruikt worden. Voor het stallen van diverse voertuigen of het opbergen van tuingereedschap is deze garage een perfect bijgebouw.

-Tuin:
Middels de openslaande deuren in de eetkamer, en een deur in de hal, bereikt u de tuin. Niet alleen de woning, maar ook de tuin is van groot formaat. Het is heerlijk zitten op het ruime, volledig beklinkerde terras, welke uitnodigt voor een diner met vrienden of familie. Ook de imposante achtergevel is vanaf hier te bewonderen. Wanneer u hier zit, waant u zich in de Franse sferen. De rest van de parkachtige tuin is een oase van groen en grenst aan de achtergelegen Voer. Er is zoveel te zien en te beleven, dat wij u bij interesse uitnodigen voor een eerste kennismaking met de Kerenshof, die wellicht leidt tot onvoorwaardelijke liefde.

-Nadere bijzonderheden:
• Uniek perceel van 3.158 m² in Eijsden.
• Houten kozijnen met dubbel beglazing.
• Airconditioning aanwezig in keuken en slaapkamer.
• Rijksmonument nr. 15495.
• 29 zonnepanelen (2023, eigendom).
• Energielabel: Rijksmonumenten zijn vrijgesteld van de verplichting voor een energielabel.
• Centrale verwarming: 2 cv-ketels aanwezig. Bouwjaar onbekend.
• Geen gasaansluiting aanwezig. Cv-ketels worden voorzien van propaan via een bovengrondse propaantank.
• Alle vermelde afmetingen zijn indicatief en kunnen afwijken van de werkelijkheid.

-Omgeving:
Deze woning is gelegen in de kern van Eijsden. Eijsden is een forensengemeente gelegen bij de Maas. Een sfeervolle, bourgondische plaats met een oude historische kern, met gezellige terrasjes, eetcafés, winkeltjes e.d. Alle verdere voorzieningen scholen, kinderdagverblijf, sportvoorzieningen e.d. zijn in ruime maten aanwezig. Gunstig gelegen t.o.v. diverse uitvalswegen: Maastricht centrum, MUMC+, en Universiteit zijn op 10 minuten te bereiken. Eijsden is voorzien van een goede busverbinding en voorzien van een treinstation. Traditioneel zijn er jaarlijkse festiviteiten zoals de jaarlijkse “Broonk”, een goed moment om met bevolking van Eijsden te leren kennen.

Graag verwijzen wij u naar onze website goessens-makelaardij.nl, waar meer verkoopinformatie, onze disclaimer en de verkoopvoorwaarden te vinden zijn. Deze presentatie is door Goessens & Goessens Makelaardij met de nodige zorg samengesteld. Onzerzijds wordt echter geen enkele aansprakelijkheid aanvaard voor enige onvolledigheid, onjuist of anderszins, dan wel de gevolgen daarvan. Alle opgegeven maten en oppervlakten zijn indicatief. Deze presentatie is slechts indicatief. Er is nagestreefd naar een zo zorgvuldig mogelijke informatie van de ter beschikking staande gegevens.

Reageren op deze woning?

Bent u enthousiast geworden na het lezen van deze woningpresentatie en wilt u vrijblijvend meer informatie over deze woning ontvangen? Of wilt een bezichtiging aanvragen? Vul onderstaand contactformulier in en wij nemen z.s.m. contact met u op.

Uw bericht is naar ons verzonden. Wij nemen zo snel mogelijk contact met u op.

Sorry, we kunnen helaas niet met zekerheid vaststellen of je een mens of een geautomatiseerde bot/spammer bent. Hierdoor kunnen we het formulier dat je hebt ingevuld niet verzenden. Probeer het opnieuw of neem direct contact op met de makelaar via e-mail.

Er is iets mis gegaan met het versturen van het formulier.
Controleer of u alle velden (goed) heeft ingevoerd en probeer het nog een keer.

U zult automatisch een kopie van dit ingevuld contactformulier ontvangen op het door u ingevulde e-mailadres.

Wij vragen alleen uw gegevens die nodig zijn voor het beantwoorden van uw verzoek. Voor meer informatie verwijzen wij u naar onze privacyverklaring op onze website. Bij het versturen van dit formulier gaat u hiermee akkoord.

recaptcha
reCAPTCHA
PrivacyTerms

Heeft u liever dat wij u terugbellen?

Laat uw telefoonnummer achter en wij bellen u zo spoedig mogelijk terug.

Uw bericht is naar ons verzonden. Wij nemen zo snel mogelijk contact met u op.

Sorry, we kunnen helaas niet met zekerheid vaststellen of je een mens of een geautomatiseerde bot/spammer bent. Hierdoor kunnen we het formulier dat je hebt ingevuld niet verzenden. Probeer het opnieuw of neem direct contact op met de makelaar via e-mail.

Er is iets mis gegaan met het versturen van het formulier.
Controleer of u alle velden (goed) heeft ingevoerd en probeer het nog een keer.

recaptcha
reCAPTCHA
PrivacyTerms

Uw woning verkopen?

Wanneer u overweegt om uw huis te verkopen, vraag dan een vrijblijvend adviesgesprek en een waardebepaling aan. Wij maken graag een afspraak met u!

Gratis adviesgesprek

Locatie

[ { "lat": 50.7675819, "lng": 5.710698, "heading": 0, "pitch": 0 } ]

Kenmerken

Aanvaarding

Prijs
€ 869.000 k.k.
Status
Beschikbaar
Oplevering
In overleg
Adres
Voerstraat 2
Postcode
6245 AA
Plaats
Eijsden

Bouw

Soort woonhuis
Woonboerderij, Halfvrijstaande woning
Soort bouw
Bestaande bouw
Bouwjaar
1695
Bijzonderheden
Monumentaal pand, Toegankelijk voor gehandicapten, Toegankelijk voor ouderen

Oppervlakten en inhoud

Woonoppervlakte
ca. 373m²
Perceeloppervlakte
ca. 3.158m²
Overig oppervlakte
ca. 123m²
Inhoud
ca. 1.839m³

Indeling

Aantal kamers
7
Aantal slaapkamers
6
Aantal badkamers
1
Aantal verdiepingen
4
Voorzieningen
Dakraam, TV-Kabel, Zonnepanelen

Energie

Isolatie
Dubbel glas
Warm water
C.V.-ketel
Verwarming
C.V.-ketel

Buitenruimte

Ligging
Aan rustige weg, Aan het water, Beschutte ligging, In bosrijke omgeving, Vrij uitzicht
Tuin
Tuin rondom
Schuur
Aangebouwd steen
Faciliteiten schuur
Voorzien van elektra

Garage

Soort garage
Aangebouwd steen, Vrijstaand steen
Capaciteit
1
Voorzieningen
Voorzien van elektra

Schriftelijkheidsvereiste:

Ter bescherming van de belangen van zowel koper als verkoper, wordt uitdrukkelijk gesteld dat een koopovereenkomst met betrekking tot deze onroerende zaak eerst dan tot stand komt nadat koper en verkoper beide de koopovereenkomst hebben getekend ("schriftelijkheidsvereiste"). Dit betekent dat een bevestiging van de afspraken per e-mail, of een toegestuurd concept van de koopovereenkomst, hier niet onder vallen

Waarborgsom/bankgarantie:

De waarborgsom/bankgarantie is 10% van de koopsom. De koper dient deze uiterlijk 1 week na het vervallen van de ontbindende voorwaarden bij de desbetreffende notaris te deponeren.

Bouwkundige keuring:

Koper is te allen tijde gerechtigd voor eigen rekening een bouwkundige keuring te (laten) verrichten dan wel andere adviseurs te raadplegen teneinde een goed inzicht te verkrijgen over de staat van de woning. De beoordeling van de woning zoals omschreven in bovenstaande presentatie en de brochure is gebaseerd op visuele waarneming, de leeftijd van de woning, en de informatie die verkregen is van de verkoper(s). Een bouwkundige rapportage valt nadrukkelijk buiten de informatie van deze websitepresentatie.

Aansprakelijkheid:

Deze websitepresentatie is door ons Goessens & Goessens Makelaardij met de nodige zorgvuldigheid samengesteld. Onzerzijds wordt echter geen enkele aansprakelijkheid aanvaard voor enige onvolledigheid, onjuist of anderszins, dan wel de gevolgen daarvan. Alle opgegeven maten en oppervlakten zijn indicatief. Deze websitepresentatie is slechts indicatief. Alle vermelden maten zijn circa maten. Er is nagestreefd naar een zo zorgvuldig mogelijke informatie van de ter beschikking staande gegevens. De verkoper heeft een mededelingsplicht inzake zaken die hem bekend zijn van het onroerend goed. De potentiele koper heeft een onderzoek plicht inzake de voor hem van belang zijnde gegevens van het onroerend goed.

Onderzoek plicht koper:

De informatie tijdens de rondleiding en in de websitepresentatie en overig informatiemateriaal is verkregen van de verkoper van de woning en is bedoeld om de koper te informeren. In het Burgerlijk Wetboek staat opgenomen dat op de koper van een woning een onderzoek plicht rust. Onder de onderzoeksplicht vallen bouwkundige gebreken/staat van de woning en publiekrechtelijke openbare informatie (zoals verkeers- /bestemmingsplannen). Een bouwkundige keuring geeft hier duidelijkheid over.

Copyright ©:

Gehele of gedeeltelijke overname, plaatsing op andere sites, advertenties, verveelvoudiging op welke andere wijze dan ook en/of commercieel gebruik van deze informatie (zoals foto’s, plattegronden, teksten, kenmerken etc.), is niet toegestaan, tenzij hiervoor uitdrukkelijk schriftelijke toestemming is verleend door Goessens & Goessens Makelaardij of tenzij aan de onderstaande voorwaarden wordt voldaan. Deze informatie mag worden bekeken , mits de informatie niet wordt gebruikt in een ander werk of publicatie in welk medium dan ook.