Goessens & Goessens Makelaardij gebruikt cookies om de website naar behoren te laten werken, om functies voor social media te bieden en om onze website te analyseren. Op onze website kun je ons Cookiebeleid en Privacybeleid vinden.

Veldje 31, Eijsden

In het hart van het geliefde Eijsden vindt u deze prachtige, ruime en instapklare tussenwoning uit 2017. De woning is modern en energiezuinig, met energielabel A, en biedt een comfortabele leefomgeving met drie royale slaapkamers en een prettig binnenklimaat dankzij de aanwezige airconditioning.

De woning beschikt over een ruime en onderhoudsvriendelijke tuin met achteringang, ideaal voor ontspanning, spelende kinderen of gezellige momenten met familie en vrienden. De ligging is bijzonder gunstig: in een rustige, kindvriendelijke buurt en toch dichtbij alle dagelijkse voorzieningen. Zo zijn de basisschool, het winkelcentrum van Eijsden en diverse winkels en faciliteiten eenvoudig te voet of per fiets bereikbaar.

Deze woning combineert modern comfort met een centrale, praktische ligging en is klaar om direct te betrekken: een ideaal thuis voor gezinnen die ruimte, licht en gemak waarderen.

Nieuw Onder bod

€ 439.000 k.k.

Woningtype
Tussenwoning

Woonoppervlakte
ca. 127m²

Perceeloppervlakte
ca. 163m²

Inhoud
ca. 450m³

Kamers
4

Slaapkamers
3

Bouwjaar
2017

Aanvaarding
In overleg

Omschrijving

Deze woning wordt aangeboden door Goessens & Goessens Makelaardij

-Beschrijving:
In het hart van het geliefde Eijsden vindt u deze prachtige, ruime en instapklare tussenwoning uit 2017. De woning is modern en energiezuinig, met energielabel A, en biedt een comfortabele leefomgeving met drie royale slaapkamers en een prettig binnenklimaat dankzij de aanwezige airconditioning.

De woning beschikt over een ruime en onderhoudsvriendelijke tuin met achteringang, ideaal voor ontspanning, spelende kinderen of gezellige momenten met familie en vrienden. De ligging is bijzonder gunstig: in een rustige, kindvriendelijke buurt en toch dichtbij alle dagelijkse voorzieningen. Zo zijn de basisschool, het winkelcentrum van Eijsden en diverse winkels en faciliteiten eenvoudig te voet of per fiets bereikbaar.

Deze woning combineert modern comfort met een centrale, praktische ligging en is klaar om direct te betrekken: een ideaal thuis voor gezinnen die ruimte, licht en gemak waarderen.

-Indeling:

-Begane grond:
Wat een prachtig welkom biedt deze woning bij binnenkomst in de ruime entree. Hier vindt u de meterkast, de moderne toiletruimte, een praktische bergruimte en de toegang tot de lichte woonkamer met open keuken. Vanuit de entree bereikt u tevens de trap naar de eerste verdieping.

De bergruimte is ideaal voor het opbergen van huishoudelijke spullen en herbergt de cv-installatie (Intergas, 2017, eigendom). De moderne toiletruimte is netjes afgewerkt en voorzien van een hangcloset en een fonteintje.

De woonkamer met open keuken beslaat gezamenlijk ca. 45 m² en biedt een zee aan licht dankzij de grote raampartijen aan zowel de voor- als achterzijde. De ruimte is voorzien van een fraaie pvc-vloer en comfortabele vloerverwarming over de gehele begane grond, waardoor het geheel een warme en sfeervolle uitstraling heeft. Via de grote deur aan de achterzijde is er direct contact met de tuin, wat zorgt voor een prettige binnen-buitenbeleving. Een handige trappenkast biedt extra opbergruimte voor voorraden of huishoudelijke artikelen.

De moderne L-vormige keuken, gesitueerd aan de voorzijde van de woning, is voorzien van hoogwaardige inbouwapparatuur van Siemens, waaronder een inductiekookplaat, afzuiging, oven, koelkast, vriezer en vaatwasser. Met de ruime werkbladen en kastopstellingen is deze keuken zowel praktisch als stijlvol.

-Eerste verdieping:
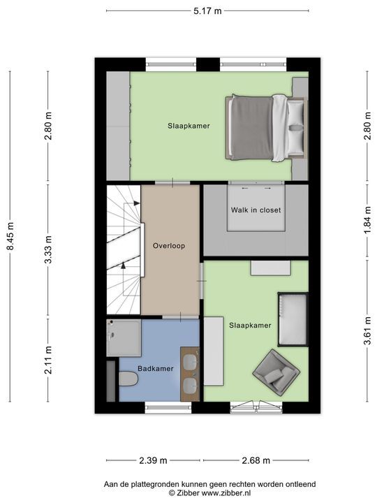
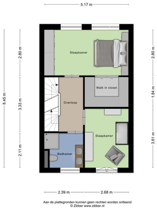
Via de trap in de entree komt u op de overloop van de eerste verdieping, die toegang biedt tot twee slaapkamers en de badkamer. Hier bevindt zich ook de vaste trap naar de tweede verdieping.
• Slaapkamer 1: Deze royale kamer van ca. 14,5 m² is voorzien van airconditioning en een aangrenzende inloopkast, ideaal voor het opbergen van kleding en accessoires.
• Slaapkamer 2: Deze comfortabele slaapkamer van ca. 10 m² beschikt over openslaande deuren naar een Frans balkon, waardoor er een fijne lichtinval en ventilatie is.
• Badkamer: De volledig betegelde badkamer van ca. 5 m² is uitgerust met een douchecabine, een wastafelmeubel met dubbele wasbak en een hangcloset, waardoor comfort en functionaliteit hand in hand gaan.

-Tweede verdieping:
Via een vaste trap op de eerste verdieping heeft u toegang tot de tweede verdieping, waar zich de riante derde slaapkamer bevindt.
• Slaapkamer 3: Deze riante slaapkamer is ca. 29 m² groot. Deze ruimte is voorzien van een groot dakkapel, wat zorgt voor extra licht en een ruimtelijk gevoel. Hier bevinden zich tevens de witgoedaansluitingen en veel bergruimte in de schuine delen van het dak, waardoor de kamer zeer praktisch is voor diverse woonfuncties.

-Tuin:
De woning beschikt over een fraai aangelegde, onderhoudsvriendelijke achtertuin, bereikbaar vanuit de woonkamer en via de achteringang. De volledig omheinde tuin biedt privacy en is ingericht met een ruim terras, een klein gazon en diverse borders, maar kan naar eigen wens verder worden ingericht. Achter in de tuin bevindt zich een praktische berging van ca. 6 m², ideaal voor fietsen, tuingereedschap of andere materialen.

Deze woning combineert een moderne, lichte woonbeleving met veel comfort, praktische indeling en een zonnige buitenruimte: een perfecte plek om direct te betrekken.

-Nadere bijzonderheden:
• Type woning: Instapklare en energiezuinige tussenwoning met onderhoudsvriendelijke achtertuin, gelegen in het hart van Eijsden dichtbij voorzieningen.
• Kozijnen: Houten kozijnen en HR-beglazing.
• Centrale verwarming: HR cv-ketel (Intergas, 2017, Eigendom).
• Vloerverwarming: De gehele begane grond is voorzien van vloerverwarming.
• Energielabel: A.
• Alle vermelde afmetingen zijn indicatief en kunnen afwijken van de werkelijkheid.

-Omgeving:
Deze woning bevindt zich in het geliefde Eijsden, op een uiterst praktische locatie. Alle voorzieningen zijn binnen handbereik: winkelcentrum met o.a. een supermarkt en drogist, op slechts 10 minuten loopafstand. Scholen, een treinstation en busverbindingen zijn ook op loopafstand. Daarnaast kunt u genieten van de gezellige terrasjes en sfeervolle eetcafés langs de Maas. Het bruisende centrum van Maastricht, het MUMC+ en de Universiteit Maastricht (UM) liggen op slechts 15 minuten rijden. Bovendien biedt Eijsden uitstekende verbindingen: een directe treinverbinding naar Maastricht en Luik, en een goede busverbinding naar Maastricht. Eijsden staat ook bekend om haar rijke tradities, zoals de jaarlijkse “Broonk”, een feestelijke gelegenheid om de hartelijke dorpsgemeenschap beter te leren kennen. Deze combinatie van bereikbaarheid, voorzieningen en gezelligheid maakt deze locatie uniek.

Voor meer verkoopinformatie, onze disclaimer en de verkoopvoorwaarden verwijzen wij u graag naar onze website: goessens-makelaardij.nl. Deze presentatie is met de grootste zorg samengesteld door Goessens & Goessens Makelaardij. Ondanks onze inspanningen aanvaarden wij geen enkele aansprakelijkheid voor eventuele onvolledigheden, onjuistheden of de gevolgen hiervan. Alle vermelde maten en oppervlakten zijn indicatief. Wij streven ernaar om u zo zorgvuldig mogelijk te informeren op basis van de beschikbare gegevens. Deze presentatie dient echter uitsluitend ter indicatie. Voor meer details of aanvullende informatie staan wij uiteraard graag voor u klaar.

Reageren op deze woning?

Bent u enthousiast geworden na het lezen van deze woningpresentatie en wilt u vrijblijvend meer informatie over deze woning ontvangen? Of wilt een bezichtiging aanvragen? Vul onderstaand contactformulier in en wij nemen z.s.m. contact met u op.

Uw bericht is naar ons verzonden. Wij nemen zo snel mogelijk contact met u op.

Sorry, we kunnen helaas niet met zekerheid vaststellen of je een mens of een geautomatiseerde bot/spammer bent. Hierdoor kunnen we het formulier dat je hebt ingevuld niet verzenden. Probeer het opnieuw of neem direct contact op met de makelaar via e-mail.

Er is iets mis gegaan met het versturen van het formulier.
Controleer of u alle velden (goed) heeft ingevoerd en probeer het nog een keer.

U zult automatisch een kopie van dit ingevuld contactformulier ontvangen op het door u ingevulde e-mailadres.

Wij vragen alleen uw gegevens die nodig zijn voor het beantwoorden van uw verzoek. Voor meer informatie verwijzen wij u naar onze privacyverklaring op onze website. Bij het versturen van dit formulier gaat u hiermee akkoord.

recaptcha
reCAPTCHA
PrivacyTerms

Heeft u liever dat wij u terugbellen?

Laat uw telefoonnummer achter en wij bellen u zo spoedig mogelijk terug.

Uw bericht is naar ons verzonden. Wij nemen zo snel mogelijk contact met u op.

Sorry, we kunnen helaas niet met zekerheid vaststellen of je een mens of een geautomatiseerde bot/spammer bent. Hierdoor kunnen we het formulier dat je hebt ingevuld niet verzenden. Probeer het opnieuw of neem direct contact op met de makelaar via e-mail.

Er is iets mis gegaan met het versturen van het formulier.
Controleer of u alle velden (goed) heeft ingevoerd en probeer het nog een keer.

recaptcha
reCAPTCHA
PrivacyTerms

Uw woning verkopen?

Wanneer u overweegt om uw huis te verkopen, vraag dan een vrijblijvend adviesgesprek en een waardebepaling aan. Wij maken graag een afspraak met u!

Gratis adviesgesprek

Locatie

[ { "lat": 50.775616, "lng": 5.7083162, "heading": 0, "pitch": 0 } ]

Kenmerken

Aanvaarding

Prijs
€ 439.000 k.k.
Status
Onder bod
Oplevering
In overleg
Adres
Veldje 31
Postcode
6245 CT
Plaats
Eijsden

Bouw

Soort woonhuis
Eengezinswoning, Tussenwoning
Soort bouw
Bestaande bouw
Bouwjaar
2017

Oppervlakten en inhoud

Woonoppervlakte
ca. 127m²
Perceeloppervlakte
ca. 163m²
Inhoud
ca. 450m³

Indeling

Aantal kamers
4
Aantal slaapkamers
3
Aantal badkamers
1
Aantal verdiepingen
3
Voorzieningen
Airconditioning, Natuurlijke ventilatie

Energie

Energielabel
A
Warm water
C.V.-ketel
Verwarming
C.V.-ketel, Vloerverwarming gedeeltelijk
Ketel
Intergas (2017, Combi-ketel, Eigendom)

Buitenruimte

Ligging
Aan rustige weg
Tuin
Tuin rondom

Schriftelijkheidsvereiste:

Ter bescherming van de belangen van zowel koper als verkoper, wordt uitdrukkelijk gesteld dat een koopovereenkomst met betrekking tot deze onroerende zaak eerst dan tot stand komt nadat koper en verkoper beide de koopovereenkomst hebben getekend ("schriftelijkheidsvereiste"). Dit betekent dat een bevestiging van de afspraken per e-mail, of een toegestuurd concept van de koopovereenkomst, hier niet onder vallen

Waarborgsom/bankgarantie:

De waarborgsom/bankgarantie is 10% van de koopsom. De koper dient deze uiterlijk 1 week na het vervallen van de ontbindende voorwaarden bij de desbetreffende notaris te deponeren.

Bouwkundige keuring:

Koper is te allen tijde gerechtigd voor eigen rekening een bouwkundige keuring te (laten) verrichten dan wel andere adviseurs te raadplegen teneinde een goed inzicht te verkrijgen over de staat van de woning. De beoordeling van de woning zoals omschreven in bovenstaande presentatie en de brochure is gebaseerd op visuele waarneming, de leeftijd van de woning, en de informatie die verkregen is van de verkoper(s). Een bouwkundige rapportage valt nadrukkelijk buiten de informatie van deze websitepresentatie.

Aansprakelijkheid:

Deze websitepresentatie is door ons Goessens & Goessens Makelaardij met de nodige zorgvuldigheid samengesteld. Onzerzijds wordt echter geen enkele aansprakelijkheid aanvaard voor enige onvolledigheid, onjuist of anderszins, dan wel de gevolgen daarvan. Alle opgegeven maten en oppervlakten zijn indicatief. Deze websitepresentatie is slechts indicatief. Alle vermelden maten zijn circa maten. Er is nagestreefd naar een zo zorgvuldig mogelijke informatie van de ter beschikking staande gegevens. De verkoper heeft een mededelingsplicht inzake zaken die hem bekend zijn van het onroerend goed. De potentiele koper heeft een onderzoek plicht inzake de voor hem van belang zijnde gegevens van het onroerend goed.

Onderzoek plicht koper:

De informatie tijdens de rondleiding en in de websitepresentatie en overig informatiemateriaal is verkregen van de verkoper van de woning en is bedoeld om de koper te informeren. In het Burgerlijk Wetboek staat opgenomen dat op de koper van een woning een onderzoek plicht rust. Onder de onderzoeksplicht vallen bouwkundige gebreken/staat van de woning en publiekrechtelijke openbare informatie (zoals verkeers- /bestemmingsplannen). Een bouwkundige keuring geeft hier duidelijkheid over.

Copyright ©:

Gehele of gedeeltelijke overname, plaatsing op andere sites, advertenties, verveelvoudiging op welke andere wijze dan ook en/of commercieel gebruik van deze informatie (zoals foto’s, plattegronden, teksten, kenmerken etc.), is niet toegestaan, tenzij hiervoor uitdrukkelijk schriftelijke toestemming is verleend door Goessens & Goessens Makelaardij of tenzij aan de onderstaande voorwaarden wordt voldaan. Deze informatie mag worden bekeken , mits de informatie niet wordt gebruikt in een ander werk of publicatie in welk medium dan ook.