Goessens & Goessens Makelaardij gebruikt cookies om de website naar behoren te laten werken, om functies voor social media te bieden en om onze website te analyseren. Op onze website kun je ons Cookiebeleid en Privacybeleid vinden.

St. Rémy 24, Eijsden

In de jonge, groene en kindvriendelijke wijk Nieuw Poelveld in Eijsden staat deze moderne twee-onder-een-kapwoning uit 2017 te koop. Een woning die direct instap klaar is, waar stijl, comfort en functionaliteit perfect samenkomen. Met vier ruime slaapkamers, een royale garage met oprit, een fraai aangelegde tuin, energielabel A en maar liefst 8 zonnepanelen biedt deze woning alles wat een modern gezin zich kan wensen. Een ideale gezinswoning die klaar is voor de toekomst.

Bij de bouw is veel aandacht besteed aan comfort en energie-efficiëntie. De woning is uitstekend geïsoleerd, voorzien van vloerverwarming op de begane grond en eerste verdieping, én uitgerust met airconditioning. Hierdoor is het binnen altijd aangenaam vertoeven, ongeacht het seizoen, en blijft het energieverbruik laag.

Ook de ligging van de woning is zeer gunstig. De woning ligt in een rustige straat, op loop- en fietsafstand van diverse basisscholen, lokale winkels en het winkelcentrum van Eijsden. Het bruisende centrum van Maastricht, het MUMC+ en de Universiteit Maastricht zijn binnen tien autominuten bereikbaar, waardoor zowel werk als vrije tijd perfect te combineren zijn.

Nieuw Verkocht onder voorbehoud

€ 539.000 k.k.

Woningtype
Geschakelde 2-onder-1-kapwoning

Woonoppervlakte
ca. 132m²

Perceeloppervlakte
ca. 255m²

Inhoud
ca. 527m³

Kamers
5

Slaapkamers
4

Bouwjaar
2017

Aanvaarding
In overleg

Omschrijving

DEZE WONING WORDT AANGEBODEN DOOR GOESSENS & GOESSENS MAKELAARDIJ.

-Beschrijving:
In de jonge, groene en kindvriendelijke wijk Nieuw Poelveld in Eijsden staat deze moderne twee-onder-een-kapwoning uit 2017 te koop. Een woning die direct instap klaar is, waar stijl, comfort en functionaliteit perfect samenkomen. Met vier ruime slaapkamers, een royale garage met oprit, een fraai aangelegde tuin, energielabel A en maar liefst 8 zonnepanelen biedt deze woning alles wat een modern gezin zich kan wensen. Een ideale gezinswoning die klaar is voor de toekomst.
Bij de bouw is veel aandacht besteed aan comfort en energie-efficiëntie. De woning is uitstekend geïsoleerd, voorzien van vloerverwarming op de begane grond en eerste verdieping, én uitgerust met airconditioning. Hierdoor is het binnen altijd aangenaam vertoeven, ongeacht het seizoen, en blijft het energieverbruik laag.

Ook de ligging van de woning is zeer gunstig. De woning ligt in een rustige straat, op loop- en fietsafstand van diverse basisscholen, lokale winkels en het winkelcentrum van Eijsden. Het bruisende centrum van Maastricht, het MUMC+ en de Universiteit Maastricht zijn binnen tien autominuten bereikbaar, waardoor zowel werk als vrije tijd perfect te combineren zijn.

-Indeling:

-Begane grond:
Via de verzorgde oprit bereikt u de entree van de woning (ca. 8 m²), die meteen een prettige indruk maakt. De lichte hal is afgewerkt met een stijlvolle laminaatvloer en biedt toegang tot de toiletruimte, de meterkast, de trapopgang, een praktische kastruimte en de royale woonkamer met open keuken. De moderne toiletruimte is deels betegeld en voorzien van een hangcloset en een elegant fonteintje.

Bij binnenkomst in de woonkamer valt direct de ruimtelijkheid op. Deze leefruimte van ca. 47 m² is bijzonder licht dankzij de grote raampartijen aan de voorzijde en de openslaande deuren aan de achterzijde, die toegang geven tot de tuin. De laminaatvloer loopt door over de gehele begane grond en wordt gecombineerd met comfortabele vloerverwarming. Daarnaast beschikt de woonkamer over een airconditioning voor extra comfort. Een praktische trapkast biedt bovendien voldoende bergruimte.

De open keuken, gesitueerd aan de voorzijde van de woning in een L-opstelling, is modern en strak afgewerkt met witte, greep loze fronten. De keuken is uitgerust met een oven, combi-oven, 5-pits gasfornuis, afzuigkap, vaatwasser en koelkast, waardoor koken en dineren een plezierige ervaring wordt.

-Eerste verdieping:
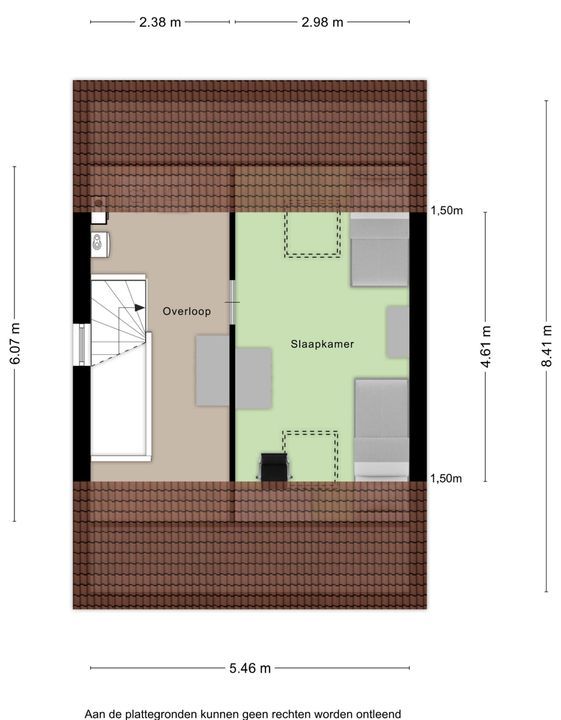
Via de trap in de entree bereikt u de overloop op de eerste verdieping, die toegang biedt tot drie slaapkamers, de badkamer en de vaste trap naar de tweede verdieping. Ook deze verdieping is voorzien van een lichte pvc-vloer en comfortabele vloerverwarming.
• Slaapkamer 1: Deze masterbedroom is ca. 16 m² groot.
• Slaapkamer 2: Deze comfortabele slaapkamer is ca. 10 m² groot.
• Slaapkamer 3: Deze slaapkamer is ca. 6 m² groot. Ook ideaal te gebruiken als logeerkamer of walk-incloset.
• Badkamer: De moderne, betegelde badkamer is ca. 6 m² groot en voorzien van een inloopdouche, een wastafelmeubel, een hangcloset en een handdoekradiator.

-Tweede verdieping:
Middels de vaste trap bereikt u de overloop op de tweede verdieping (ca. 14 m²), waar de vierde slaapkamer, de witgoedaansluiting en de cv-ketel (Eigendom, Intergas, 2017) zijn gesitueerd. Ook op deze verdieping is een airconditioning en vloerverwarming aanwezig. Verkoper heeft deze verdieping gerenoveerd en gesplitst.
• Slaapkamer 4: Deze ruime slaapkamer is ca. 18 m² groot en ideaal voor tieners, een kantoor aan huis of als extra logeerkamer.

-Tuin:
De achtertuin is met zorg aangelegd en vormt een heerlijke, privacy volle buitenruimte. Toegang is mogelijk via zowel de woonkamer, als de garage. De tuin combineert een ruim terras met een groen gazon en biedt volop mogelijkheden om deze naar eigen wens in te richten. Hier geniet u van zon, rust en privacy, een perfecte plek voor gezinnen en gezellige buitenmomenten.

-Garage:
De woning beschikt over een ruime garage van ca. 17 m², bereikbaar via een handmatig bedienbare kantelpoort (met deur) aan de oprit en via een deur in de tuin. De garage is groot genoeg voor het parkeren van een auto, het stallen van fietsen of het creëren van extra opslagruimte.

-Nadere bijzonderheden:
• Instapklare, twee-onder-een-kapwoning uit 2017 met ruime garage en oprit, vier slaapkamers en energielabel A op een kindvriendelijke locatie in Nieuw Poelveld.
• Kozijnen: Houten kozijnen met HR ++ beglazing.
• Centrale verwarming: HR combi-ketel (Eigendom, Intergas, 2017).
• Energielabel: A
• Zonnepanelen: 8 zonnepanelen in eigendom (2017).
• Vloerverwarming aanwezig op alle verdiepingen.
• Alle vermelde afmetingen zijn indicatief en kunnen afwijken van de werkelijkheid.

-Omgeving:
Deze woning ligt in Eijsden, in de nieuwbouw wijk; Nieuw Poelveld. Eijsden is een forensengemeente gelegen vlakbij de Maas. Een sfeervolle plaats met een oude historische kern gelegen bij de Diepstraat met gezellige terrasjes, eetcafés, winkels en winkelcentrum. Alle verdere voorzieningen scholen, sportvoorzieningen e.d. zijn in ruime maten in de directe nabijheid aanwezig. Gunstig gelegen t.o.v. diverse uitvalswegen: Maastricht centrum, MUMC+ , en Universiteit zijn op 15 minuten te bereiken. Eijsden is voorzien van een goede busverbinding met Maastricht en treinverbinding met Maastricht en Luik. Traditioneel zijn er jaarlijkse festiviteiten zoals de jaarlijkse “Broonk”, een goed moment om de bevolking van Eijsden te leren kennen.

Graag verwijzen wij u naar onze website goessens-makelaardij.nl, waar meer verkoopinformatie, onze disclaimer en de verkoopvoorwaarden te vinden zijn. Deze presentatie is door Goessens & Goessens Makelaardij met de nodige zorg samengesteld. Onzerzijds wordt echter geen enkele aansprakelijkheid aanvaard voor enige onvolledigheid, onjuist of anderszins, dan wel de gevolgen daarvan. Alle opgegeven maten en oppervlakten zijn indicatief. Deze presentatie is slechts indicatief. Er is nagestreefd naar een zo zorgvuldig mogelijke informatie van de ter beschikking staande gegevens.

Reageren op deze woning?

Bent u enthousiast geworden na het lezen van deze woningpresentatie en wilt u vrijblijvend meer informatie over deze woning ontvangen? Of wilt een bezichtiging aanvragen? Vul onderstaand contactformulier in en wij nemen z.s.m. contact met u op.

Uw bericht is naar ons verzonden. Wij nemen zo snel mogelijk contact met u op.

Sorry, we kunnen helaas niet met zekerheid vaststellen of je een mens of een geautomatiseerde bot/spammer bent. Hierdoor kunnen we het formulier dat je hebt ingevuld niet verzenden. Probeer het opnieuw of neem direct contact op met de makelaar via e-mail.

Er is iets mis gegaan met het versturen van het formulier.
Controleer of u alle velden (goed) heeft ingevoerd en probeer het nog een keer.

U zult automatisch een kopie van dit ingevuld contactformulier ontvangen op het door u ingevulde e-mailadres.

Wij vragen alleen uw gegevens die nodig zijn voor het beantwoorden van uw verzoek. Voor meer informatie verwijzen wij u naar onze privacyverklaring op onze website. Bij het versturen van dit formulier gaat u hiermee akkoord.

recaptcha
reCAPTCHA
PrivacyTerms

Heeft u liever dat wij u terugbellen?

Laat uw telefoonnummer achter en wij bellen u zo spoedig mogelijk terug.

Uw bericht is naar ons verzonden. Wij nemen zo snel mogelijk contact met u op.

Sorry, we kunnen helaas niet met zekerheid vaststellen of je een mens of een geautomatiseerde bot/spammer bent. Hierdoor kunnen we het formulier dat je hebt ingevuld niet verzenden. Probeer het opnieuw of neem direct contact op met de makelaar via e-mail.

Er is iets mis gegaan met het versturen van het formulier.
Controleer of u alle velden (goed) heeft ingevoerd en probeer het nog een keer.

recaptcha
reCAPTCHA
PrivacyTerms

Uw woning verkopen?

Wanneer u overweegt om uw huis te verkopen, vraag dan een vrijblijvend adviesgesprek en een waardebepaling aan. Wij maken graag een afspraak met u!

Gratis adviesgesprek

Locatie

[ { "lat": 50.7771162, "lng": 5.7170263, "heading": 0, "pitch": 0 } ]

Kenmerken

Aanvaarding

Prijs
€ 539.000 k.k.
Status
Verkocht onder voorbehoud
Oplevering
In overleg
Adres
St. Rémy 24
Postcode
6245 RC
Plaats
Eijsden

Bouw

Soort woonhuis
Eengezinswoning, Geschakelde 2-onder-1-kapwoning
Soort bouw
Bestaande bouw
Bouwjaar
2017

Oppervlakten en inhoud

Woonoppervlakte
ca. 132m²
Perceeloppervlakte
ca. 255m²
Overig oppervlakte
ca. 17m²
Inhoud
ca. 527m³

Indeling

Aantal kamers
5
Aantal slaapkamers
4
Aantal badkamers
1
Aantal verdiepingen
3
Voorzieningen
Balansventilatie

Energie

Energielabel
A
Warm water
C.V.-ketel
Verwarming
C.V.-ketel
Ketel
(2017, Eigendom)

Buitenruimte

Ligging
Aan rustige weg
Tuin
Tuin rondom

Garage

Soort garage
Aangebouwd steen
Capaciteit
1

Schriftelijkheidsvereiste:

Ter bescherming van de belangen van zowel koper als verkoper, wordt uitdrukkelijk gesteld dat een koopovereenkomst met betrekking tot deze onroerende zaak eerst dan tot stand komt nadat koper en verkoper beide de koopovereenkomst hebben getekend ("schriftelijkheidsvereiste"). Dit betekent dat een bevestiging van de afspraken per e-mail, of een toegestuurd concept van de koopovereenkomst, hier niet onder vallen

Waarborgsom/bankgarantie:

De waarborgsom/bankgarantie is 10% van de koopsom. De koper dient deze uiterlijk 1 week na het vervallen van de ontbindende voorwaarden bij de desbetreffende notaris te deponeren.

Bouwkundige keuring:

Koper is te allen tijde gerechtigd voor eigen rekening een bouwkundige keuring te (laten) verrichten dan wel andere adviseurs te raadplegen teneinde een goed inzicht te verkrijgen over de staat van de woning. De beoordeling van de woning zoals omschreven in bovenstaande presentatie en de brochure is gebaseerd op visuele waarneming, de leeftijd van de woning, en de informatie die verkregen is van de verkoper(s). Een bouwkundige rapportage valt nadrukkelijk buiten de informatie van deze websitepresentatie.

Aansprakelijkheid:

Deze websitepresentatie is door ons Goessens & Goessens Makelaardij met de nodige zorgvuldigheid samengesteld. Onzerzijds wordt echter geen enkele aansprakelijkheid aanvaard voor enige onvolledigheid, onjuist of anderszins, dan wel de gevolgen daarvan. Alle opgegeven maten en oppervlakten zijn indicatief. Deze websitepresentatie is slechts indicatief. Alle vermelden maten zijn circa maten. Er is nagestreefd naar een zo zorgvuldig mogelijke informatie van de ter beschikking staande gegevens. De verkoper heeft een mededelingsplicht inzake zaken die hem bekend zijn van het onroerend goed. De potentiele koper heeft een onderzoek plicht inzake de voor hem van belang zijnde gegevens van het onroerend goed.

Onderzoek plicht koper:

De informatie tijdens de rondleiding en in de websitepresentatie en overig informatiemateriaal is verkregen van de verkoper van de woning en is bedoeld om de koper te informeren. In het Burgerlijk Wetboek staat opgenomen dat op de koper van een woning een onderzoek plicht rust. Onder de onderzoeksplicht vallen bouwkundige gebreken/staat van de woning en publiekrechtelijke openbare informatie (zoals verkeers- /bestemmingsplannen). Een bouwkundige keuring geeft hier duidelijkheid over.

Copyright ©:

Gehele of gedeeltelijke overname, plaatsing op andere sites, advertenties, verveelvoudiging op welke andere wijze dan ook en/of commercieel gebruik van deze informatie (zoals foto’s, plattegronden, teksten, kenmerken etc.), is niet toegestaan, tenzij hiervoor uitdrukkelijk schriftelijke toestemming is verleend door Goessens & Goessens Makelaardij of tenzij aan de onderstaande voorwaarden wordt voldaan. Deze informatie mag worden bekeken , mits de informatie niet wordt gebruikt in een ander werk of publicatie in welk medium dan ook.