Goessens & Goessens Makelaardij gebruikt cookies om de website naar behoren te laten werken, om functies voor social media te bieden en om onze website te analyseren. Op onze website kun je ons Cookiebeleid en Privacybeleid vinden.

Schoolstraat 37, Eijsden

In een rustige en geliefde straat in het centrum van Eijsden mogen wij deze ruime, uitstekend onderhouden en instapklare twee-onder-een-kapwoning met eigen oprit presenteren. De woning beschikt over drie comfortabele slaapkamers, een royale bijkeuken én een extra multifunctionele ruimte, ideaal als werk-, hobby- of speelruimte. De onderhoudsvriendelijke tuin biedt meerdere overdekte zitplekken, waardoor u hier het hele jaar door optimaal kunt genieten.

Dankzij het energielabel A en de moderne afwerking is dit een comfortabele, duurzame en toekomstbestendige gezinswoning, gelegen op een zeer aantrekkelijke locatie in het hart van Eijsden, op loopafstand van de populaire Diepstraat.

De ligging is bijzonder gunstig: in de directe nabijheid van diverse eetgelegenheden, bakker en slager. Daarnaast zijn zowel het centrum van Maastricht, het MUMC+ als de Universiteit Maastricht binnen circa 15 autominuten bereikbaar. U woont hier rustig, met alle dagelijkse voorzieningen en uitstekende verbindingen binnen handbereik.

Nieuw

€ 489.000 k.k.

Woningtype
2-onder-1-kapwoning

Woonoppervlakte
ca. 137m²

Perceeloppervlakte
ca. 367m²

Inhoud
ca. 545m³

Kamers
4

Slaapkamers
3

Bouwjaar
1966

Aanvaarding
In overleg

Omschrijving

Deze woning wordt aangeboden door Goessens & Goessens Makelaardij

-Beschrijving:
In een rustige en geliefde straat in het centrum van Eijsden mogen wij deze ruime, uitstekend onderhouden en instapklare twee-onder-een-kapwoning met eigen oprit presenteren. De woning beschikt over drie comfortabele slaapkamers, een royale bijkeuken én een extra multifunctionele ruimte, ideaal als werk-, hobby- of speelruimte. De onderhoudsvriendelijke tuin biedt meerdere overdekte zitplekken, waardoor u hier het hele jaar door optimaal kunt genieten.

Dankzij het energielabel A en de moderne afwerking is dit een comfortabele, duurzame en toekomstbestendige gezinswoning, gelegen op een zeer aantrekkelijke locatie in het hart van Eijsden, op loopafstand van de populaire Diepstraat.

De ligging is bijzonder gunstig: in de directe nabijheid van diverse eetgelegenheden, bakker en slager. Daarnaast zijn zowel het centrum van Maastricht, het MUMC+ als de Universiteit Maastricht binnen circa 15 autominuten bereikbaar. U woont hier rustig, met alle dagelijkse voorzieningen en uitstekende verbindingen binnen handbereik.

-Indeling:

-Kelder:
Praktische provisiekelder van circa 9 m², ideaal voor het opslaan van voorraad, seizoensspullen en overige huishoudelijke zaken. Een functionele extra die bijdraagt aan het dagelijks wooncomfort.

-Begane grond:
Via de entree betreedt u de ruime en lichte ontvangsthal, verzorgd afgewerkt met een stijlvolle PVC-vloer. Vanuit de hal heeft u toegang tot de meterkast, de moderne toiletruimte met hangcloset en fonteintje, de woonkamer met open keuken en de trapopgangen naar zowel de eerste verdieping als de kelder.

Via een stijlvolle zwartstalen deur bereikt u de royale woonkamer met open keuken, samen goed voor circa 55 m² aan leefruimte. Een warmgekleurde parketvloer zorgt voor een sfeervolle uitstraling, terwijl de grote raampartijen aan de voorzijde en de schuifdeuren aan de achterzijde zorgen voor een uitstekende lichtinval. De centraal geplaatste houtkachel vormt een echte blikvanger.

De moderne open keuken aan de achterzijde is uitgevoerd in een praktische L-opstelling met witte greeploze fronten en een zwart natuurstenen werkblad. De keuken beschikt over diverse inbouwapparatuur, waaronder een 5-pits gasfornuis, afzuiging, combi-oven, vaatwasser en koelkast. De combinatie van veel werk- en bergruimte met een strak design maakt de keuken zowel praktisch als eigentijds.
Aangrenzend bevindt zich de ruime bijkeuken van circa 12 m², gesitueerd in de garage. Deze ruimte is voorzien van een tegelvloer, witgoedaansluitingen en veel praktische opbergmogelijkheden. Daarnaast beschikt de bijkeuken over een keukenblok met spoelbak en extra kastruimte. Vanuit de bijkeuken bereikt u een extra kamer die geschikt is als kantoorruimte of berging, evenals een separate bergruimte aan de voorzijde van de voormalige garage, ideaal voor fietsen of opslag. Tevens heeft u vanuit de bijkeuken toegang tot de tuin, wat de ruimte multifunctioneel en bijzonder praktisch maakt.

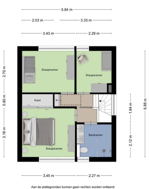
-Eerste verdieping:
De overloop geeft toegang tot drie slaapkamers en de moderne badkamer. De PVC-vloer vanuit de hal op de begane grond is doorgetrokken naar deze verdieping, die bovendien is voorzien van airconditioning.
• Slaapkamer 1: Deze ruime en prettig ingedeelde slaapkamer is ca. 11 m² groot.
• Slaapkamer 2: Deze comfortabele slaapkamer is ca. 9,5 m² groot.
• Slaapkamer 3: Deze slaapkamer is ca. 6 m² groot.
• Badkamer: Volledig vernieuwd in 2023, circa 5 m² groot en voorzien van een ruime inloopdouche met regendouche, een wastafelmeubel met dubbele wastafel, hangcloset en elektrische vloerverwarming.

-Tweede verdieping:
Via een vlizotrap bereikt u de zolderverdieping met een vloeroppervlakte van circa 48 m². Door de beperkte nokhoogte is deze verdieping uitsluitend geschikt als bergzolder.

-Tuin:
De ruime en volledig omheinde tuin is bereikbaar vanuit zowel de woonkamer als de bijkeuken. De tuin is verzorgd aangelegd met een combinatie van terras, gazon en plantenborders en biedt een prettige balans tussen groen en onderhoudsgemak. Meerdere overdekte zitplekken zorgen ervoor dat u het hele jaar door comfortabel buiten kunt verblijven. Direct aan de woning bevindt zich een overkapping en achter in de tuin is een extra overdekte zithoek gerealiseerd, waar de verlichting bedienbaar is via een app. Daarnaast is er een praktische berging aanwezig, ideaal voor extra koel- en vriesapparatuur of het opbergen van seizoensspullen.

-Nadere bijzonderheden:
• Type woning: Ruime en moderne twee-onder-een-kapwoning met eigen oprit, drie slaapkamers en energielabel A, gelegen op een rustige locatie, tussen de Breusterstraat en de Diepstraat in Eijsden.
• Kozijnen: Kunststof en houten kozijnen met HR++ beglazing.
• Centrale verwarming: cv-ketel (Eigendom, Nefit, 2023).
• Zonnepanelen: 20 zonnepanelen (Koop op afbetaling gemeenteproject Subsidie Eijsden-Margraten, 2019)
• Energielabel: A.
• Alle vermelde afmetingen zijn indicatief en kunnen afwijken van de werkelijkheid.

-Omgeving:
Deze woning bevindt zich in het geliefde Eijsden, op een uiterst praktische locatie. Alle voorzieningen zijn binnen handbereik: Slager, eetgelegenheden en winkelcentrum met o.a. een supermarkt en drogist, op slechts een paar minuten loopafstand. Busverbindingen zijn ook op loopafstand. Daarnaast kunt u genieten van de gezellige terrasjes en sfeervolle eetcafés langs de Maas. Het bruisende centrum van Maastricht, het MUMC+ en de Universiteit Maastricht (UM) liggen op slechts 15 minuten rijden. Bovendien biedt Eijsden uitstekende verbindingen: een directe treinverbinding naar Maastricht en Luik, en een goede busverbinding naar Maastricht. Eijsden staat ook bekend om haar rijke tradities, zoals de jaarlijkse “Broonk”, een feestelijke gelegenheid om de hartelijke dorpsgemeenschap beter te leren kennen. Deze combinatie van bereikbaarheid, voorzieningen en gezelligheid maakt deze locatie uniek.

Voor meer verkoopinformatie, onze disclaimer en de verkoopvoorwaarden verwijzen wij u graag naar onze website: goessens-makelaardij.nl. Deze presentatie is met de grootste zorg samengesteld door Goessens & Goessens Makelaardij. Ondanks onze inspanningen aanvaarden wij geen enkele aansprakelijkheid voor eventuele onvolledigheden, onjuistheden of de gevolgen hiervan. Alle vermelde maten en oppervlakten zijn indicatief. Wij streven ernaar om u zo zorgvuldig mogelijk te informeren op basis van de beschikbare gegevens. Deze presentatie dient echter uitsluitend ter indicatie. Voor meer details of aanvullende informatie staan wij uiteraard graag voor u klaar.

Reageren op deze woning?

Bent u enthousiast geworden na het lezen van deze woningpresentatie en wilt u vrijblijvend meer informatie over deze woning ontvangen? Of wilt een bezichtiging aanvragen? Vul onderstaand contactformulier in en wij nemen z.s.m. contact met u op.

Uw bericht is naar ons verzonden. Wij nemen zo snel mogelijk contact met u op.

Sorry, we kunnen helaas niet met zekerheid vaststellen of je een mens of een geautomatiseerde bot/spammer bent. Hierdoor kunnen we het formulier dat je hebt ingevuld niet verzenden. Probeer het opnieuw of neem direct contact op met de makelaar via e-mail.

Er is iets mis gegaan met het versturen van het formulier.
Controleer of u alle velden (goed) heeft ingevoerd en probeer het nog een keer.

U zult automatisch een kopie van dit ingevuld contactformulier ontvangen op het door u ingevulde e-mailadres.

Wij vragen alleen uw gegevens die nodig zijn voor het beantwoorden van uw verzoek. Voor meer informatie verwijzen wij u naar onze privacyverklaring op onze website. Bij het versturen van dit formulier gaat u hiermee akkoord.

recaptcha
reCAPTCHA
PrivacyTerms

Heeft u liever dat wij u terugbellen?

Laat uw telefoonnummer achter en wij bellen u zo spoedig mogelijk terug.

Uw bericht is naar ons verzonden. Wij nemen zo snel mogelijk contact met u op.

Sorry, we kunnen helaas niet met zekerheid vaststellen of je een mens of een geautomatiseerde bot/spammer bent. Hierdoor kunnen we het formulier dat je hebt ingevuld niet verzenden. Probeer het opnieuw of neem direct contact op met de makelaar via e-mail.

Er is iets mis gegaan met het versturen van het formulier.
Controleer of u alle velden (goed) heeft ingevoerd en probeer het nog een keer.

recaptcha
reCAPTCHA
PrivacyTerms

Uw woning verkopen?

Wanneer u overweegt om uw huis te verkopen, vraag dan een vrijblijvend adviesgesprek en een waardebepaling aan. Wij maken graag een afspraak met u!

Gratis adviesgesprek

Locatie

[ { "lat": 50.7760419, "lng": 5.7042602, "heading": 0, "pitch": 0 } ]

Kenmerken

Aanvaarding

Prijs
€ 489.000 k.k.
Status
Beschikbaar
Oplevering
In overleg
Adres
Schoolstraat 37
Postcode
6245 CE
Plaats
Eijsden

Bouw

Soort woonhuis
Eengezinswoning, 2-onder-1-kapwoning
Soort bouw
Bestaande bouw
Bouwjaar
1966

Oppervlakten en inhoud

Woonoppervlakte
ca. 137m²
Perceeloppervlakte
ca. 367m²
Overig oppervlakte
ca. 17m²
Inhoud
ca. 545m³

Indeling

Aantal kamers
4
Aantal slaapkamers
3
Aantal badkamers
1
Aantal verdiepingen
4
Voorzieningen
Airconditioning, Natuurlijke ventilatie, Rolluiken, Schuifpui, Zonnepanelen

Energie

Energielabel
A
Isolatie
Dubbel glas
Warm water
C.V.-ketel
Verwarming
C.V.-ketel
Ketel
Nefit (2023, Combi-ketel, Eigendom)

Buitenruimte

Ligging
Aan rustige weg
Tuin
Tuin rondom

Garage

Soort garage
Inpandig
Capaciteit
1
Voorzieningen
Met elektrische deur, Voorzien van elektra

Schriftelijkheidsvereiste:

Ter bescherming van de belangen van zowel koper als verkoper, wordt uitdrukkelijk gesteld dat een koopovereenkomst met betrekking tot deze onroerende zaak eerst dan tot stand komt nadat koper en verkoper beide de koopovereenkomst hebben getekend ("schriftelijkheidsvereiste"). Dit betekent dat een bevestiging van de afspraken per e-mail, of een toegestuurd concept van de koopovereenkomst, hier niet onder vallen

Waarborgsom/bankgarantie:

De waarborgsom/bankgarantie is 10% van de koopsom. De koper dient deze uiterlijk 1 week na het vervallen van de ontbindende voorwaarden bij de desbetreffende notaris te deponeren.

Bouwkundige keuring:

Koper is te allen tijde gerechtigd voor eigen rekening een bouwkundige keuring te (laten) verrichten dan wel andere adviseurs te raadplegen teneinde een goed inzicht te verkrijgen over de staat van de woning. De beoordeling van de woning zoals omschreven in bovenstaande presentatie en de brochure is gebaseerd op visuele waarneming, de leeftijd van de woning, en de informatie die verkregen is van de verkoper(s). Een bouwkundige rapportage valt nadrukkelijk buiten de informatie van deze websitepresentatie.

Aansprakelijkheid:

Deze websitepresentatie is door ons Goessens & Goessens Makelaardij met de nodige zorgvuldigheid samengesteld. Onzerzijds wordt echter geen enkele aansprakelijkheid aanvaard voor enige onvolledigheid, onjuist of anderszins, dan wel de gevolgen daarvan. Alle opgegeven maten en oppervlakten zijn indicatief. Deze websitepresentatie is slechts indicatief. Alle vermelden maten zijn circa maten. Er is nagestreefd naar een zo zorgvuldig mogelijke informatie van de ter beschikking staande gegevens. De verkoper heeft een mededelingsplicht inzake zaken die hem bekend zijn van het onroerend goed. De potentiele koper heeft een onderzoek plicht inzake de voor hem van belang zijnde gegevens van het onroerend goed.

Onderzoek plicht koper:

De informatie tijdens de rondleiding en in de websitepresentatie en overig informatiemateriaal is verkregen van de verkoper van de woning en is bedoeld om de koper te informeren. In het Burgerlijk Wetboek staat opgenomen dat op de koper van een woning een onderzoek plicht rust. Onder de onderzoeksplicht vallen bouwkundige gebreken/staat van de woning en publiekrechtelijke openbare informatie (zoals verkeers- /bestemmingsplannen). Een bouwkundige keuring geeft hier duidelijkheid over.

Copyright ©:

Gehele of gedeeltelijke overname, plaatsing op andere sites, advertenties, verveelvoudiging op welke andere wijze dan ook en/of commercieel gebruik van deze informatie (zoals foto’s, plattegronden, teksten, kenmerken etc.), is niet toegestaan, tenzij hiervoor uitdrukkelijk schriftelijke toestemming is verleend door Goessens & Goessens Makelaardij of tenzij aan de onderstaande voorwaarden wordt voldaan. Deze informatie mag worden bekeken , mits de informatie niet wordt gebruikt in een ander werk of publicatie in welk medium dan ook.