Goessens & Goessens Makelaardij gebruikt cookies om de website naar behoren te laten werken, om functies voor social media te bieden en om onze website te analyseren. Op onze website kun je ons Cookiebeleid en Privacybeleid vinden.

Prins Bernhardstraat 25, Eijsden

Op een rustige en geliefde locatie in Eijsden, in een geliefde straat in het centrum, mogen wij deze ruime, recentelijke gerenoveerde en fraai uitgebouwde twee-onder-een-kapwoning met eigen oprit presenteren. De woning is met veel zorg en oog voor detail vernieuwd en combineert een moderne, eigentijdse uitstraling met een hoog niveau van wooncomfort.

De woning beschikt over drie comfortabele slaapkamers met de mogelijkheid tot het realiseren van een vierde slaapkamer, en is voorzien van energielabel B. De onderhoudsvriendelijke tuin maakt het geheel compleet en zorgt voor optimaal woongenot met minimale inspanning.

Ook de ligging is bijzonder aantrekkelijk. Winkels, scholen en andere dagelijkse voorzieningen bevinden zich op korte loopafstand. Daarnaast zijn het centrum van Maastricht, het MUMC+ en de Universiteit Maastricht binnen circa 15 autominuten bereikbaar. Zo woont u in een rustige, kindvriendelijke omgeving met alle voorzieningen en uitstekende verbindingen binnen handbereik.

Nieuw Onder bod

€ 479.000 k.k.

Woningtype
2-onder-1-kapwoning

Woonoppervlakte
ca. 136m²

Perceeloppervlakte
ca. 228m²

Inhoud
ca. 510m³

Kamers
4

Slaapkamers
3

Bouwjaar
1955

Aanvaarding
In overleg

Omschrijving

Deze woning wordt aangeboden door Goessens & Goessens Makelaardij

-Beschrijving:
Op een rustige en geliefde locatie in Eijsden, in een geliefde straat in het centrum, mogen wij deze ruime, recentelijke gerenoveerde en fraai uitgebouwde twee-onder-een-kapwoning met eigen oprit presenteren. De woning is met veel zorg en oog voor detail vernieuwd en combineert een moderne, eigentijdse uitstraling met een hoog niveau van wooncomfort.

De woning beschikt over drie comfortabele slaapkamers met de mogelijkheid tot het realiseren van een vierde slaapkamer, en is voorzien van energielabel B. De onderhoudsvriendelijke tuin maakt het geheel compleet en zorgt voor optimaal woongenot met minimale inspanning.

Ook de ligging is bijzonder aantrekkelijk. Winkels, scholen en andere dagelijkse voorzieningen bevinden zich op korte loopafstand. Daarnaast zijn het centrum van Maastricht, het MUMC+ en de Universiteit Maastricht binnen circa 15 autominuten bereikbaar. Zo woont u in een rustige, kindvriendelijke omgeving met alle voorzieningen en uitstekende verbindingen binnen handbereik.

-Indeling:

-Kelder:
De woning beschikt over een praktische kelderruimte van circa 8 m². Deze ruimte is uitstekend geschikt voor het plaatsen van een (extra) koelkast of vriezer en biedt daarnaast volop mogelijkheden voor het opslaan van provisie, seizoensspullen of andere huishoudelijke zaken. Een prettige extra die bijdraagt aan het praktische wooncomfort.

-Begane grond:
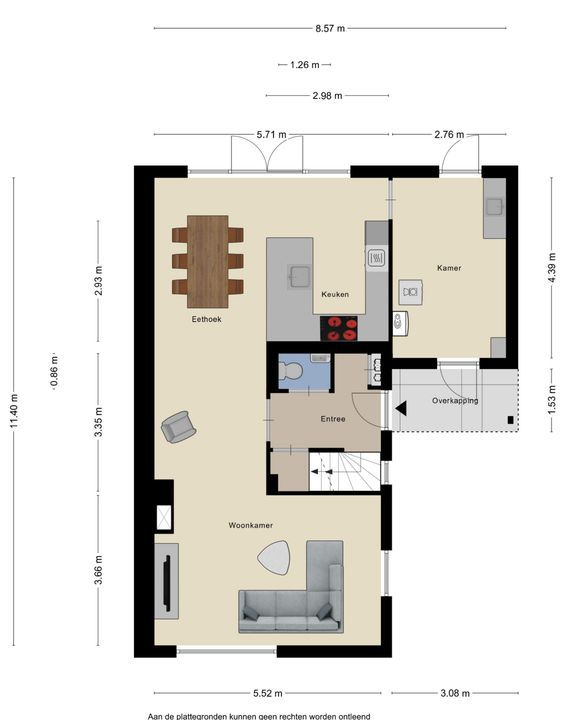
Via de entree betreedt u de woning en valt direct de ruime en lichte ontvangsthal op. De hal is verzorgd afgewerkt en voorzien van een mooie pvc-vloer die direct een warme en eigentijdse uitstraling geeft. Vanuit de entree heeft u toegang tot de meterkast, de moderne toiletruimte, de royale woonkamer met open keuken en de trapopgangen naar zowel de eerste verdieping als de kelder. De gehele begane grond is voorzien van comfortabele vloerverwarming. De toiletruimte is modern uitgevoerd en beschikt over een hangcloset en een fonteintje, uitgevoerd in een stijlvolle afwerking.

Via een fraaie zwartstalen deur bereikt u de royale woonkamer met open keuken, samen goed voor circa 53 m² aan leefruimte. De pvc-vloer uit de entree loopt naadloos door, wat zorgt voor een rustige en ruimtelijke uitstraling. Dankzij de grote raampartijen en openslaande deuren aan zowel de voor- als achterzijde geniet deze leefruimte van een uitstekende lichtinval gedurende de gehele dag. De centraal geplaatste gashaard vormt een echte blikvanger en zorgt niet alleen voor extra warmte, maar ook voor veel sfeer.

De open keuken is gesitueerd aan de achterzijde van de woning en uitgevoerd in een praktische U-opstelling met kookeiland. De in 2021 vernieuwde keuken is modern, hoogwaardig afgewerkt en voorzien van diverse inbouwapparatuur, waaronder een inductiekookplaat, afzuigvoorziening, combi-oven, vaatwasser en koelkast. De royale werk- en opbergruimte maken deze keuken bijzonder functioneel, terwijl het strakke ontwerp zorgt voor een eigentijdse uitstraling. Via de grote deuren is er direct contact met de tuin, wat het buitenleven op een natuurlijke manier bij het wonen betrekt.

Aangrenzend aan de keuken bevindt zich de bijkeuken van circa 12 m², welke in 2021, samen met de uitbouw, geheel nieuw is gebouwd. Deze ruimte is voorzien van een tegelvloer en wordt momenteel gebruikt als wasruimte met witgoedaansluitingen en veel praktische opbergmogelijkheden. Daarnaast beschikt de bijkeuken over een keukenblok met spoelbak, extra kastruimte en de cv-installatie (Vaillant, Eigendom, 2018). Ook vanuit de bijkeuken is de tuin bereikbaar, wat deze ruimte multifunctioneel en bijzonder praktisch maakt.

-Eerste verdieping:
Via de trap in de entree bereikt u de overloop van de eerste verdieping. Hier heeft u toegang tot drie slaapkamers, de badkamer en een separate toiletruimte. Deze verdieping is voorzien van een mooie laminaatvloer.
• Slaapkamer 1: Deze ruime en prettig ingedeelde slaapkamer is ca. 11 m² groot.
• Slaapkamer 2: Deze comfortabele slaapkamer is ca. 10 m² groot.
• Slaapkamer 3: Deze slaapkamer is ca. 7 m² groot en wordt momenteel gebruikt als inloopkast. Hier bevindt zich tevens de vaste trap naar de zolderverdieping.
• Badkamer: De moderne, betegelde badkamer (ca. 5,5 m²) is volledig vernieuwd in 2021 en uitgerust met een inloopdouche met regendouche en een wastafelmeubel met dubbele wastafel. Tevens is de badkamer voorzien van elektrische vloerverwarming.
• Separaat toilet: De moderne toiletruimte is voorzien van een hangcloset.

-Tweede verdieping:
Via de vaste trap bereikt u de zolderverdieping met een vloeroppervlakte van circa 40,5 m². Deze ruimte biedt volop mogelijkheden en kan, na de nodige aanpassingen, worden ingericht als extra slaapkamer, werkruimte of hobbykamer. Dankzij het royale oppervlak is dit een waardevolle aanvulling voor een prachtige ruimte te maken. De ruimte is al voorbereidt, en er zit zelfs isolatie tegen het dak en nieuwe dakvensters.

-Tuin:
De woning beschikt over een fijne, praktische tuin die bereikbaar is vanuit zowel de woonkamer als de bijkeuken. De tuin is volledig omheind en ingericht met een combinatie van terras, gazon en verzorgde plantenborders. Hierdoor geniet u van een goede combinatie van groen en een onderhoudsvriendelijke tuin, terwijl privacy en rust optimaal zijn gewaarborgd. Een prettige buitenruimte waar het heerlijk verblijven is, zowel overdag als in de avonduren.

-Nadere bijzonderheden:
• Type woning: Ruime en moderne woning met oprit, voorzien van drie slaapkamers, (mogelijk vier) energielabel B en een onderhoudsvriendelijke tuin, gelegen op een rustige locatie in Eijsden.
• Renovaties: De woning is in 2021 geheel gerenoveerd (onder andere keuken en badkamer) en voorzien van een uitbouw. Ook het elektra- en loodgieterswerk en de cv-installatie zijn in 2021 geheel vernieuwd. Het dak is in 2020 gerenoveerd.
• Kozijnen: Kunststof kozijnen met HR++ beglazing.
• Centrale verwarming: cv-ketel (Vaillant, Eigendom, 2018).
• Energielabel: B.
• De gehele begane grond is voorzien van comfortabele vloerverwarming.
• Alle vermelde afmetingen zijn indicatief en kunnen afwijken van de werkelijkheid.

-Omgeving:
Deze woning bevindt zich in het geliefde Eijsden, op een uiterst praktische locatie. Alle voorzieningen zijn binnen handbereik: winkelcentrum met o.a. een supermarkt en drogist, op slechts 1 minuut loopafstand. Scholen, een treinstation en busverbindingen zijn ook op loopafstand. Daarnaast kunt u genieten van de gezellige terrasjes en sfeervolle eetcafés langs de Maas. Het bruisende centrum van Maastricht, het MUMC+ en de Universiteit Maastricht (UM) liggen op slechts 15 minuten rijden. Bovendien biedt Eijsden uitstekende verbindingen: een directe treinverbinding naar Maastricht en Luik, en een goede busverbinding naar Maastricht. Eijsden staat ook bekend om haar rijke tradities, zoals de jaarlijkse “Broonk”, een feestelijke gelegenheid om de hartelijke dorpsgemeenschap beter te leren kennen. Deze combinatie van bereikbaarheid, voorzieningen en gezelligheid maakt deze locatie uniek.

Voor meer verkoopinformatie, onze disclaimer en de verkoopvoorwaarden verwijzen wij u graag naar onze website: goessens-makelaardij.nl. Deze presentatie is met de grootste zorg samengesteld door Goessens & Goessens Makelaardij. Ondanks onze inspanningen aanvaarden wij geen enkele aansprakelijkheid voor eventuele onvolledigheden, onjuistheden of de gevolgen hiervan. Alle vermelde maten en oppervlakten zijn indicatief. Wij streven ernaar om u zo zorgvuldig mogelijk te informeren op basis van de beschikbare gegevens. Deze presentatie dient echter uitsluitend ter indicatie. Voor meer details of aanvullende informatie staan wij uiteraard graag voor u klaar.

Reageren op deze woning?

Bent u enthousiast geworden na het lezen van deze woningpresentatie en wilt u vrijblijvend meer informatie over deze woning ontvangen? Of wilt een bezichtiging aanvragen? Vul onderstaand contactformulier in en wij nemen z.s.m. contact met u op.

Uw bericht is naar ons verzonden. Wij nemen zo snel mogelijk contact met u op.

Sorry, we kunnen helaas niet met zekerheid vaststellen of je een mens of een geautomatiseerde bot/spammer bent. Hierdoor kunnen we het formulier dat je hebt ingevuld niet verzenden. Probeer het opnieuw of neem direct contact op met de makelaar via e-mail.

Er is iets mis gegaan met het versturen van het formulier.
Controleer of u alle velden (goed) heeft ingevoerd en probeer het nog een keer.

U zult automatisch een kopie van dit ingevuld contactformulier ontvangen op het door u ingevulde e-mailadres.

Wij vragen alleen uw gegevens die nodig zijn voor het beantwoorden van uw verzoek. Voor meer informatie verwijzen wij u naar onze privacyverklaring op onze website. Bij het versturen van dit formulier gaat u hiermee akkoord.

recaptcha
reCAPTCHA
PrivacyTerms

Heeft u liever dat wij u terugbellen?

Laat uw telefoonnummer achter en wij bellen u zo spoedig mogelijk terug.

Uw bericht is naar ons verzonden. Wij nemen zo snel mogelijk contact met u op.

Sorry, we kunnen helaas niet met zekerheid vaststellen of je een mens of een geautomatiseerde bot/spammer bent. Hierdoor kunnen we het formulier dat je hebt ingevuld niet verzenden. Probeer het opnieuw of neem direct contact op met de makelaar via e-mail.

Er is iets mis gegaan met het versturen van het formulier.
Controleer of u alle velden (goed) heeft ingevoerd en probeer het nog een keer.

recaptcha
reCAPTCHA
PrivacyTerms

Uw woning verkopen?

Wanneer u overweegt om uw huis te verkopen, vraag dan een vrijblijvend adviesgesprek en een waardebepaling aan. Wij maken graag een afspraak met u!

Gratis adviesgesprek

Locatie

[ { "lat": 50.7752176, "lng": 5.7063301, "heading": 0, "pitch": 0 } ]

Kenmerken

Aanvaarding

Prijs
€ 479.000 k.k.
Status
Onder bod
Oplevering
In overleg
Adres
Prins Bernhardstraat 25
Postcode
6245 BG
Plaats
Eijsden

Bouw

Soort woonhuis
Eengezinswoning, 2-onder-1-kapwoning
Soort bouw
Bestaande bouw
Bouwjaar
1955

Oppervlakten en inhoud

Woonoppervlakte
ca. 136m²
Perceeloppervlakte
ca. 228m²
Overig oppervlakte
ca. 8m²
Inhoud
ca. 510m³

Indeling

Aantal kamers
4
Aantal slaapkamers
3
Aantal badkamers
1
Aantal verdiepingen
4
Voorzieningen
Dakraam, Natuurlijke ventilatie

Energie

Energielabel
B
Warm water
C.V.-ketel
Verwarming
C.V.-ketel, Gashaard, Vloerverwarming gedeeltelijk
Ketel
Valliant Ecotec classic (2018, Combi-ketel, Eigendom)

Buitenruimte

Ligging
Aan rustige weg
Tuin
Tuin rondom

Schriftelijkheidsvereiste:

Ter bescherming van de belangen van zowel koper als verkoper, wordt uitdrukkelijk gesteld dat een koopovereenkomst met betrekking tot deze onroerende zaak eerst dan tot stand komt nadat koper en verkoper beide de koopovereenkomst hebben getekend ("schriftelijkheidsvereiste"). Dit betekent dat een bevestiging van de afspraken per e-mail, of een toegestuurd concept van de koopovereenkomst, hier niet onder vallen

Waarborgsom/bankgarantie:

De waarborgsom/bankgarantie is 10% van de koopsom. De koper dient deze uiterlijk 1 week na het vervallen van de ontbindende voorwaarden bij de desbetreffende notaris te deponeren.

Bouwkundige keuring:

Koper is te allen tijde gerechtigd voor eigen rekening een bouwkundige keuring te (laten) verrichten dan wel andere adviseurs te raadplegen teneinde een goed inzicht te verkrijgen over de staat van de woning. De beoordeling van de woning zoals omschreven in bovenstaande presentatie en de brochure is gebaseerd op visuele waarneming, de leeftijd van de woning, en de informatie die verkregen is van de verkoper(s). Een bouwkundige rapportage valt nadrukkelijk buiten de informatie van deze websitepresentatie.

Aansprakelijkheid:

Deze websitepresentatie is door ons Goessens & Goessens Makelaardij met de nodige zorgvuldigheid samengesteld. Onzerzijds wordt echter geen enkele aansprakelijkheid aanvaard voor enige onvolledigheid, onjuist of anderszins, dan wel de gevolgen daarvan. Alle opgegeven maten en oppervlakten zijn indicatief. Deze websitepresentatie is slechts indicatief. Alle vermelden maten zijn circa maten. Er is nagestreefd naar een zo zorgvuldig mogelijke informatie van de ter beschikking staande gegevens. De verkoper heeft een mededelingsplicht inzake zaken die hem bekend zijn van het onroerend goed. De potentiele koper heeft een onderzoek plicht inzake de voor hem van belang zijnde gegevens van het onroerend goed.

Onderzoek plicht koper:

De informatie tijdens de rondleiding en in de websitepresentatie en overig informatiemateriaal is verkregen van de verkoper van de woning en is bedoeld om de koper te informeren. In het Burgerlijk Wetboek staat opgenomen dat op de koper van een woning een onderzoek plicht rust. Onder de onderzoeksplicht vallen bouwkundige gebreken/staat van de woning en publiekrechtelijke openbare informatie (zoals verkeers- /bestemmingsplannen). Een bouwkundige keuring geeft hier duidelijkheid over.

Copyright ©:

Gehele of gedeeltelijke overname, plaatsing op andere sites, advertenties, verveelvoudiging op welke andere wijze dan ook en/of commercieel gebruik van deze informatie (zoals foto’s, plattegronden, teksten, kenmerken etc.), is niet toegestaan, tenzij hiervoor uitdrukkelijk schriftelijke toestemming is verleend door Goessens & Goessens Makelaardij of tenzij aan de onderstaande voorwaarden wordt voldaan. Deze informatie mag worden bekeken , mits de informatie niet wordt gebruikt in een ander werk of publicatie in welk medium dan ook.