Goessens & Goessens Makelaardij gebruikt cookies om de website naar behoren te laten werken, om functies voor social media te bieden en om onze website te analyseren. Op onze website kun je ons Cookiebeleid en Privacybeleid vinden.

Pastoor Debetsstraat 6, Eijsden

Op een rustige en geliefde locatie in de kern van Eijsden ligt deze ruime twee-onder-een-kapwoning met eigen oprit. De woning biedt drie slaapkamers, met de mogelijkheid om eenvoudig een vierde kamer te realiseren, beschikt over energielabel C en heeft een royale, sfeervolle achtertuin met zijingang waar het buitenleven volop tot zijn recht komt.

Binnen geniet u van een praktische indeling en lichte leefruimtes die zowel comfort als flexibiliteit bieden. Dankzij de uitbreidingsmogelijkheden is dit een ideale gezinswoning die klaar is om met de wensen van haar nieuwe bewoners mee te groeien.

De ligging is bijzonder aantrekkelijk: op loopafstand bevinden zich winkels, scholen en sportfaciliteiten. Ook Maastricht, het MUMC+ en de Universiteit Maastricht zijn binnen circa 15 autominuten bereikbaar. Een ideale combinatie van rustig wonen met alle voorzieningen en het stadsleven binnen handbereik.

Nieuw

€ 349.000 k.k.

Woningtype
Geschakelde 2-onder-1-kapwoning

Woonoppervlakte
ca. 98m²

Perceeloppervlakte
ca. 237m²

Inhoud
ca. 430m³

Kamers
4

Slaapkamers
3

Bouwjaar
1967

Aanvaarding
In overleg

Omschrijving

Deze woning wordt aangeboden door Goessens & Goessens Makelaardij

-Beschrijving:
Op een rustige en geliefde locatie in de kern van Eijsden ligt deze ruime twee-onder-een-kapwoning met eigen oprit. De woning biedt drie slaapkamers, met de mogelijkheid om eenvoudig een vierde kamer te realiseren, beschikt over energielabel C en heeft een royale, sfeervolle achtertuin met zijingang waar het buitenleven volop tot zijn recht komt.

Binnen geniet u van een praktische indeling en lichte leefruimtes die zowel comfort als flexibiliteit bieden. Dankzij de uitbreidingsmogelijkheden is dit een ideale gezinswoning die klaar is om met de wensen van haar nieuwe bewoners mee te groeien.

De ligging is bijzonder aantrekkelijk: op loopafstand bevinden zich winkels, scholen en sportfaciliteiten. Ook Maastricht, het MUMC+ en de Universiteit Maastricht zijn binnen circa 15 autominuten bereikbaar. Een ideale combinatie van rustig wonen met alle voorzieningen en het stadsleven binnen handbereik.

-Indeling:

-Begane grond:
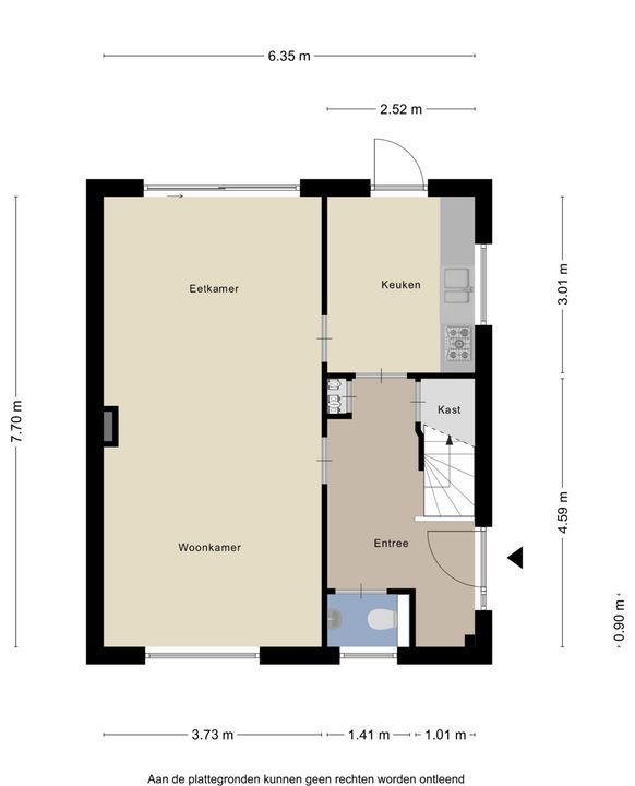
Via de oprit bereikt u de entree (ca. 10 m²), een ruime ontvangsthal met een nette, lichtkleurige tegelvloer. Vanuit de hal heeft u toegang tot de meterkast, de deels betegelde toiletruimte met hangcloset en fonteintje, de woonkamer en de keuken. Ook bevindt zich hier de trapopgang naar de eerste verdieping, met daaronder een praktische trapkast.

De woonkamer (ca. 28,5 m²) is een lichte en aangename leefruimte. Grote raampartijen en een schuifpui naar de tuin zorgen voor een prettige lichtinval en een directe verbinding met buiten. De ruimte biedt volop mogelijkheden voor het creëren van een comfortabele zithoek en een royale eethoek.

Aansluitend ligt de keuken, voorzien van een tegelvloer en een praktische indeling met voldoende werk- en bergruimte. De keuken is uitgerust met een 4-pits gasfornuis en afzuigkap en beschikt over een deur naar de achtertuin, waardoor ook hier het buitenleven eenvoudig betrokken wordt bij het dagelijks wonen.

-Eerste verdieping:
Via de trap in de entree bereikt u de overloop op de eerste verdieping. Deze biedt toegang tot drie slaapkamers, de badkamer en een berging. Daarnaast is hier een vlizotrap aanwezig die leidt naar de ruime zolderverdieping.
• Slaapkamer 1: Deze ruime slaapkamer is ca. 13 m² groot.
• Slaapkamer 2: Deze comfortabele slaapkamer is ca. 10 m² groot en voorzien van een kastruimte.
• Slaapkamer 3: Deze slaapkamer is ca. 8 m² groot en eveneens voorzien van een kastruimte.
• Badkamer: De ruime, goed onderhouden badkamer is betegeld en ca. 7 m² groot. De badkamer is voorzien van een douchcabine, een ligbad, een wastafel en een staand closet.
• Berging: De berging is ca. 2 m² groot en ideaal voor het opbergen van spullen. Hier kan eventueel een vaste trap worden geplaatst.

-Zolder:
Middels de vlizotrap op de overloop bereikt u de royale zolderverdieping met een vloeroppervlakte van ca. 49 m². Hier bevindt zich de cv-ketel (Intergas, 2012, Huur). De zolder wordt momenteel gebruikt als bergruimte, maar biedt uitstekende mogelijkheden om, met de aanleg van een vaste trap en eventueel een dakkapel, een extra slaapkamer of werkruimte te realiseren.

-Bijkeuken:
De woning beschikt daarnaast over een ruime bijkeuken van ca. 13 m², gesitueerd in de voormalige garage en bereikbaar vanuit de tuin. Deze ruimte is voorzien van de witgoedaansluitingen en een keukenblok met 4-pits gasfornuis en afzuigkap. Daarnaast is er voldoende plaats voor het opstellen van een extra koelkast of vriezer, waardoor deze ruimte een waardevolle aanvulling vormt op het wooncomfort.

-Tuin:
De achtertuin is royaal, volledig omheind en onderhoudsvriendelijk aangelegd. Dankzij het terras en de groene borders is dit een heerlijke plek om te genieten van rust, privacy en het buitenleven. Vanuit de tuin is tevens de berging bereikbaar (ca. 12,5 m²), grenzend aan de bijkeuken, ideaal voor het opbergen van tuingereedschap, materialen of het stallen van fietsen.
De tuin is toegankelijk via de schuifpui in de woonkamer, de deur in de keuken en de handige zijingang. Hierdoor is de tuin optimaal bereikbaar en biedt deze volop mogelijkheden om geheel naar eigen wens in te richten en een persoonlijke sfeer te creëren.

-Nadere bijzonderheden:
• Type woning: Goed onderhouden, twee-onder-een-kapwoning met oprit, drie slaapkamers, energielabel C en een sfeervolle, onderhoudsvriendelijke tuin op een rustige locatie in de kern van Eijsden.
• Kozijnen: Kunststof kozijnen en dubbele beglazing.
• Centrale verwarming: HR combi-ketel (Intergas, 2012, Huur).
• Energielabel: C.
• Alle vermelde afmetingen zijn indicatief en kunnen afwijken van de werkelijkheid.

-Omgeving:
Deze woning bevindt zich in het geliefde Eijsden, op een uiterst praktische locatie. Alle voorzieningen zijn binnen handbereik: winkelcentrum met o.a. een supermarkt en drogist, op slechts 1 minuut loopafstand,. Scholen, een treinstation en busverbindingen zijn ook op loopafstand. Daarnaast kunt u genieten van de gezellige terrasjes en sfeervolle eetcafés langs de Maas. Het bruisende centrum van Maastricht, het MUMC+ en de Universiteit Maastricht (UM) liggen op slechts 15 minuten rijden. Bovendien biedt Eijsden uitstekende verbindingen: een directe treinverbinding naar Maastricht en Luik, en een goede busverbinding naar Maastricht. Eijsden staat ook bekend om haar rijke tradities, zoals de jaarlijkse “Broonk”, een feestelijke gelegenheid om de hartelijke dorpsgemeenschap beter te leren kennen. Deze combinatie van bereikbaarheid, voorzieningen en gezelligheid maakt deze locatie uniek.

Voor meer verkoopinformatie, onze disclaimer en de verkoopvoorwaarden verwijzen wij u graag naar onze website: goessens-makelaardij.nl. Deze presentatie is met de grootste zorg samengesteld door Goessens & Goessens Makelaardij. Ondanks onze inspanningen aanvaarden wij geen enkele aansprakelijkheid voor eventuele onvolledigheden, onjuistheden of de gevolgen hiervan. Alle vermelde maten en oppervlakten zijn indicatief. Wij streven ernaar om u zo zorgvuldig mogelijk te informeren op basis van de beschikbare gegevens. Deze presentatie dient echter uitsluitend ter indicatie. Voor meer details of aanvullende informatie staan wij uiteraard graag voor u klaar.

Reageren op deze woning?

Bent u enthousiast geworden na het lezen van deze woningpresentatie en wilt u vrijblijvend meer informatie over deze woning ontvangen? Of wilt een bezichtiging aanvragen? Vul onderstaand contactformulier in en wij nemen z.s.m. contact met u op.

Uw bericht is naar ons verzonden. Wij nemen zo snel mogelijk contact met u op.

Sorry, we kunnen helaas niet met zekerheid vaststellen of je een mens of een geautomatiseerde bot/spammer bent. Hierdoor kunnen we het formulier dat je hebt ingevuld niet verzenden. Probeer het opnieuw of neem direct contact op met de makelaar via e-mail.

Er is iets mis gegaan met het versturen van het formulier.
Controleer of u alle velden (goed) heeft ingevoerd en probeer het nog een keer.

U zult automatisch een kopie van dit ingevuld contactformulier ontvangen op het door u ingevulde e-mailadres.

Wij vragen alleen uw gegevens die nodig zijn voor het beantwoorden van uw verzoek. Voor meer informatie verwijzen wij u naar onze privacyverklaring op onze website. Bij het versturen van dit formulier gaat u hiermee akkoord.

recaptcha
reCAPTCHA
PrivacyTerms

Heeft u liever dat wij u terugbellen?

Laat uw telefoonnummer achter en wij bellen u zo spoedig mogelijk terug.

Uw bericht is naar ons verzonden. Wij nemen zo snel mogelijk contact met u op.

Sorry, we kunnen helaas niet met zekerheid vaststellen of je een mens of een geautomatiseerde bot/spammer bent. Hierdoor kunnen we het formulier dat je hebt ingevuld niet verzenden. Probeer het opnieuw of neem direct contact op met de makelaar via e-mail.

Er is iets mis gegaan met het versturen van het formulier.
Controleer of u alle velden (goed) heeft ingevoerd en probeer het nog een keer.

recaptcha
reCAPTCHA
PrivacyTerms

Uw woning verkopen?

Wanneer u overweegt om uw huis te verkopen, vraag dan een vrijblijvend adviesgesprek en een waardebepaling aan. Wij maken graag een afspraak met u!

Gratis adviesgesprek

Locatie

[ { "lat": 50.7771796, "lng": 5.7076431, "heading": 0, "pitch": 0 } ]

Kenmerken

Aanvaarding

Prijs
€ 349.000 k.k.
Status
Beschikbaar
Oplevering
In overleg
Adres
Pastoor Debetsstraat 6
Postcode
6245 CN
Plaats
Eijsden

Bouw

Soort woonhuis
Eengezinswoning, Geschakelde 2-onder-1-kapwoning
Soort bouw
Bestaande bouw
Bouwjaar
1967

Oppervlakten en inhoud

Woonoppervlakte
ca. 98m²
Perceeloppervlakte
ca. 237m²
Overig oppervlakte
ca. 24m²
Inhoud
ca. 430m³

Indeling

Aantal kamers
4
Aantal slaapkamers
3
Aantal badkamers
1
Aantal verdiepingen
3
Voorzieningen
Natuurlijke ventilatie, Rolluiken

Energie

Energielabel
C
Isolatie
Grotendeels dubbelglas
Warm water
C.V.-ketel
Verwarming
C.V.-ketel
Ketel
Intergas KK HRE 28/24 CW4 (2012, Huur)

Buitenruimte

Tuin
Tuin rondom
Schuur
Aangebouwd steen

Schriftelijkheidsvereiste:

Ter bescherming van de belangen van zowel koper als verkoper, wordt uitdrukkelijk gesteld dat een koopovereenkomst met betrekking tot deze onroerende zaak eerst dan tot stand komt nadat koper en verkoper beide de koopovereenkomst hebben getekend ("schriftelijkheidsvereiste"). Dit betekent dat een bevestiging van de afspraken per e-mail, of een toegestuurd concept van de koopovereenkomst, hier niet onder vallen

Waarborgsom/bankgarantie:

De waarborgsom/bankgarantie is 10% van de koopsom. De koper dient deze uiterlijk 1 week na het vervallen van de ontbindende voorwaarden bij de desbetreffende notaris te deponeren.

Bouwkundige keuring:

Koper is te allen tijde gerechtigd voor eigen rekening een bouwkundige keuring te (laten) verrichten dan wel andere adviseurs te raadplegen teneinde een goed inzicht te verkrijgen over de staat van de woning. De beoordeling van de woning zoals omschreven in bovenstaande presentatie en de brochure is gebaseerd op visuele waarneming, de leeftijd van de woning, en de informatie die verkregen is van de verkoper(s). Een bouwkundige rapportage valt nadrukkelijk buiten de informatie van deze websitepresentatie.

Aansprakelijkheid:

Deze websitepresentatie is door ons Goessens & Goessens Makelaardij met de nodige zorgvuldigheid samengesteld. Onzerzijds wordt echter geen enkele aansprakelijkheid aanvaard voor enige onvolledigheid, onjuist of anderszins, dan wel de gevolgen daarvan. Alle opgegeven maten en oppervlakten zijn indicatief. Deze websitepresentatie is slechts indicatief. Alle vermelden maten zijn circa maten. Er is nagestreefd naar een zo zorgvuldig mogelijke informatie van de ter beschikking staande gegevens. De verkoper heeft een mededelingsplicht inzake zaken die hem bekend zijn van het onroerend goed. De potentiele koper heeft een onderzoek plicht inzake de voor hem van belang zijnde gegevens van het onroerend goed.

Onderzoek plicht koper:

De informatie tijdens de rondleiding en in de websitepresentatie en overig informatiemateriaal is verkregen van de verkoper van de woning en is bedoeld om de koper te informeren. In het Burgerlijk Wetboek staat opgenomen dat op de koper van een woning een onderzoek plicht rust. Onder de onderzoeksplicht vallen bouwkundige gebreken/staat van de woning en publiekrechtelijke openbare informatie (zoals verkeers- /bestemmingsplannen). Een bouwkundige keuring geeft hier duidelijkheid over.

Copyright ©:

Gehele of gedeeltelijke overname, plaatsing op andere sites, advertenties, verveelvoudiging op welke andere wijze dan ook en/of commercieel gebruik van deze informatie (zoals foto’s, plattegronden, teksten, kenmerken etc.), is niet toegestaan, tenzij hiervoor uitdrukkelijk schriftelijke toestemming is verleend door Goessens & Goessens Makelaardij of tenzij aan de onderstaande voorwaarden wordt voldaan. Deze informatie mag worden bekeken , mits de informatie niet wordt gebruikt in een ander werk of publicatie in welk medium dan ook.