Goessens & Goessens Makelaardij gebruikt cookies om de website naar behoren te laten werken, om functies voor social media te bieden en om onze website te analyseren. Op onze website kun je ons Cookiebeleid en Privacybeleid vinden.

Groene Specht 3, Eijsden

Op een rustige en geliefde locatie in Eijsden bieden wij deze stijlvolle, instapklare woning met oprit en ruime garage aan. De woning biedt vier slaapkamers, een moderne keuken, vloerverwarming op de begane grond en airconditioning op meerdere verdiepingen. Dankzij de duurzame voorzieningen en het energielabel A, woont u hier energiezuinig en comfortabel.

De ligging is ideaal: rustig wonen, maar toch dichtbij basisscholen, winkels en sportvoorzieningen. Het centrum van Maastricht, het MUMC+ en de Universiteit Maastricht zijn binnen 10 minuten bereikbaar. Een complete woning waar u zonder klussen direct kunt intrekken en wonen en werken moeiteloos gecombineerd kunnen worden.

Een instapklare woning waar u direct kunt genieten, zonder te klussen. Met hoogwaardige afwerking, een moderne keuken, vloerverwarming en zorgvuldig onderhouden leefruimtes biedt deze woning het ultieme comfort voor zorgeloos wonen en werken.

Nieuw Verkocht onder voorbehoud

€ 589.000 k.k.

Woningtype
2-onder-1-kapwoning

Woonoppervlakte
ca. 143m²

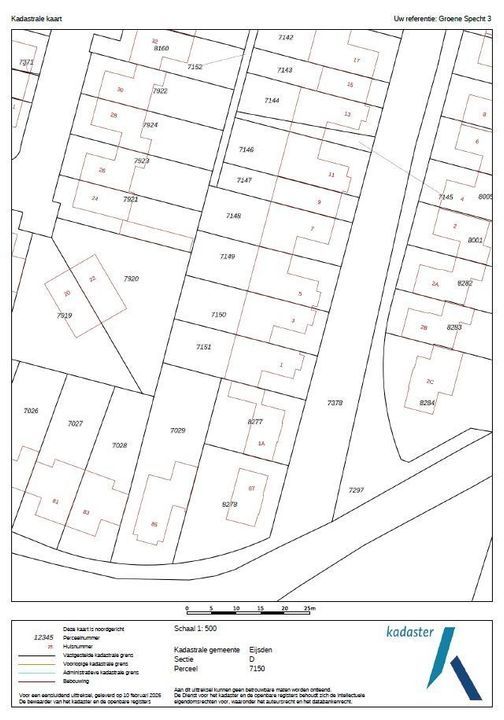
Perceeloppervlakte
ca. 280m²

Inhoud
ca. 590m³

Kamers
5

Slaapkamers
4

Bouwjaar
2012

Aanvaarding
In overleg

Omschrijving

Deze woning wordt aangeboden door Goessens & Goessens Makelaardij.

-Beschrijving:
Op een rustige en geliefde locatie in Eijsden bieden wij deze stijlvolle, instapklare woning met oprit en ruime garage aan. De woning biedt vier slaapkamers, een moderne keuken, vloerverwarming op de begane grond en airconditioning op meerdere verdiepingen. Dankzij de duurzame voorzieningen en het energielabel A, woont u hier energiezuinig en comfortabel.

De ligging is ideaal: rustig wonen, maar toch dichtbij basisscholen, winkels en sportvoorzieningen. Het centrum van Maastricht, het MUMC+ en de Universiteit Maastricht zijn binnen 10 minuten bereikbaar. Een complete woning waar u zonder klussen direct kunt intrekken en wonen en werken moeiteloos gecombineerd kunnen worden.

Een instapklare woning waar u direct kunt genieten, zonder te klussen. Met hoogwaardige afwerking, een moderne keuken, vloerverwarming en zorgvuldig onderhouden leefruimtes biedt deze woning het ultieme comfort voor zorgeloos wonen en werken.

-Indeling:

-Begane grond:
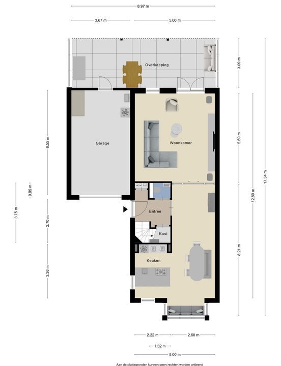
Via de ruime entree (ca. 6,5 m²) betreedt u de woning. De hal is afgewerkt met een warme pvc-visgraatvloer die over de gehele begane grond is doorgelegd en is voorzien van comfortabele vloerverwarming. Vanuit de hal heeft u toegang tot de moderne toiletruimte met hangcloset en fonteintje, de meterkast en de woonkamer. Tevens bevindt zich hier de trapopgang naar de eerste verdieping.

Aan de voorzijde van de woning is de moderne, hoogglans witte keuken gesitueerd. De keuken is ingericht met een praktisch kookeiland en voorzien van hoogwaardige inbouwapparatuur van Siemens, waaronder een oven, combi-oven, 5-pits gaskookplaat, plafondafzuiging, vaatwasser en koelkast. Aansluitend bevindt zich de eetkamer (ca. 29 m²) met aan de voorzijde de sfeervolle erker met zitgedeelte, die perfect dienst kan doen als extra zithoek- leesplek.

Via twee stijlvolle stalen, beigekleurige, deuren bereikt u de uitgebouwde (vanuit de bouw) woonkamer (ca. 28 m²). Dankzij de grote raampartijen en de verbinding tussen de ruimtes geniet u hier van een prettige lichtinval. De woonkamer is voorzien van airconditioning en openslaande deuren naar de achtertuin, wat zorgt voor een fijne verbinding tussen binnen en buiten.

-Eerste verdieping:
Via de trap bereikt u de ruime overloop (ca. 9 m²). Deze verdieping is afgewerkt met een warmkleurige laminaatvloer en voorzien van airconditioning. Hier bevinden zich drie slaapkamers, de badkamer en de vaste trap naar de tweede verdieping.
• Slaapkamer 1: Ruime 'masterbedroom' van ca. 17 m² groot.
• Slaapkamer 2: Deze comfortabele slaapkamer is ca. 9 m² groot.
• Slaapkamer 3: Deze slaapkamer is ca. 7 m² groot. Ideaal te gebruiken als kinder-, werk- of kleedkamer.
• Badkamer: De moderne badkamer is ca. 5 m² groot en voorzien van een inloopdouche, een wastafelmeubel met wasbak en een tweede hangcloset.

-Tweede verdieping:
Via een vaste trap bereikt u de royale zolderverdieping van ca. 38 m².
Door de dakkapel is dit een perfecte slaapkamer indien gewenst. Momenteel staat hier de wasmachine en is deze ook zo ingericht. Verder bevindt zich hier de cv-ketel (Eigendom, Intergas, 2012) en mechanische ventilatie box (Eigendom).

-Garage:
De vrij toegankelijke garage van ca. 24 m² is bereikbaar via de oprit en vanuit de tuin. De garage is voorzien van elektra en biedt ruimte voor het parkeren van één auto, het stallen van fietsen of het creëren van extra bergruimte.

-Tuin:
De fraai aangelegde op het zuidwesten gesitueerde achtertuin biedt een fijne combinatie van gazon, groene borders en meerdere terrassen. Over de volledige breedte van de woning is een hoogwaardig afgewerkte overkapping (merk Weinor) met glas gerealiseerd, waardoor u in ieder seizoen comfortabel buiten kunt zitten. Tevens is deze overkapping aan de binnenzijde voorzien van twee afzonderlijk volledig elektrisch bedienbare zonneschermen met ledverlichting. De tuin heeft een rustige, groene uitstraling en biedt volop privacy. Er is vanuit de tuin toegang tot de garage.

-Nadere bijzonderheden:
• Stijlvolle instapklare woning met 4 slaapkamers, garage, moderne keuken en tuin op toplocatie in Eijsden
• Kozijnen: Houten kozijnen met HR++ beglazing.
• Centrale verwarming: HR combi-ketel (Eigendom, Intergas, 2012).
• Voorzien van een mechanische ventilatie box (Eigendom).
• Energielabel: A (goed geïsoleerd, laag gasverbruik).
• Rolluiken: De woning is aan de achterzijde volledig voorzien van rolluiken.
• Alle vermelde afmetingen zijn indicatief en kunnen afwijken van de werkelijkheid.

-Omgeving:
Deze woning ligt in Eijsden, in de nieuwbouw wijk; Nieuw Poelveld. Eijsden is een forensengemeente gelegen vlakbij de Maas. Een sfeervolle plaats met een oude historische kern gelegen bij de Diepstraat met gezellige terrasjes, eetcafés, winkels en winkelcentrum. Alle verdere voorzieningen scholen, sportvoorzieningen e.d. zijn in ruime maten in de directe nabijheid aanwezig. Gunstig gelegen t.o.v. diverse uitvalswegen: Maastricht centrum, MUMC+ , en Universiteit zijn op 15 minuten te bereiken. Eijsden is voorzien van een goede busverbinding met Maastricht en treinverbinding met Maastricht en Luik. Traditioneel zijn er jaarlijkse festiviteiten zoals de jaarlijkse “Broonk”, een goed moment om de bevolking van Eijsden te leren kennen.

Graag verwijzen wij u naar onze website goessens-makelaardij.nl, waar meer verkoopinformatie, onze disclaimer en de verkoopvoorwaarden te vinden zijn. Deze presentatie is door Goessens & Goessens Makelaardij met de nodige zorg samengesteld. Onzerzijds wordt echter geen enkele aansprakelijkheid aanvaard voor enige onvolledigheid, onjuist of anderszins, dan wel de gevolgen daarvan. Alle opgegeven maten en oppervlakten zijn indicatief. Deze presentatie is slechts indicatief. Er is nagestreefd naar een zo zorgvuldig mogelijke informatie van de ter beschikking staande gegevens.

Reageren op deze woning?

Bent u enthousiast geworden na het lezen van deze woningpresentatie en wilt u vrijblijvend meer informatie over deze woning ontvangen? Of wilt een bezichtiging aanvragen? Vul onderstaand contactformulier in en wij nemen z.s.m. contact met u op.

Uw bericht is naar ons verzonden. Wij nemen zo snel mogelijk contact met u op.

Sorry, we kunnen helaas niet met zekerheid vaststellen of je een mens of een geautomatiseerde bot/spammer bent. Hierdoor kunnen we het formulier dat je hebt ingevuld niet verzenden. Probeer het opnieuw of neem direct contact op met de makelaar via e-mail.

Er is iets mis gegaan met het versturen van het formulier.
Controleer of u alle velden (goed) heeft ingevoerd en probeer het nog een keer.

U zult automatisch een kopie van dit ingevuld contactformulier ontvangen op het door u ingevulde e-mailadres.

Wij vragen alleen uw gegevens die nodig zijn voor het beantwoorden van uw verzoek. Voor meer informatie verwijzen wij u naar onze privacyverklaring op onze website. Bij het versturen van dit formulier gaat u hiermee akkoord.

recaptcha
reCAPTCHA
PrivacyTerms

Heeft u liever dat wij u terugbellen?

Laat uw telefoonnummer achter en wij bellen u zo spoedig mogelijk terug.

Uw bericht is naar ons verzonden. Wij nemen zo snel mogelijk contact met u op.

Sorry, we kunnen helaas niet met zekerheid vaststellen of je een mens of een geautomatiseerde bot/spammer bent. Hierdoor kunnen we het formulier dat je hebt ingevuld niet verzenden. Probeer het opnieuw of neem direct contact op met de makelaar via e-mail.

Er is iets mis gegaan met het versturen van het formulier.
Controleer of u alle velden (goed) heeft ingevoerd en probeer het nog een keer.

recaptcha
reCAPTCHA
PrivacyTerms

Uw woning verkopen?

Wanneer u overweegt om uw huis te verkopen, vraag dan een vrijblijvend adviesgesprek en een waardebepaling aan. Wij maken graag een afspraak met u!

Gratis adviesgesprek

Documenten

Locatie

[ { "lat": 50.7757168, "lng": 5.7184517, "heading": 0, "pitch": 0 } ]

Kenmerken

Aanvaarding

Prijs
€ 589.000 k.k.
Status
Verkocht onder voorbehoud
Oplevering
In overleg
Adres
Groene Specht 3
Postcode
6245 RK
Plaats
Eijsden

Bouw

Soort woonhuis
Eengezinswoning, 2-onder-1-kapwoning
Soort bouw
Bestaande bouw
Bouwjaar
2012

Oppervlakten en inhoud

Woonoppervlakte
ca. 143m²
Perceeloppervlakte
ca. 280m²
Overig oppervlakte
ca. 24m²
Inhoud
ca. 590m³

Indeling

Aantal kamers
5
Aantal slaapkamers
4
Aantal badkamers
1
Aantal verdiepingen
3
Voorzieningen
Airconditioning, Rolluiken

Energie

Energielabel
A
Isolatie
Muurisolatie, Vloerisolatie, Volledig geisoleerd
Warm water
C.V.-ketel
Verwarming
C.V.-ketel, Vloerverwarming gedeeltelijk
Ketel
Intergas (2012, Combi-ketel, Eigendom)

Buitenruimte

Ligging
In woonwijk
Tuin
Achtertuin

Garage

Soort garage
Aangebouwd steen
Capaciteit
1
Afmetingen
24m²
Voorzieningen
Met elektrische deur, Voorzien van elektra

Schriftelijkheidsvereiste:

Ter bescherming van de belangen van zowel koper als verkoper, wordt uitdrukkelijk gesteld dat een koopovereenkomst met betrekking tot deze onroerende zaak eerst dan tot stand komt nadat koper en verkoper beide de koopovereenkomst hebben getekend ("schriftelijkheidsvereiste"). Dit betekent dat een bevestiging van de afspraken per e-mail, of een toegestuurd concept van de koopovereenkomst, hier niet onder vallen

Waarborgsom/bankgarantie:

De waarborgsom/bankgarantie is 10% van de koopsom. De koper dient deze uiterlijk 1 week na het vervallen van de ontbindende voorwaarden bij de desbetreffende notaris te deponeren.

Bouwkundige keuring:

Koper is te allen tijde gerechtigd voor eigen rekening een bouwkundige keuring te (laten) verrichten dan wel andere adviseurs te raadplegen teneinde een goed inzicht te verkrijgen over de staat van de woning. De beoordeling van de woning zoals omschreven in bovenstaande presentatie en de brochure is gebaseerd op visuele waarneming, de leeftijd van de woning, en de informatie die verkregen is van de verkoper(s). Een bouwkundige rapportage valt nadrukkelijk buiten de informatie van deze websitepresentatie.

Aansprakelijkheid:

Deze websitepresentatie is door ons Goessens & Goessens Makelaardij met de nodige zorgvuldigheid samengesteld. Onzerzijds wordt echter geen enkele aansprakelijkheid aanvaard voor enige onvolledigheid, onjuist of anderszins, dan wel de gevolgen daarvan. Alle opgegeven maten en oppervlakten zijn indicatief. Deze websitepresentatie is slechts indicatief. Alle vermelden maten zijn circa maten. Er is nagestreefd naar een zo zorgvuldig mogelijke informatie van de ter beschikking staande gegevens. De verkoper heeft een mededelingsplicht inzake zaken die hem bekend zijn van het onroerend goed. De potentiele koper heeft een onderzoek plicht inzake de voor hem van belang zijnde gegevens van het onroerend goed.

Onderzoek plicht koper:

De informatie tijdens de rondleiding en in de websitepresentatie en overig informatiemateriaal is verkregen van de verkoper van de woning en is bedoeld om de koper te informeren. In het Burgerlijk Wetboek staat opgenomen dat op de koper van een woning een onderzoek plicht rust. Onder de onderzoeksplicht vallen bouwkundige gebreken/staat van de woning en publiekrechtelijke openbare informatie (zoals verkeers- /bestemmingsplannen). Een bouwkundige keuring geeft hier duidelijkheid over.

Copyright ©:

Gehele of gedeeltelijke overname, plaatsing op andere sites, advertenties, verveelvoudiging op welke andere wijze dan ook en/of commercieel gebruik van deze informatie (zoals foto’s, plattegronden, teksten, kenmerken etc.), is niet toegestaan, tenzij hiervoor uitdrukkelijk schriftelijke toestemming is verleend door Goessens & Goessens Makelaardij of tenzij aan de onderstaande voorwaarden wordt voldaan. Deze informatie mag worden bekeken , mits de informatie niet wordt gebruikt in een ander werk of publicatie in welk medium dan ook.