Goessens & Goessens Makelaardij gebruikt cookies om de website naar behoren te laten werken, om functies voor social media te bieden en om onze website te analyseren. Op onze website kun je ons Cookiebeleid en Privacybeleid vinden.

Bovenstraat 4, Eijsden

In het schilderachtige en rustige dorp Mesch, vlak bij Eijsden, staat deze statige vrijstaande woning die klassieke architectuur moeiteloos combineert met modern wooncomfort. De woning biedt een riante leefruimte, vier slaapkamers en is energiezuinig dankzij energielabel C en 15 zonnepanelen, waardoor stijl en duurzaamheid hand in hand gaan.

De rondom aangelegde tuin is een groene oase van rust en privacy, met volop ruimte om te ontspannen, te spelen of te genieten van het buitenleven. Dit maakt de woning ideaal voor gezinnen, tuinliefhebbers of iedereen die het comfort van buitenruimte waardeert.

Wonen in Mesch betekent genieten van landelijke charme, weidse vergezichten en een gemoedelijke dorpssfeer, terwijl de bereikbaarheid uitstekend is. Binnen ongeveer vijftien autominuten bereikt u het bruisende centrum van Maastricht, het MUMC+ of de Universiteit Maastricht. Zo biedt deze woning een unieke combinatie van rust, ruimte en comfort, met alle voordelen van de stad binnen handbereik.

Nieuw Verkocht onder voorbehoud

€ 689.000 k.k.

Woningtype
Vrijstaande woning

Woonoppervlakte
ca. 151m²

Perceeloppervlakte
ca. 680m²

Inhoud
ca. 759m³

Kamers
5

Slaapkamers
4

Bouwjaar
1938

Aanvaarding
In overleg

Omschrijving

Deze woning wordt aangeboden door Goessens & Goessens Makelaardij

-Omschrijving:
In het schilderachtige en rustige dorp Mesch, vlak bij Eijsden, staat deze statige vrijstaande woning die klassieke architectuur moeiteloos combineert met modern wooncomfort. De woning biedt een riante leefruimte, vier slaapkamers en is energiezuinig dankzij energielabel C en 15 zonnepanelen, waardoor stijl en duurzaamheid hand in hand gaan.

De rondom aangelegde tuin is een groene oase van rust en privacy, met volop ruimte om te ontspannen, te spelen of te genieten van het buitenleven. Dit maakt de woning ideaal voor gezinnen, tuinliefhebbers of iedereen die het comfort van buitenruimte waardeert.

Wonen in Mesch betekent genieten van landelijke charme, weidse vergezichten en een gemoedelijke dorpssfeer, terwijl de bereikbaarheid uitstekend is. Binnen ongeveer vijftien autominuten bereikt u het bruisende centrum van Maastricht, het MUMC+ of de Universiteit Maastricht. Zo biedt deze woning een unieke combinatie van rust, ruimte en comfort, met alle voordelen van de stad binnen handbereik.

-Indeling:

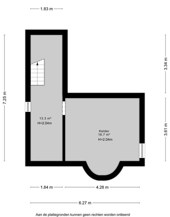
-Kelder:
De woning is voorzien van een handige kelder, bestaande uit twee ruimtes van ca. 13 en 17 m² groot. De kelder is te bereiken via een trap in de entree en ideaal voor het opbergen van voorraden of materialen.

-Begane grond:
Bij binnenkomst valt het karakter en de ruime opzet van de woning direct op. De entree van ca. 11,5 m² is licht en sfeervol, voorzien van een voordeur met glas-in-loodramen, een originele tegelvloer, een eikenhouten trap en een hoog plafond. In de entree bevindt zich de meterkast, de toegang tot de woonkamer, de toegang tot de eetkamer en de toiletruimte. Tevens bevindt zich hier de trapopgang naar de eerste verdieping en de trap naar de kelder. De nette toiletruimte is gedeeltelijk betegeld en voorzien van een staand closet.

Het is mooi binnenkomen in de ruime woonkamer van 33 m² groot. Ook hier valt de charme van de woning direct op door de houten vloer, de zandstenen schouw in het midden van de ruimte en de erker met glas-in-loodramen aan de voorzijde van de woning. Grote raampartijen zorgen voor veel natuurlijk licht, waardoor een fijne leefruimte ontstaat.

De keuken van ca. 18 m² is modern uitgevoerd met witte greep loze fronten en uitgerust met een inductiekookplaat, afzuigkap, combi-oven, koelkast en vaatwasser. Grote ramen en een deur naar de tuin zorgen voor een mooie verbinding tussen binnen en buiten, waardoor de keuken een lichte en open uitstraling heeft.

De keuken biedt toegang tot een tussenhal, welke leidt naar een kastruimte van ca. 2 m² groot. Deze kastruimte is zeer praktisch voor het opbergen van voorraden of het plaatsen van een vriezer.

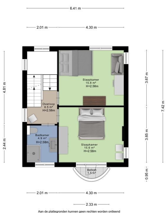
-Eerste verdieping:
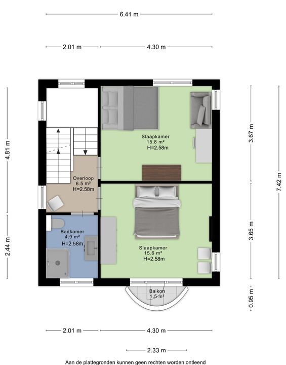
Via de trap in de entree is de eerste verdieping te bereiken. Op deze verdieping treft u twee slaapkamers en een badkamer. Tevens bevindt zich hier de vaste trap naar de tweede verdieping. De gehele verdieping is afgewerkt met een mooie houten vloer.
• Slaapkamer 1: Deze slaapkamer is ca. 16 m² groot en beschikt over een schouw en een deur naar het balkon met uitzicht over de straat.
• Slaapkamer 2: Deze fijne slaapkamer is ca. 16 m² groot.
• Badkamer: De moderne, betegelde badkamer (ca. 5 m²) is voorzien van een douchecabine, een wastafelmeubel en een staand closet.

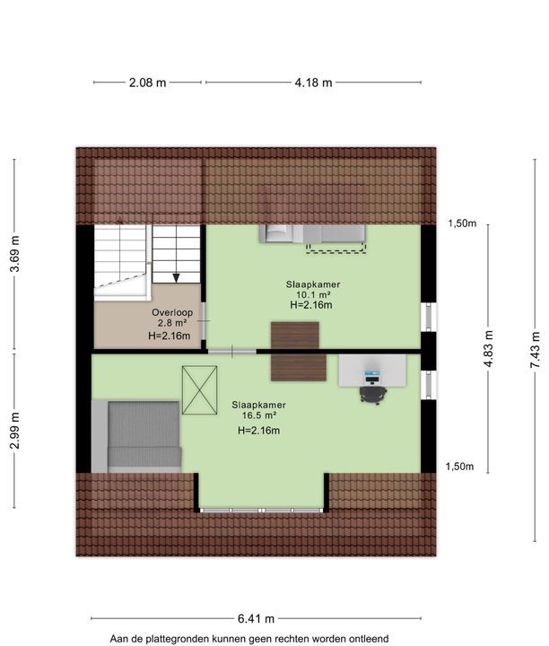
-Tweede verdieping:
Via de vaste trap op de eerste verdieping bereikt u de tweede verdieping, waar zich eveneens twee slaapkamers bevinden.
• Slaapkamer 3: Deze ruime slaapkamer is ca. 16,5 m² groot en voorzien van een mooie lichtinval door het dakkapel. Tevens bevindt zich hier een vlizotrap naar de vliering. Deze is enkel als (ruimere) opslagruimte beschikbaar door de lagere nokhoogte.
• Slaapkamer 4: Deze comfortabele slaapkamer is ca. 10 m² groot.

-Zolder:
Via een vlizotrap op de derde slaapkamer is de zolder te bereiken. Deze zolderruimte heeft een vloeroppervlakte van ca. 23 m² groot en wordt momenteel gebruikt als berging en is praktisch voor het opbergen van bijvoorbeeld seizoensgebonden spullen.

-Garage:
De garage van ca. 21 m² is bereikbaar via een handmatig bedienbare poort aan de oprit en via een deur in de tuin. Hier bevinden zich aansluitingen voor de wasmachine en droger, evenals de cv-ketel (Eigendom, Atag, 2023). De garage biedt ruimte voor het parkeren van een voertuig of het stallen van fietsen, terwijl de oprit aan de voorzijde plaats biedt voor het parkeren van twee extra auto’s.

-Tuin:
De woning is voorzien van een royale en fraai aangelegde achtertuin met veel privacy. De tuin is te bereiken via een deur in de keuken, een deur in de garage of de handige zijingang. De tuin is ingericht met een combinatie van een terras, een ruim gazon en plantenborders. Dankzij de royale opzet is er volop ruimte om te ontspannen, buiten te eten of voor kinderen om te spelen. De overkapping (ca. 34 m²), grenzend aan de garage en keuken, biedt de mogelijkheid om op warme dagen beschut in de schaduw te zitten en comfortabel van het buitenleven te genieten. Achterin de tuin bevindt zich een houten berging van ca. 17 m² met een overkapping, ideaal voor het bergen van tuingereedschap, materialen of het stallen van fietsen.

-Nadere bijzonderheden:
• Type woning: Unieke, karakteristieke, vrijstaande woning met een royale woonoppervlakte, vier slaapkamers en een ruime, fraaie achtertuin, gelegen op een ruim perceel van ca. 680 m².
• Kozijnen: Houten en kunststof kozijnen met dubbele beglazing.
• Centrale verwarming: HR combi-ketel (Eigendom, Atag, 2023).
• Energielabel: C.
• Zonnepanelen: 15 zonnepanelen in eigendom (2021).
• Alle vermelde afmetingen zijn indicatief en kunnen afwijken van de werkelijkheid.

-Omgeving:
Deze woning is gelegen in Mesch. Mesch is een charmant en historisch dorpje in het uiterste zuiden van Nederland, gelegen in het prachtige Heuvelland. Het staat bekend om zijn schilderachtige straatjes, vakwerkhuizen en de groene, glooiende omgeving die uitnodigt tot wandelen en fietsen. Dankzij de ligging vlak bij Eijsden en Maastricht zijn alle voorzieningen binnen handbereik, terwijl u in Mesch geniet van de rust, natuur en de authentieke dorpse sfeer. Ook België ligt om de hoek, waardoor u profiteert van een unieke en centrale ligging in het grensgebied.

Graag verwijzen wij u naar onze website goessens-makelaardij.nl, waar meer verkoopinformatie, onze disclaimer en de verkoopvoorwaarden te vinden zijn. Deze presentatie is door Goessens & Goessens Makelaardij met de nodige zorg samengesteld. Onzerzijds wordt echter geen enkele aansprakelijkheid aanvaard voor enige onvolledigheid, onjuist of anderszins, dan wel de gevolgen daarvan. Alle opgegeven maten en oppervlakten zijn indicatief. Deze presentatie is slechts indicatief. Er is nagestreefd naar een zo zorgvuldig mogelijke informatie van de ter beschikking staande gegevens.

Reageren op deze woning?

Bent u enthousiast geworden na het lezen van deze woningpresentatie en wilt u vrijblijvend meer informatie over deze woning ontvangen? Of wilt een bezichtiging aanvragen? Vul onderstaand contactformulier in en wij nemen z.s.m. contact met u op.

Uw bericht is naar ons verzonden. Wij nemen zo snel mogelijk contact met u op.

Sorry, we kunnen helaas niet met zekerheid vaststellen of je een mens of een geautomatiseerde bot/spammer bent. Hierdoor kunnen we het formulier dat je hebt ingevuld niet verzenden. Probeer het opnieuw of neem direct contact op met de makelaar via e-mail.

Er is iets mis gegaan met het versturen van het formulier.
Controleer of u alle velden (goed) heeft ingevoerd en probeer het nog een keer.

U zult automatisch een kopie van dit ingevuld contactformulier ontvangen op het door u ingevulde e-mailadres.

Wij vragen alleen uw gegevens die nodig zijn voor het beantwoorden van uw verzoek. Voor meer informatie verwijzen wij u naar onze privacyverklaring op onze website. Bij het versturen van dit formulier gaat u hiermee akkoord.

recaptcha
reCAPTCHA
PrivacyTerms

Heeft u liever dat wij u terugbellen?

Laat uw telefoonnummer achter en wij bellen u zo spoedig mogelijk terug.

Uw bericht is naar ons verzonden. Wij nemen zo snel mogelijk contact met u op.

Sorry, we kunnen helaas niet met zekerheid vaststellen of je een mens of een geautomatiseerde bot/spammer bent. Hierdoor kunnen we het formulier dat je hebt ingevuld niet verzenden. Probeer het opnieuw of neem direct contact op met de makelaar via e-mail.

Er is iets mis gegaan met het versturen van het formulier.
Controleer of u alle velden (goed) heeft ingevoerd en probeer het nog een keer.

recaptcha
reCAPTCHA
PrivacyTerms

Uw woning verkopen?

Wanneer u overweegt om uw huis te verkopen, vraag dan een vrijblijvend adviesgesprek en een waardebepaling aan. Wij maken graag een afspraak met u!

Gratis adviesgesprek

Locatie

[ { "lat": 50.7638154, "lng": 5.7353806, "heading": 0, "pitch": 0 } ]

Kenmerken

Aanvaarding

Prijs
€ 689.000 k.k.
Status
Verkocht onder voorbehoud
Oplevering
In overleg
Adres
Bovenstraat 4
Postcode
6245 KR
Plaats
Eijsden

Bouw

Soort woonhuis
Eengezinswoning, Vrijstaande woning
Soort bouw
Bestaande bouw
Bouwjaar
1938

Oppervlakten en inhoud

Woonoppervlakte
ca. 151m²
Perceeloppervlakte
ca. 680m²
Overig oppervlakte
ca. 54m²
Inhoud
ca. 759m³

Indeling

Aantal kamers
5
Aantal slaapkamers
4
Aantal badkamers
1
Aantal verdiepingen
5
Voorzieningen
Natuurlijke ventilatie, Zonnepanelen

Energie

Energielabel
C
Isolatie
Dubbel glas
Warm water
C.V.-ketel
Verwarming
C.V.-ketel
Ketel
iZone i36CZ HR Combiketel H2 ready (2023, Eigendom)

Buitenruimte

Ligging
Aan rustige weg
Balkon
Ja
Tuin
Tuin rondom

Garage

Soort garage
Aangebouwd steen
Capaciteit
1

Schriftelijkheidsvereiste:

Ter bescherming van de belangen van zowel koper als verkoper, wordt uitdrukkelijk gesteld dat een koopovereenkomst met betrekking tot deze onroerende zaak eerst dan tot stand komt nadat koper en verkoper beide de koopovereenkomst hebben getekend ("schriftelijkheidsvereiste"). Dit betekent dat een bevestiging van de afspraken per e-mail, of een toegestuurd concept van de koopovereenkomst, hier niet onder vallen

Waarborgsom/bankgarantie:

De waarborgsom/bankgarantie is 10% van de koopsom. De koper dient deze uiterlijk 1 week na het vervallen van de ontbindende voorwaarden bij de desbetreffende notaris te deponeren.

Bouwkundige keuring:

Koper is te allen tijde gerechtigd voor eigen rekening een bouwkundige keuring te (laten) verrichten dan wel andere adviseurs te raadplegen teneinde een goed inzicht te verkrijgen over de staat van de woning. De beoordeling van de woning zoals omschreven in bovenstaande presentatie en de brochure is gebaseerd op visuele waarneming, de leeftijd van de woning, en de informatie die verkregen is van de verkoper(s). Een bouwkundige rapportage valt nadrukkelijk buiten de informatie van deze websitepresentatie.

Aansprakelijkheid:

Deze websitepresentatie is door ons Goessens & Goessens Makelaardij met de nodige zorgvuldigheid samengesteld. Onzerzijds wordt echter geen enkele aansprakelijkheid aanvaard voor enige onvolledigheid, onjuist of anderszins, dan wel de gevolgen daarvan. Alle opgegeven maten en oppervlakten zijn indicatief. Deze websitepresentatie is slechts indicatief. Alle vermelden maten zijn circa maten. Er is nagestreefd naar een zo zorgvuldig mogelijke informatie van de ter beschikking staande gegevens. De verkoper heeft een mededelingsplicht inzake zaken die hem bekend zijn van het onroerend goed. De potentiele koper heeft een onderzoek plicht inzake de voor hem van belang zijnde gegevens van het onroerend goed.

Onderzoek plicht koper:

De informatie tijdens de rondleiding en in de websitepresentatie en overig informatiemateriaal is verkregen van de verkoper van de woning en is bedoeld om de koper te informeren. In het Burgerlijk Wetboek staat opgenomen dat op de koper van een woning een onderzoek plicht rust. Onder de onderzoeksplicht vallen bouwkundige gebreken/staat van de woning en publiekrechtelijke openbare informatie (zoals verkeers- /bestemmingsplannen). Een bouwkundige keuring geeft hier duidelijkheid over.

Copyright ©:

Gehele of gedeeltelijke overname, plaatsing op andere sites, advertenties, verveelvoudiging op welke andere wijze dan ook en/of commercieel gebruik van deze informatie (zoals foto’s, plattegronden, teksten, kenmerken etc.), is niet toegestaan, tenzij hiervoor uitdrukkelijk schriftelijke toestemming is verleend door Goessens & Goessens Makelaardij of tenzij aan de onderstaande voorwaarden wordt voldaan. Deze informatie mag worden bekeken , mits de informatie niet wordt gebruikt in een ander werk of publicatie in welk medium dan ook.