Goessens & Goessens Makelaardij gebruikt cookies om de website naar behoren te laten werken, om functies voor social media te bieden en om onze website te analyseren. Op onze website kun je ons Cookiebeleid en Privacybeleid vinden.

Bisschop Eraclesplein 13, Eijsden

Op een rustige en kindvriendelijke locatie in Eijsden bieden wij deze ruime en goed onderhouden tussengelegen woning met aparte garage aan. De woning ligt aan een aantrekkelijk en rustig woonerf en beschikt over maar liefst 4 slaapkamers (mogelijk 5), 12 zonnepanelen en een royale, sfeervolle achtertuin die volop ruimte biedt voor ontspanning en buitenleven. Met de doordachte indeling en diverse mogelijkheden biedt deze woning een perfecte combinatie van comfort en functionaliteit, geschikt voor het hele gezin, nu en in de toekomst.

De ligging is bijzonder gunstig: winkels, scholen en diverse andere voorzieningen zijn op loopafstand bereikbaar. Daarnaast zijn Maastricht, het MUMC+ en de Universiteit Maastricht binnen 15 minuten met de auto bereikbaar. Deze woning is daardoor uitermate geschikt voor gezinnen en biedt volop kansen om er een thuis van te maken waar iedereen zich thuis voelt.

Nieuw Onder bod

€ 389.000 k.k.

Woningtype
Tussenwoning

Woonoppervlakte
ca. 126m²

Perceeloppervlakte
ca. 146m²

Inhoud
ca. 448m³

Kamers
6

Slaapkamers
5

Bouwjaar
1979

Aanvaarding
In overleg

Omschrijving

Deze woning wordt aangeboden door Goessens & Goessens Makelaardij

-Beschrijving:
Op een rustige en kindvriendelijke locatie in Eijsden bieden wij deze ruime en goed onderhouden tussengelegen woning met aparte garage aan. De woning ligt aan een aantrekkelijk en rustig woonerf en beschikt over maar liefst 4 slaapkamers (mog 5), 12 zonnepanelen en een royale, sfeervolle achtertuin die volop ruimte biedt voor ontspanning en buitenleven. Met de doordachte indeling en diverse mogelijkheden biedt deze woning een perfecte combinatie van comfort en functionaliteit, geschikt voor het hele gezin, nu en in de toekomst.

De ligging is bijzonder gunstig: winkels, scholen en diverse andere voorzieningen zijn op loopafstand bereikbaar. Daarnaast zijn Maastricht, het MUMC+ en de Universiteit Maastricht binnen 15 minuten met de auto bereikbaar. Deze woning is daardoor uitermate geschikt voor gezinnen en biedt volop kansen om er een thuis van te maken waar iedereen zich thuis voelt.

-Indeling:

-Begane grond:
Bij binnenkomst treft u de ruime entree van ca. 5,5 m², voorzien van een nette tegelvloer. Vanuit de entree heeft u toegang tot de meterkast, de toiletruimte, de woonkamer en de trap naar de eerste verdieping. De betegelde toiletruimte is uitgerust met een modern hangcloset en een fonteintje.

De woonkamer, bereikbaar via een fraaie zwartstalen deur, vormt een lichte en aangename leefruimte van ca. 41,5 m², inclusief de open keuken. Meerdere grote raampartijen zorgen voor veel daglicht en een mooie verbinding met de achtertuin, waardoor binnen en buiten naadloos in elkaar overlopen. In de woonkamer bevindt zich bovendien een praktische kastruimte, eveneens voorzien van een zwartstalen deur, ideaal als opbergruimte of voorraadkast.

De L-vormige keuken aan de voorzijde van de woning is praktisch ingedeeld en volledig uitgerust met een 4-pits gasfornuis, afzuigkap, oven, vaatwasser en veel werk- en opbergruimte. Het grote raam biedt contact met de straat en zorgt voor een licht en luchtig werkplekje.

-Eerste verdieping:
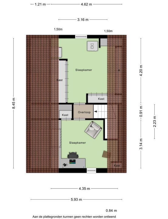
Via de trap in de entree bereikt u de overloop van de eerste verdieping. Hier bevinden zich drie ruime slaapkamers, de badkamer en een handige kastruimte. De overloop biedt tevens toegang tot de tweede verdieping via een vaste trap. Deze verdieping is afgewerkt met een mooie laminaatvloer.
• Slaapkamer 1: ca. 15 m² groot.
• Slaapkamer 2: ca. 12 m² groot.
• Slaapkamer 3: ca. 10 m², ideaal als babykamer of hobbyruimte.
• Badkamer: ca. 4 m², volledig betegeld en voorzien van douchecabine, wastafel en hangcloset.

-Tweede verdieping:
Op de tweede verdieping bevindt zich nog 1 ruime slaapkamer en 1 waskamer/slaapkamer, beide zijn bereikbaar via de overloop.
• Berging/Slaapkamer/wasruimte: ca. 17 m², voorzien van witgoedaansluiting.
• Slaapkamer 4: ca. 12 m² groot.

-Garage:
De woning beschikt over een ruime garage van ca. 17 m², bereikbaar vanuit de tuin en via een handmatig bedienbare kantelpoort aan de straatzijde. De garage is voorzien van elektra en water en biedt voldoende ruimte voor een auto, fietsen of extra opslag.

• Tuin
De royale en sfeervolle achtertuin is volledig omheind en onderhoudsvriendelijk aangelegd. Met een verzorgd terras en groene borders vormt het een ideale plek om te ontspannen, te genieten van alle rust, of een gezellige buitenruimte te creëren voor het hele gezin. Het uitschuifbare zonnescherm grenst direct aan de woonkamer en maakt het buitenleven nog aangenamer. De tuin is toegankelijk vanuit zowel de woonkamer als de garage en biedt volop mogelijkheden voor een persoonlijke inrichting.

-Nadere bijzonderheden:
• Type woning: Zeer nette, tussengelegen woning met garage, vijf slaapkamers, 12 zonnepanelen en een sfeervolle, onderhoudsvriendelijke tuin, gelegen op een rustige en kindvriendelijke locatie in Eijsden.
• Kozijnen: Kunststof kozijnen met uitzondering van de kozijnen in de achtergevel op de begane grond. Deze zijn van hout. Volledig dubbele beglazing.
• Centrale verwarming: HR combi-ketel (2012, Nefit, Eigendom).
• Energielabel: In aanvraag.
• Zonnepanelen: 12 zonnepanelen in eigendom (2024).
• Alle vermelde afmetingen zijn indicatief en kunnen afwijken van de werkelijkheid.

-Omgeving:
Deze woning bevindt zich in het geliefde Eijsden, op een uiterst praktische locatie. Alle voorzieningen zijn binnen handbereik: winkelcentrum met o.a. een supermarkt en drogist, op slechts 1 minuut loopafstand,. Scholen, een treinstation en busverbindingen zijn ook op loopafstand. Daarnaast kunt u genieten van de gezellige terrasjes en sfeervolle eetcafés langs de Maas. Het bruisende centrum van Maastricht, het MUMC+ en de Universiteit Maastricht (UM) liggen op slechts 15 minuten rijden. Bovendien biedt Eijsden uitstekende verbindingen: een directe treinverbinding naar Maastricht en Luik, en een goede busverbinding naar Maastricht. Eijsden staat ook bekend om haar rijke tradities, zoals de jaarlijkse “Broonk”, een feestelijke gelegenheid om de hartelijke dorpsgemeenschap beter te leren kennen. Deze combinatie van bereikbaarheid, voorzieningen en gezelligheid maakt deze locatie uniek.

Voor meer verkoopinformatie, onze disclaimer en de verkoopvoorwaarden verwijzen wij u graag naar onze website: goessens-makelaardij.nl. Deze presentatie is met de grootste zorg samengesteld door Goessens & Goessens Makelaardij. Ondanks onze inspanningen aanvaarden wij geen enkele aansprakelijkheid voor eventuele onvolledigheden, onjuistheden of de gevolgen hiervan. Alle vermelde maten en oppervlakten zijn indicatief. Wij streven ernaar om u zo zorgvuldig mogelijk te informeren op basis van de beschikbare gegevens. Deze presentatie dient echter uitsluitend ter indicatie. Voor meer details of aanvullende informatie staan wij uiteraard graag voor u klaar.

Reageren op deze woning?

Bent u enthousiast geworden na het lezen van deze woningpresentatie en wilt u vrijblijvend meer informatie over deze woning ontvangen? Of wilt een bezichtiging aanvragen? Vul onderstaand contactformulier in en wij nemen z.s.m. contact met u op.

Uw bericht is naar ons verzonden. Wij nemen zo snel mogelijk contact met u op.

Sorry, we kunnen helaas niet met zekerheid vaststellen of je een mens of een geautomatiseerde bot/spammer bent. Hierdoor kunnen we het formulier dat je hebt ingevuld niet verzenden. Probeer het opnieuw of neem direct contact op met de makelaar via e-mail.

Er is iets mis gegaan met het versturen van het formulier.
Controleer of u alle velden (goed) heeft ingevoerd en probeer het nog een keer.

U zult automatisch een kopie van dit ingevuld contactformulier ontvangen op het door u ingevulde e-mailadres.

Wij vragen alleen uw gegevens die nodig zijn voor het beantwoorden van uw verzoek. Voor meer informatie verwijzen wij u naar onze privacyverklaring op onze website. Bij het versturen van dit formulier gaat u hiermee akkoord.

recaptcha
reCAPTCHA
PrivacyTerms

Heeft u liever dat wij u terugbellen?

Laat uw telefoonnummer achter en wij bellen u zo spoedig mogelijk terug.

Uw bericht is naar ons verzonden. Wij nemen zo snel mogelijk contact met u op.

Sorry, we kunnen helaas niet met zekerheid vaststellen of je een mens of een geautomatiseerde bot/spammer bent. Hierdoor kunnen we het formulier dat je hebt ingevuld niet verzenden. Probeer het opnieuw of neem direct contact op met de makelaar via e-mail.

Er is iets mis gegaan met het versturen van het formulier.
Controleer of u alle velden (goed) heeft ingevoerd en probeer het nog een keer.

recaptcha
reCAPTCHA
PrivacyTerms

Uw woning verkopen?

Wanneer u overweegt om uw huis te verkopen, vraag dan een vrijblijvend adviesgesprek en een waardebepaling aan. Wij maken graag een afspraak met u!

Gratis adviesgesprek

Locatie

[ { "lat": 50.7806274, "lng": 5.7124473, "heading": 0, "pitch": 0 } ]

Kenmerken

Aanvaarding

Prijs
€ 389.000 k.k.
Status
Onder bod
Oplevering
In overleg
Adres
Bisschop Eraclesplein 13
Postcode
6245 HK
Plaats
Eijsden

Bouw

Soort woonhuis
Eengezinswoning, Tussenwoning
Soort bouw
Bestaande bouw
Bouwjaar
1979

Oppervlakten en inhoud

Woonoppervlakte
ca. 126m²
Perceeloppervlakte
ca. 146m²
Inhoud
ca. 448m³

Indeling

Aantal kamers
6
Aantal slaapkamers
5
Aantal badkamers
1
Aantal verdiepingen
3
Voorzieningen
Natuurlijke ventilatie, TV-Kabel

Energie

Isolatie
Dubbel glas
Warm water
C.V.-ketel
Verwarming
C.V.-ketel
Ketel
(2025, Combi-ketel, Eigendom)

Buitenruimte

Ligging
Aan rustige weg
Tuin
Tuin rondom

Garage

Soort garage
Aangebouwd steen
Capaciteit
1

Schriftelijkheidsvereiste:

Ter bescherming van de belangen van zowel koper als verkoper, wordt uitdrukkelijk gesteld dat een koopovereenkomst met betrekking tot deze onroerende zaak eerst dan tot stand komt nadat koper en verkoper beide de koopovereenkomst hebben getekend ("schriftelijkheidsvereiste"). Dit betekent dat een bevestiging van de afspraken per e-mail, of een toegestuurd concept van de koopovereenkomst, hier niet onder vallen

Waarborgsom/bankgarantie:

De waarborgsom/bankgarantie is 10% van de koopsom. De koper dient deze uiterlijk 1 week na het vervallen van de ontbindende voorwaarden bij de desbetreffende notaris te deponeren.

Bouwkundige keuring:

Koper is te allen tijde gerechtigd voor eigen rekening een bouwkundige keuring te (laten) verrichten dan wel andere adviseurs te raadplegen teneinde een goed inzicht te verkrijgen over de staat van de woning. De beoordeling van de woning zoals omschreven in bovenstaande presentatie en de brochure is gebaseerd op visuele waarneming, de leeftijd van de woning, en de informatie die verkregen is van de verkoper(s). Een bouwkundige rapportage valt nadrukkelijk buiten de informatie van deze websitepresentatie.

Aansprakelijkheid:

Deze websitepresentatie is door ons Goessens & Goessens Makelaardij met de nodige zorgvuldigheid samengesteld. Onzerzijds wordt echter geen enkele aansprakelijkheid aanvaard voor enige onvolledigheid, onjuist of anderszins, dan wel de gevolgen daarvan. Alle opgegeven maten en oppervlakten zijn indicatief. Deze websitepresentatie is slechts indicatief. Alle vermelden maten zijn circa maten. Er is nagestreefd naar een zo zorgvuldig mogelijke informatie van de ter beschikking staande gegevens. De verkoper heeft een mededelingsplicht inzake zaken die hem bekend zijn van het onroerend goed. De potentiele koper heeft een onderzoek plicht inzake de voor hem van belang zijnde gegevens van het onroerend goed.

Onderzoek plicht koper:

De informatie tijdens de rondleiding en in de websitepresentatie en overig informatiemateriaal is verkregen van de verkoper van de woning en is bedoeld om de koper te informeren. In het Burgerlijk Wetboek staat opgenomen dat op de koper van een woning een onderzoek plicht rust. Onder de onderzoeksplicht vallen bouwkundige gebreken/staat van de woning en publiekrechtelijke openbare informatie (zoals verkeers- /bestemmingsplannen). Een bouwkundige keuring geeft hier duidelijkheid over.

Copyright ©:

Gehele of gedeeltelijke overname, plaatsing op andere sites, advertenties, verveelvoudiging op welke andere wijze dan ook en/of commercieel gebruik van deze informatie (zoals foto’s, plattegronden, teksten, kenmerken etc.), is niet toegestaan, tenzij hiervoor uitdrukkelijk schriftelijke toestemming is verleend door Goessens & Goessens Makelaardij of tenzij aan de onderstaande voorwaarden wordt voldaan. Deze informatie mag worden bekeken , mits de informatie niet wordt gebruikt in een ander werk of publicatie in welk medium dan ook.