Goessens & Goessens Makelaardij gebruikt cookies om de website naar behoren te laten werken, om functies voor social media te bieden en om onze website te analyseren. Op onze website kun je ons Cookiebeleid en Privacybeleid vinden.

Beezepool 87, Eijsden

Nieuw Verkocht onder voorbehoud

€ 339.000 k.k.

Woningtype
Tussenwoning

Woonoppervlakte
ca. 120m²

Perceeloppervlakte
ca. 167m²

Inhoud
ca. 424m³

Kamers
5

Slaapkamers
4

Bouwjaar
1974

Aanvaarding
In overleg

Omschrijving

Deze woning wordt aangeboden door Goessens & Goessens Makelaardij

-Beschrijving:
In een rustige en kindvriendelijke straat in Eijsden vindt u deze goed onderhouden, verrassend ruime woning met oprit aan de voorzijde. Deze fijne gezinswoning beschikt over drie comfortabele slaapkamers en biedt de mogelijkheid om eenvoudig een vierde slaapkamer te creëren dankzij de vaste trap naar de ruime zolderverdieping. Met energielabel B, 10 zonnepanelen en een volledig omsloten, onderhoudsvriendelijke tuin met achteringang, is dit een woning waarin comfort en praktische woonwensen hand in hand gaan.

De ligging is bijzonder gunstig: diverse winkels, een basisschool en andere dagelijkse voorzieningen liggen op korte loop- of fietsafstand. Tegelijkertijd bereikt u het bruisende centrum van Maastricht, het MUMC+ en de Universiteit Maastricht in ongeveer 10 minuten met de auto. Zo combineert deze woning rust en privacy met een uitstekende bereikbaarheid.

Of u nu een gezin bent dat behoefte heeft aan een rustige en veilige woonomgeving, of een werkende die dichtbij de stad wil wonen zonder in te leveren op comfort, deze woning biedt een prettige basis die u naar eigen wens kunt vormgeven en direct comfortabel kunt betrekken.

-Indeling:

-Begane grond:
Via een verzorgde entree met nette laminaatvloer betreedt u de woning. Hier bevinden zich de meterkast, een moderne toiletruimte en de trap naar de eerste verdieping. De toiletruimte is volledig betegeld en voorzien van een modern hangcloset, strak en functioneel.

De woonkamer van circa 33 m² is licht, ruim en uitnodigend en biedt volop mogelijkheden om te ontspannen, te werken of samen te komen met familie en vrienden. De laminaatvloer loopt naadloos door vanuit de hal, wat bijdraagt aan een ruimtelijk gevoel. Dankzij de grote raampartijen is er veel natuurlijke lichtinval, waardoor de kamer een warme en prettige sfeer uitstraalt.

De keuken (ca. 7 m²), gelegen aan de achterzijde van de woning, is uitgerust met een 4-pits gasfornuis, afzuigkap, koelkast en vaatwasser. Vanuit de keuken heeft u direct toegang tot de tuin, waardoor binnen en buiten mooi met elkaar verbonden zijn.

-Eerste verdieping:
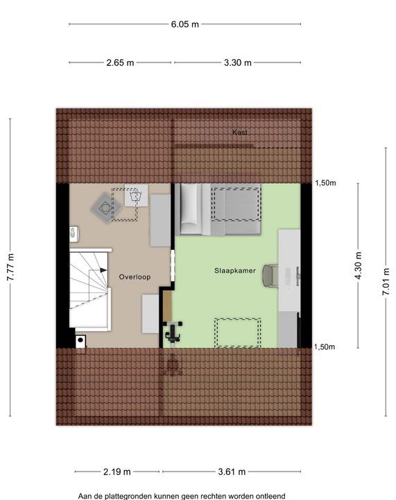
Via de vaste trap in de entree bereikt u de eerste verdieping. De overloop biedt toegang tot drie slaapkamers en de badkamer, en leidt tevens naar de zolderverdieping.
• Slaapkamer 1: Deze ruime slaapkamer is ca. 14 m² groot.
• Slaapkamer 2: Deze comfortabele slaapkamer is ca. 12 m² groot.
• Slaapkamer 3: Deze slaapkamer is ca. 9 m² groot en ideaal te gebruiken als hobby- of kinderkamer.
• Badkamer: De nette en moderne badkamer is ca. 5 m² groot en voorzien van een inloopdouche, een wastafelmeubel met dubbele wastafel, een hangcloset en een handdoekradiator.

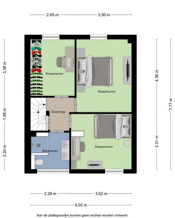
-Zolderverdieping:
De vaste trap leidt naar de zolderverdieping, bestaande uit een ruime overloop van ca. 19 m², voorzien van witgoedaansluiting en de cv-installatie (Nefit, 2009, eigendom). De zolderruimte, voorzien van een dakvenster, biedt een ruimte van ca. 26 m²met nog volop mogelijkheden: hier kunt u eenvoudig een extra slaapkamer, hobbyruimte, werkruimte of een plek geheel naar eigen wens creëren. Er is een hoge nok aanwezig, dus een verdere afwerking zou in principe kunnen volstaan.

-Tuin:
De volledig omsloten en onderhoudsvriendelijke achtertuin biedt privacy, rust en volop mogelijkheden om naar eigen smaak in te richten. Met een combinatie van terras, gazon en beplanting is er ruimte voor spel, ontspanning of tuinieren. Onder de ruime overkapping (ca. 22 m²) kunt u heerlijk beschut zitten, grenzend aan de woonkamer en keuken. Daarnaast is er een praktische berging van circa 9 m², ideaal voor fietsen, tuingereedschap of extra opslag.

-Nadere bijzonderheden:
• Type woning: Uitstekend onderhouden, tussengelegen woning voorzien van drie slaapkamers en een onderhoudsvriendelijke tuin, op een fijne, rustige en kindvriendelijke locatie in Eijsden.
• Kozijnen: Kunststof kozijnen met dubbele beglazing.
• Centrale verwarming: HR cv-ketel (Nefit, 2009, Eigendom).
• Rolluiken: De woning is gedeeltelijk voorzien van rolluiken.
• Energielabel: B.
• Zonnepanelen: 10 zonnepanelen in eigendom (2024).
• Alle vermelde afmetingen zijn indicatief en kunnen afwijken van de werkelijkheid.

-Omgeving:
Deze woning bevindt zich in het geliefde Eijsden, op een uiterst praktische locatie. Alle voorzieningen zijn binnen handbereik: winkelcentrum met o.a. een supermarkt en drogist, op slechts 1 minuut loopafstand. Scholen, een treinstation en busverbindingen zijn ook op loopafstand. Daarnaast kunt u genieten van de gezellige terrasjes en sfeervolle eetcafés langs de Maas. Het bruisende centrum van Maastricht, het MUMC+ en de Universiteit Maastricht (UM) liggen op slechts 15 minuten rijden. Bovendien biedt Eijsden uitstekende verbindingen: een directe treinverbinding naar Maastricht en Luik, en een goede busverbinding naar Maastricht. Eijsden staat ook bekend om haar rijke tradities, zoals de jaarlijkse “Broonk”, een feestelijke gelegenheid om de hartelijke dorpsgemeenschap beter te leren kennen. Deze combinatie van bereikbaarheid, voorzieningen en gezelligheid maakt deze locatie uniek.

Voor meer verkoopinformatie, onze disclaimer en de verkoopvoorwaarden verwijzen wij u graag naar onze website: goessens-makelaardij.nl. Deze presentatie is met de grootste zorg samengesteld door Goessens & Goessens Makelaardij. Ondanks onze inspanningen aanvaarden wij geen enkele aansprakelijkheid voor eventuele onvolledigheden, onjuistheden of de gevolgen hiervan. Alle vermelde maten en oppervlakten zijn indicatief. Wij streven ernaar om u zo zorgvuldig mogelijk te informeren op basis van de beschikbare gegevens. Deze presentatie dient echter uitsluitend ter indicatie. Voor meer details of aanvullende informatie staan wij uiteraard graag voor u klaar.

Reageren op deze woning?

Bent u enthousiast geworden na het lezen van deze woningpresentatie en wilt u vrijblijvend meer informatie over deze woning ontvangen? Of wilt een bezichtiging aanvragen? Vul onderstaand contactformulier in en wij nemen z.s.m. contact met u op.

Uw bericht is naar ons verzonden. Wij nemen zo snel mogelijk contact met u op.

Sorry, we kunnen helaas niet met zekerheid vaststellen of je een mens of een geautomatiseerde bot/spammer bent. Hierdoor kunnen we het formulier dat je hebt ingevuld niet verzenden. Probeer het opnieuw of neem direct contact op met de makelaar via e-mail.

Er is iets mis gegaan met het versturen van het formulier.
Controleer of u alle velden (goed) heeft ingevoerd en probeer het nog een keer.

U zult automatisch een kopie van dit ingevuld contactformulier ontvangen op het door u ingevulde e-mailadres.

Wij vragen alleen uw gegevens die nodig zijn voor het beantwoorden van uw verzoek. Voor meer informatie verwijzen wij u naar onze privacyverklaring op onze website. Bij het versturen van dit formulier gaat u hiermee akkoord.

recaptcha
reCAPTCHA
PrivacyTerms

Heeft u liever dat wij u terugbellen?

Laat uw telefoonnummer achter en wij bellen u zo spoedig mogelijk terug.

Uw bericht is naar ons verzonden. Wij nemen zo snel mogelijk contact met u op.

Sorry, we kunnen helaas niet met zekerheid vaststellen of je een mens of een geautomatiseerde bot/spammer bent. Hierdoor kunnen we het formulier dat je hebt ingevuld niet verzenden. Probeer het opnieuw of neem direct contact op met de makelaar via e-mail.

Er is iets mis gegaan met het versturen van het formulier.
Controleer of u alle velden (goed) heeft ingevoerd en probeer het nog een keer.

recaptcha
reCAPTCHA
PrivacyTerms

Uw woning verkopen?

Wanneer u overweegt om uw huis te verkopen, vraag dan een vrijblijvend adviesgesprek en een waardebepaling aan. Wij maken graag een afspraak met u!

Gratis adviesgesprek

Locatie

[ { "lat": 50.775335, "lng": 5.7140806, "heading": 0, "pitch": 0 } ]

Kenmerken

Aanvaarding

Prijs
€ 339.000 k.k.
Status
Verkocht onder voorbehoud
Oplevering
In overleg
Adres
Beezepool 87
Postcode
6245 JJ
Plaats
Eijsden

Bouw

Soort woonhuis
Eengezinswoning, Tussenwoning
Soort bouw
Bestaande bouw
Bouwjaar
1974

Oppervlakten en inhoud

Woonoppervlakte
ca. 120m²
Perceeloppervlakte
ca. 167m²
Inhoud
ca. 424m³

Indeling

Aantal kamers
5
Aantal slaapkamers
4
Aantal badkamers
1
Aantal verdiepingen
3
Voorzieningen
Dakraam, Natuurlijke ventilatie

Energie

Energielabel
B
Isolatie
Dubbel glas
Warm water
C.V.-ketel
Verwarming
C.V.-ketel
Ketel
Nefit (2009, Eigendom)

Buitenruimte

Ligging
Aan rustige weg
Tuin
Tuin rondom

Schriftelijkheidsvereiste:

Ter bescherming van de belangen van zowel koper als verkoper, wordt uitdrukkelijk gesteld dat een koopovereenkomst met betrekking tot deze onroerende zaak eerst dan tot stand komt nadat koper en verkoper beide de koopovereenkomst hebben getekend ("schriftelijkheidsvereiste"). Dit betekent dat een bevestiging van de afspraken per e-mail, of een toegestuurd concept van de koopovereenkomst, hier niet onder vallen

Waarborgsom/bankgarantie:

De waarborgsom/bankgarantie is 10% van de koopsom. De koper dient deze uiterlijk 1 week na het vervallen van de ontbindende voorwaarden bij de desbetreffende notaris te deponeren.

Bouwkundige keuring:

Koper is te allen tijde gerechtigd voor eigen rekening een bouwkundige keuring te (laten) verrichten dan wel andere adviseurs te raadplegen teneinde een goed inzicht te verkrijgen over de staat van de woning. De beoordeling van de woning zoals omschreven in bovenstaande presentatie en de brochure is gebaseerd op visuele waarneming, de leeftijd van de woning, en de informatie die verkregen is van de verkoper(s). Een bouwkundige rapportage valt nadrukkelijk buiten de informatie van deze websitepresentatie.

Aansprakelijkheid:

Deze websitepresentatie is door ons Goessens & Goessens Makelaardij met de nodige zorgvuldigheid samengesteld. Onzerzijds wordt echter geen enkele aansprakelijkheid aanvaard voor enige onvolledigheid, onjuist of anderszins, dan wel de gevolgen daarvan. Alle opgegeven maten en oppervlakten zijn indicatief. Deze websitepresentatie is slechts indicatief. Alle vermelden maten zijn circa maten. Er is nagestreefd naar een zo zorgvuldig mogelijke informatie van de ter beschikking staande gegevens. De verkoper heeft een mededelingsplicht inzake zaken die hem bekend zijn van het onroerend goed. De potentiele koper heeft een onderzoek plicht inzake de voor hem van belang zijnde gegevens van het onroerend goed.

Onderzoek plicht koper:

De informatie tijdens de rondleiding en in de websitepresentatie en overig informatiemateriaal is verkregen van de verkoper van de woning en is bedoeld om de koper te informeren. In het Burgerlijk Wetboek staat opgenomen dat op de koper van een woning een onderzoek plicht rust. Onder de onderzoeksplicht vallen bouwkundige gebreken/staat van de woning en publiekrechtelijke openbare informatie (zoals verkeers- /bestemmingsplannen). Een bouwkundige keuring geeft hier duidelijkheid over.

Copyright ©:

Gehele of gedeeltelijke overname, plaatsing op andere sites, advertenties, verveelvoudiging op welke andere wijze dan ook en/of commercieel gebruik van deze informatie (zoals foto’s, plattegronden, teksten, kenmerken etc.), is niet toegestaan, tenzij hiervoor uitdrukkelijk schriftelijke toestemming is verleend door Goessens & Goessens Makelaardij of tenzij aan de onderstaande voorwaarden wordt voldaan. Deze informatie mag worden bekeken , mits de informatie niet wordt gebruikt in een ander werk of publicatie in welk medium dan ook.