Goessens & Goessens Makelaardij gebruikt cookies om de website naar behoren te laten werken, om functies voor social media te bieden en om onze website te analyseren. Op onze website kun je ons Cookiebeleid en Privacybeleid vinden.

Molenweg 12, Eckelrade

Zoekt u een vrijstaande woning op een royaal perceel, met een unieke ligging en op korte afstand van Maastricht? Dan is deze woning absoluut het bezichtigen waard!

Welkom bij deze sfeervolle en statige vrijstaande woning met garage, gelegen op een rustige en mooie locatie in het geliefde Eckelrade. De woning biedt een fijne combinatie van ruimte, karakter en mogelijkheden, ideaal voor wie comfortabel wil wonen in een landelijke omgeving.

Het royale perceel van circa 634 m² met vrij uitzicht over de omliggende weilanden zorgt voor veel rust, privacy en een open gevoel. Daarnaast beschikt de woning over een vrijstaande garage, een ruime oprit en vier slaapkamers, met de mogelijkheid tot het realiseren van een vijfde slaapkamer. De woning is altijd goed onderhouden en biedt tegelijkertijd volop kansen om deze naar eigen smaak te moderniseren en verder te optimaliseren.

De ligging is gunstig ten opzichte van de A2 en diverse uitvalswegen, waardoor het centrum van Maastricht binnen enkele minuten bereikbaar is, terwijl u thuis geniet van de rust van Eckelrade.

Kortom, een charmante woning met veel potentie op een aantrekkelijke locatie met groen uitzicht.

Nieuw Verkocht onder voorbehoud

€ 449.000 k.k.

Woningtype
Vrijstaande woning

Woonoppervlakte
ca. 97m²

Perceeloppervlakte
ca. 634m²

Inhoud
ca. 547m³

Kamers
5

Slaapkamers
4

Bouwjaar
1956

Aanvaarding
In overleg

Omschrijving

Deze woning wordt aangeboden door Goessens & Goessens Makelaardij

-Beschrijving:
Zoekt u een vrijstaande woning op een royaal perceel, met een unieke ligging en op korte afstand van Maastricht? Dan is deze woning absoluut het bezichtigen waard!

Welkom bij deze sfeervolle en statige vrijstaande woning met garage, gelegen op een rustige en mooie locatie in het geliefde Eckelrade. De woning biedt een fijne combinatie van ruimte, karakter en mogelijkheden, ideaal voor wie comfortabel wil wonen in een landelijke omgeving.

Het royale perceel van circa 634 m² met vrij uitzicht over de omliggende weilanden zorgt voor veel rust, privacy en een open gevoel. Daarnaast beschikt de woning over een vrijstaande garage, een ruime oprit en vier slaapkamers, met de mogelijkheid tot het realiseren van een vijfde slaapkamer. De woning is altijd goed onderhouden en biedt tegelijkertijd volop kansen om deze naar eigen smaak te moderniseren en verder te optimaliseren.

De ligging is gunstig ten opzichte van de A2 en diverse uitvalswegen, waardoor het centrum van Maastricht binnen enkele minuten bereikbaar is, terwijl u thuis geniet van de rust van Eckelrade.

Kortom, een charmante woning met veel potentie op een aantrekkelijke locatie met groen uitzicht.

-Indeling:

-Kelder:
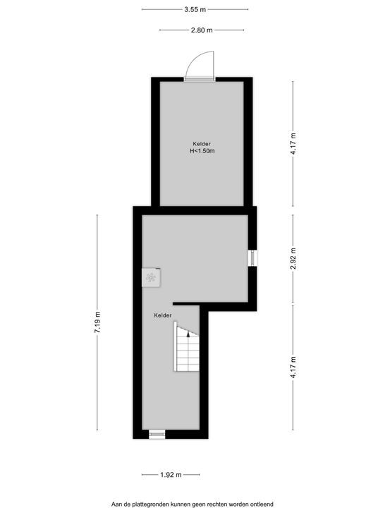
De woning beschikt over een ruime kelder van circa 19 m², ideaal voor het opbergen van voorraad, wijn, of het plaatsen van een extra vriezer of koelkast. Aan deze kelder grenst een extra ruimte van ca. 12 m², die bereikbaar is via de tuin. Deze extra ruimte biedt veelzijdige mogelijkheden, bijvoorbeeld voor opslag of een hobbyruimte.

-Begane grond:
Via de entree van circa 8 m² betreedt u de woning. De hal is afgewerkt met een stijlvolle tegelvloer en geeft toegang tot de meterkast, de keuken en de woonkamer.

De woonkamer van ca. 27 m² is een warme en sfeervolle leefruimte, die dankzij de grote raampartijen aan zowel de voor- als achterzijde wordt overspoeld door natuurlijk licht. De achterramen bieden een prachtig uitzicht over de omliggende weilanden en creëren een gevoel van rust en ruimte. De houten vloer en twee authentieke schouwen dragen bij aan de klassieke en uitnodigende uitstraling van deze ruimte.

De nette keuken (ca. 10,5 m²) bevindt zich aan de achterzijde van de woning en is voorzien van een tegelvloer. De keuken is uitgerust met een elektrische kookplaat en afzuigkap en biedt directe toegang tot de bijkeuken.

De bijkeuken (ca. 10 m²) is een praktische ruimte voor extra opslag. Hier bevindt zich de witgoedaansluiting en de cv-installatie (eigendom, Nefit), en tevens is hier een betegelde toiletruimte met staand closet en fonteintje. Vanuit de bijkeuken heeft u tevens toegang tot de tuin, waardoor deze ruimte een functioneel en verbindend hart vormt tussen binnen en buiten.

-Eerste verdieping:
Via de trap in de entree bereikt u de eerste verdieping. De overloop biedt toegang tot vier slaapkamers en de badkamer, evenals een vlizotrap naar de zolder.
• Slaapkamer 1: Deze ruime slaapkamer is ca. 12 m² groot.
• Slaapkamer 2: Deze comfortabele kamer is ca. 10 m² groot.
• Slaapkamer 3: Deze kamer is ca. 8,5 m² groot en voorzien van muurkasten.
• Slaapkamer 4: Deze kamer is ca. 5 m² groot. Ideaal als kinderkamer of babykamer.
• Badkamer: De nette badkamer is voorzien van een douche en een wastafel. Indien gewenst, bestaat de mogelijkheid om de badkamer te vergroten door een van de aangrenzende slaapkamers (gedeeltelijk) bij de ruimte te betrekken, waarbij rekening kan worden gehouden met de realisatie van een vaste trap naar de zolder.

-Zolder:
Via de vlizotrap bereikt u de zolder met een vloeroppervlakte van circa 43 m². Met relatief eenvoudige aanpassingen, zoals het plaatsen van een vaste trap en een dakkapel, kan hier een volwaardige en royale vijfde slaapkamer worden gerealiseerd.
De ruimte is veelzijdig in gebruik en biedt volop mogelijkheden om deze geheel naar eigen wens in te richten, bijvoorbeeld als extra slaapkamer, hobbyruimte of kantoor aan huis. Een ideale uitbreiding voor wie op zoek is naar extra leefruimte.

-Garage:
Aan de achterzijde van de woning bevindt zich een royale vrijstaande garage van circa 34 m². De garage is bereikbaar via een elektrisch bedienbare kantelpoort en een toegangsdeur, en voorzien van elektra. Hier is voldoende ruimte voor het parkeren van een voertuig, het stallen van fietsen, of het opbergen van gereedschap en tuingereedschap. De oprit biedt daarnaast de mogelijkheid om meerdere voertuigen te parkeren, wat het geheel zeer praktisch maakt voor gezinnen of bezoekers.

-Tuin:
De rondom gelegen tuin vormt zonder twijfel één van de absolute hoogtepunten van deze woning. Deze privacy volle buitenruimte is bereikbaar via de bijkeuken en de praktische poort met oprit aan de zijkant. Met meerdere royale terrassen en plantenborders biedt de tuin een fijne combinatie van comfort en gebruiksgemak. Het ruime perceel onderscheidt zich vooral door het prachtige, vrije uitzicht over de omliggende weilanden, een zeldzaam en bijzonder kenmerk dat deze woning écht uniek maakt. Hier ervaart u dagelijks rust, ruimte en een gevoel van vrijheid.

Daarnaast biedt de tuin volop mogelijkheden om deze geheel naar eigen wens in te richten. Denk aan extra terrassen, een grasveld, een moestuin of een speelplek voor kinderen. Of u nu wilt ontspannen, buiten wilt eten of gewoon wilt genieten van de omgeving, hier kan het allemaal.

-Nadere bijzonderheden:
• Type woning: Vrijstaande woning met veel mogelijkheden, voorzien van garage en royale tuin rondom de woning, gelegen op een ruim perceel van ca. 634 m² in Eckelrade.
• Woning met unieke ligging!
• Kozijnen: Houten kozijnen en dubbele beglazing.
• Rolluiken: De woning is voorzien van een elektrisch rolluik aan de achterzijde en een elektrisch bedienbare screen aan de voorzijde.
• Centrale verwarming: HR combi-ketel (Eigendom, Nefit)
• Energielabel: D. Met nog voldoende mogelijkheden tot verduurzaming, die de makelaar u graag toelicht tijdens de bezichtiging.
• Alle vermelde afmetingen zijn indicatief en kunnen afwijken van de werkelijkheid.

-Omgeving:
Deze woning ligt in het karakteristieke en landelijke Eckelrade, een sfeervol dorp in de gemeente Eijsden-Margraten. Eckelrade staat bekend om zijn gemoedelijke sfeer, sterke gemeenschapsgevoel en rijke tradities. Het dorp is prachtig gelegen tussen glooiende heuvels, uitgestrekte akkers en het nabijgelegen Savelsbos, een geliefde plek voor wandelaars en natuurliefhebbers. Ondanks de rustige, landelijke ligging zijn de stedelijke voorzieningen in o.a. Maastricht gemakkelijk te bereiken. Binnen circa 15 autominuten bereikt u het centrum van Maastricht, het MUMC+ en de Universiteit Maastricht. Ook diverse uitvalswegen zijn snel en gemakkelijk bereikbaar, wat van Eckelrade een fijne uitvalsbasis maakt voor wie landelijk wil wonen zonder afgelegen te zijn.

Voor meer verkoopinformatie, onze disclaimer en de verkoopvoorwaarden verwijzen wij u graag naar onze website: goessens-makelaardij.nl. Deze presentatie is met de grootste zorg samengesteld door Goessens & Goessens Makelaardij. Ondanks onze inspanningen aanvaarden wij geen enkele aansprakelijkheid voor eventuele onvolledigheden, onjuistheden of de gevolgen hiervan. Alle vermelde maten en oppervlakten zijn indicatief. Wij streven ernaar om u zo zorgvuldig mogelijk te informeren op basis van de beschikbare gegevens. Deze presentatie dient echter uitsluitend ter indicatie. Voor meer details of aanvullende informatie staan wij uiteraard graag voor u klaar.

Reageren op deze woning?

Bent u enthousiast geworden na het lezen van deze woningpresentatie en wilt u vrijblijvend meer informatie over deze woning ontvangen? Of wilt een bezichtiging aanvragen? Vul onderstaand contactformulier in en wij nemen z.s.m. contact met u op.

Uw bericht is naar ons verzonden. Wij nemen zo snel mogelijk contact met u op.

Sorry, we kunnen helaas niet met zekerheid vaststellen of je een mens of een geautomatiseerde bot/spammer bent. Hierdoor kunnen we het formulier dat je hebt ingevuld niet verzenden. Probeer het opnieuw of neem direct contact op met de makelaar via e-mail.

Er is iets mis gegaan met het versturen van het formulier.
Controleer of u alle velden (goed) heeft ingevoerd en probeer het nog een keer.

U zult automatisch een kopie van dit ingevuld contactformulier ontvangen op het door u ingevulde e-mailadres.

Wij vragen alleen uw gegevens die nodig zijn voor het beantwoorden van uw verzoek. Voor meer informatie verwijzen wij u naar onze privacyverklaring op onze website. Bij het versturen van dit formulier gaat u hiermee akkoord.

recaptcha
reCAPTCHA
PrivacyTerms

Heeft u liever dat wij u terugbellen?

Laat uw telefoonnummer achter en wij bellen u zo spoedig mogelijk terug.

Uw bericht is naar ons verzonden. Wij nemen zo snel mogelijk contact met u op.

Sorry, we kunnen helaas niet met zekerheid vaststellen of je een mens of een geautomatiseerde bot/spammer bent. Hierdoor kunnen we het formulier dat je hebt ingevuld niet verzenden. Probeer het opnieuw of neem direct contact op met de makelaar via e-mail.

Er is iets mis gegaan met het versturen van het formulier.
Controleer of u alle velden (goed) heeft ingevoerd en probeer het nog een keer.

recaptcha
reCAPTCHA
PrivacyTerms

Uw woning verkopen?

Wanneer u overweegt om uw huis te verkopen, vraag dan een vrijblijvend adviesgesprek en een waardebepaling aan. Wij maken graag een afspraak met u!

Gratis adviesgesprek

Documenten

Locatie

[ { "lat": 50.8013616, "lng": 5.7623182, "heading": 0, "pitch": 0 } ]

Kenmerken

Aanvaarding

Prijs
€ 449.000 k.k.
Status
Verkocht onder voorbehoud
Oplevering
In overleg
Adres
Molenweg 12
Postcode
6252 NC
Plaats
Eckelrade

Bouw

Soort woonhuis
Eengezinswoning, Vrijstaande woning
Soort bouw
Bestaande bouw
Bouwjaar
1956

Oppervlakten en inhoud

Woonoppervlakte
ca. 97m²
Perceeloppervlakte
ca. 634m²
Overig oppervlakte
ca. 50m²
Inhoud
ca. 547m³

Indeling

Aantal kamers
5
Aantal slaapkamers
4
Aantal badkamers
1
Aantal verdiepingen
4
Voorzieningen
Rolluiken

Energie

Energielabel
D
Isolatie
Muurisolatie
Warm water
C.V.-ketel
Verwarming
C.V.-ketel
Ketel
(Combi-ketel)

Buitenruimte

Tuin
Achtertuin

Garage

Soort garage
Vrijstaand steen
Capaciteit
1
Voorzieningen
Met elektrische deur

Schriftelijkheidsvereiste:

Ter bescherming van de belangen van zowel koper als verkoper, wordt uitdrukkelijk gesteld dat een koopovereenkomst met betrekking tot deze onroerende zaak eerst dan tot stand komt nadat koper en verkoper beide de koopovereenkomst hebben getekend ("schriftelijkheidsvereiste"). Dit betekent dat een bevestiging van de afspraken per e-mail, of een toegestuurd concept van de koopovereenkomst, hier niet onder vallen

Waarborgsom/bankgarantie:

De waarborgsom/bankgarantie is 10% van de koopsom. De koper dient deze uiterlijk 1 week na het vervallen van de ontbindende voorwaarden bij de desbetreffende notaris te deponeren.

Bouwkundige keuring:

Koper is te allen tijde gerechtigd voor eigen rekening een bouwkundige keuring te (laten) verrichten dan wel andere adviseurs te raadplegen teneinde een goed inzicht te verkrijgen over de staat van de woning. De beoordeling van de woning zoals omschreven in bovenstaande presentatie en de brochure is gebaseerd op visuele waarneming, de leeftijd van de woning, en de informatie die verkregen is van de verkoper(s). Een bouwkundige rapportage valt nadrukkelijk buiten de informatie van deze websitepresentatie.

Aansprakelijkheid:

Deze websitepresentatie is door ons Goessens & Goessens Makelaardij met de nodige zorgvuldigheid samengesteld. Onzerzijds wordt echter geen enkele aansprakelijkheid aanvaard voor enige onvolledigheid, onjuist of anderszins, dan wel de gevolgen daarvan. Alle opgegeven maten en oppervlakten zijn indicatief. Deze websitepresentatie is slechts indicatief. Alle vermelden maten zijn circa maten. Er is nagestreefd naar een zo zorgvuldig mogelijke informatie van de ter beschikking staande gegevens. De verkoper heeft een mededelingsplicht inzake zaken die hem bekend zijn van het onroerend goed. De potentiele koper heeft een onderzoek plicht inzake de voor hem van belang zijnde gegevens van het onroerend goed.

Onderzoek plicht koper:

De informatie tijdens de rondleiding en in de websitepresentatie en overig informatiemateriaal is verkregen van de verkoper van de woning en is bedoeld om de koper te informeren. In het Burgerlijk Wetboek staat opgenomen dat op de koper van een woning een onderzoek plicht rust. Onder de onderzoeksplicht vallen bouwkundige gebreken/staat van de woning en publiekrechtelijke openbare informatie (zoals verkeers- /bestemmingsplannen). Een bouwkundige keuring geeft hier duidelijkheid over.

Copyright ©:

Gehele of gedeeltelijke overname, plaatsing op andere sites, advertenties, verveelvoudiging op welke andere wijze dan ook en/of commercieel gebruik van deze informatie (zoals foto’s, plattegronden, teksten, kenmerken etc.), is niet toegestaan, tenzij hiervoor uitdrukkelijk schriftelijke toestemming is verleend door Goessens & Goessens Makelaardij of tenzij aan de onderstaande voorwaarden wordt voldaan. Deze informatie mag worden bekeken , mits de informatie niet wordt gebruikt in een ander werk of publicatie in welk medium dan ook.